Casa indipendente Via Della Repubblica, Cavriago
Trattativa riservataCasa indipendente in vendita
Luce spazio e design nel cuore di Cavriago - una residenza unica nel suo genere
Nel pieno centro storico di Cavriago, a due passi dalla piazza e immersa nella quiete di un contesto esclusivo, sorge una residenza straordinaria: un connubio perfetto tra architettura contemporanea, materiali locali e un progetto abitativo pensato per chi cerca il massimo.
Questa villa di design si sviluppa su più livelli ed è caratterizzata da ampie vetrate che inondano ogni ambiente di luce naturale, creando un dialogo costante tra interno ed esterno e regalando scorci suggestivi sul giardino a terrazze, curato e riservato.
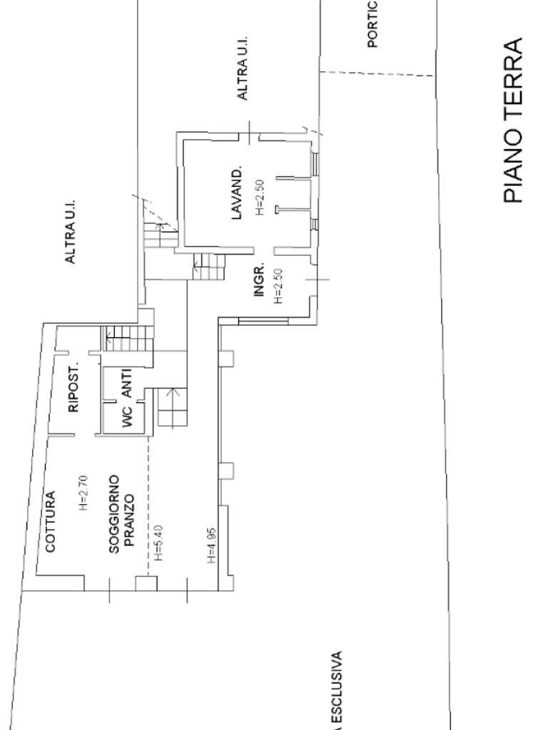
Al piano principale, la zona giorno open space è il cuore pulsante della casa: un grande ambiente con cucina a vista e zona pranzo affacciata su una spettacolare area living in soppalco, ideale per accogliere, vivere e condividere momenti speciali. Le finiture di pregio, selezionate con gusto e attenzione al dettaglio, raccontano una storia di eleganza e qualità senza compromessi.
La camera padronale, con bagno privato en suite, pensata per il massimo comfort, offre degli spazi più che abbondanti rispetto ad una classica camera. A completare la zona notte troviamo una seconda camera matrimoniale con soppalco, una stanza polifunzionale perfetta come studio o camera per gli ospiti, e un secondo bagno di servizio.
Non mancano spazi dedicati al benessere e alla funzionalità quotidiana: una palestra privata, una comoda lavanderia, doppio garage, e un ampio porticato che si apre sul verde.
Costruita con materiali locali della provincia di Reggio Emilia, e non solo, questa casa è un perfetto equilibrio tra radici e modernità, tra tradizione e visione.
Un immobile raro, per chi cerca qualcosa di davvero speciale.
Non farti scappare questo sogno, contattaci oppure vieni a trovarci in sede a Cavriago, in Via della Repubblica 41 per sapere maggiori informazioni.
Nel pieno centro storico di Cavriago, a due passi dalla piazza e immersa nella quiete di un contesto esclusivo, sorge una residenza straordinaria: un connubio perfetto tra architettura contemporanea, materiali locali e un progetto abitativo pensato per chi cerca il massimo.
Questa villa di design si sviluppa su più livelli ed è caratterizzata da ampie vetrate che inondano ogni ambiente di luce naturale, creando un dialogo costante tra interno ed esterno e regalando scorci suggestivi sul giardino a terrazze, curato e riservato.
Al piano principale, la zona giorno open space è il cuore pulsante della casa: un grande ambiente con cucina a vista e zona pranzo affacciata su una spettacolare area living in soppalco, ideale per accogliere, vivere e condividere momenti speciali. Le finiture di pregio, selezionate con gusto e attenzione al dettaglio, raccontano una storia di eleganza e qualità senza compromessi.
La camera padronale, con bagno privato en suite, pensata per il massimo comfort, offre degli spazi più che abbondanti rispetto ad una classica camera. A completare la zona notte troviamo una seconda camera matrimoniale con soppalco, una stanza polifunzionale perfetta come studio o camera per gli ospiti, e un secondo bagno di servizio.
Non mancano spazi dedicati al benessere e alla funzionalità quotidiana: una palestra privata, una comoda lavanderia, doppio garage, e un ampio porticato che si apre sul verde.
Costruita con materiali locali della provincia di Reggio Emilia, e non solo, questa casa è un perfetto equilibrio tra radici e modernità, tra tradizione e visione.
Un immobile raro, per chi cerca qualcosa di davvero speciale.
Non farti scappare questo sogno, contattaci oppure vieni a trovarci in sede a Cavriago, in Via della Repubblica 41 per sapere maggiori informazioni.
Dati principali
| Riferimento | 61108403 |
| Data annuncio | 11/09/2025 |
| Contratto | Vendita |
| Tipologia | Casa indipendente |
| Superficie | 332 m2 |
| Locali | 5 (5 altro), 3 bagni |
| Piano | 3 di 3 totali |
Costi
| Prezzo | Trattativa riservata |
Efficienza energetica
| Anno costruzione | 2006 |
| Riscaldamento | Autonomo |
| Tipo Alimentazione Riscaldamento | Metano |
| Classe energetica | B |
| Indice di prestazione energetica (IPE) | - |
Planimetrie
Video
Indirizzo e mappa
Via Della Repubblica, Cavriago
Inserzionista
Chiama
CONTATTA

