Trilocale 19, Acquaviva Picena
€ 130.000
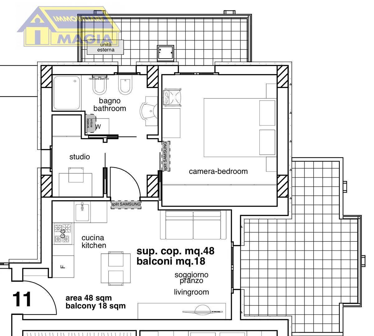
Appartamento di Nuova Costruzione in Vendita ad Acquaviva Picena (AP) Delizioso appartamento, in Classe energetica A in una location di pregio ai piedi della stupenda cittadina medioevale di Acquaviva Picena, a soli 3km dalla spiaggia di San Benedetto del Tronto, con vista panoramica dalla quale è possibile ammirare il mare adriatico e le più alte vette dei monti appenninici, come il Vettore, il Gran Sasso e la Maiella. L'unità abitativa di 48 mq, si compone di ingresso su luminoso soggiorno con cucina a vista, disimpegno, un bagno, una camera matrimoniale e un studio Completa la proprietà une balcone di 18 metri, un posto auto e una cantina Possibilità di abbinamento con fondaci e altri posti auto ad un prezzo da computare a parte. . Ottime rifiniture interne di assoluto pregio con possibilità di scelta da parte dell'acquirente, impianto di riscaldamento a pavimento, impianto ventilazione meccanica controllata degli interni, pannello fotovoltaico, predisposizione impianto d'allarme ed aria condizionata, parabola satellitare condominiale, sanitari sospesi, videocitofono e portoncino blindato. I materiali da costruzione sono di alta qualità di provenienza esclusivamente italiana, manodopera e forniture dei migliori artigiani della zona, vernici anallergiche e antimuffa. REALIZZAZIONE di ECO RESIDENZA L'edificio rispetta tutti i criteri previsti dalla normativa antisismica. La zona ha un bassissimo inquinamento elettromagnetico, acustico ed atmosferico e per la realizzazione del complesso è previsto l'utilizzo di almeno il 50% di energie rinnovabili. Pronta Consegna
Dati principali
| Riferimento | 2830 |
| Data annuncio | 11/09/2025 |
| Contratto | Vendita |
| Tipologia | Appartamento |
| Superficie | 48 m2 |
| Locali | 3 (2 camere da letto, 1 altro), 1 bagno, cucina a vista |
| Piano | 2 di 3 totali |
| Tipo di costruzione | Signorile |
| Occupato | Libero |
| Numero posti auto | 1 |
| Arredamento | Assente |
Caratteristiche
Costi
| Prezzo | 130.000 € |
| Prezzo al m2 | 2.708 €/m2 |
Efficienza energetica
| Riscaldamento | Autonomo |
| Tipo Alimentazione Riscaldamento | Altro |
| Classe energetica | A2 |
Planimetrie
Video
Indirizzo e mappa
19, Acquaviva Picena
Annuncio senza mappa,
prova a chiedere la posizione all'inserzionista
prova a chiedere la posizione all'inserzionista
Calcolo mutuo
Prezzo di vendita:
Anticipo
20,00
Mutuo
80,00
Tasso: -+
Rata: 372 al mese
I risultati sono una stima indicativa basata sui dati inseriti e non costituiscono un’offerta finanziaria.
Inserzionista

MAGIA immobiliare
Via Salaria, 90, Castel di Lama
Mostra Telefono
Chiama
CONTATTA

