Trilocale 19, Acquaviva Picena
€ 175.000
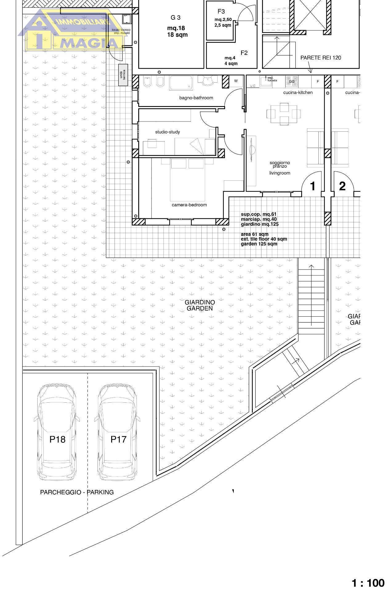
Appartamento con Giardino di Nuova Costruzione in Vendita ad Acquaviva Picena. Delizioso appartamento, in Classe energetica A4 in una location di pregio ai piedi della stupenda cittadina medioevale di Acquaviva Picena, a soli 3km dalla spiaggia di San Benedetto del Tronto, con vista panoramica dalla quale è possibile ammirare il mare adriatico e le più alte vette dei monti appenninici, come il Vettore, il Gran Sasso e la Maiella. L'unità abitativa di 61 mq, si compone di un ampio living room con cucina a vista, disimpegno, un bagno, una camere matrimoniale e uno studio. Completa la proprietà un ampia Corte di 165 mq circa con giardino in parte pavimentato. Un posto auto incluso nel prezzo Possibilità di abbinamento con fondaci e altri posti auto ad un prezzo da computare a parte. . Ottime rifiniture interne di assoluto pregio con possibilità di scelta da parte dell'acquirente, impianto di riscaldamento a pavimento, impianto ventilazione meccanica controllata degli interni, pannello fotovoltaico, predisposizione impianto d'allarme ed aria condizionata, parabola satellitare condominiale, sanitari sospesi, videocitofono e portoncino blindato. I materiali da costruzione sono di alta qualità di provenienza esclusivamente italiana, manodopera e forniture dei migliori artigiani della zona, vernici anallergiche e antimuffa. REALIZZAZIONE di ECO RESIDENZA L'edificio rispetta tutti i criteri previsti dalla normativa antisismica. La zona ha un bassissimo inquinamento elettromagnetico, acustico ed atmosferico e per la realizzazione del complesso è previsto l'utilizzo di almeno il 50% di energie rinnovabili. Pronta Consegna
Dati principali
| Riferimento | 2826 |
| Data annuncio | 11/09/2025 |
| Contratto | Vendita |
| Tipologia | Appartamento |
| Superficie | 61 m2 |
| Locali | 3 (2 camere da letto, 1 altro), 1 bagno, cucina a vista |
| Piano | Ammezzato, 3 totali |
| Tipo di costruzione | Signorile |
| Occupato | Libero |
| Box auto | Assente |
| Numero posti auto | 1 |
| Arredamento | Assente |
Caratteristiche
Costi
| Prezzo | 175.000 € |
| Prezzo al m2 | 2.869 €/m2 |
Efficienza energetica
| Riscaldamento | Autonomo |
| Tipo Impianto Di Riscaldamento | a pavimento |
| Classe energetica | A4 |
Planimetrie
Video
Indirizzo e mappa
19, Acquaviva Picena
Annuncio senza mappa,
prova a chiedere la posizione all'inserzionista
prova a chiedere la posizione all'inserzionista
Calcolo mutuo
Prezzo di vendita:
Anticipo
20,00
Mutuo
80,00
Tasso: -+
Rata: 500 al mese
I risultati sono una stima indicativa basata sui dati inseriti e non costituiscono un’offerta finanziaria.
Inserzionista

MAGIA immobiliare
Via Salaria, 90, Castel di Lama
Mostra Telefono
Chiama
CONTATTA

