Trilocale via locatelli, Calcinate
€ 265.000
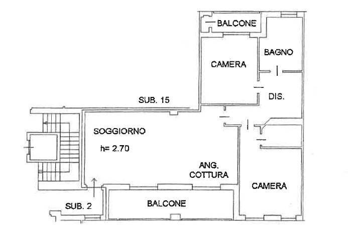
- CALCINATE Moderno ed elegante appartamento trilocale di mq 110 dotato di mq 20 di terrazze coperte e grande autorimessa con cantina annessa per un totale di 38 mq circa. L'immobile si trova al piano primo all'interno di un edificio elegante di recente costruzione (2007), dotato di ascensore ed in perfetto stato manutentivo, situato in posizione molto centrale e comoda per tutti i servizi, a pochi passi dalla chiesa, dal comune di Calcinate e dall'ospedale, con comodi posti auto liberi per gli ospiti situati in fronte all'edificio. Internamente l'immobile è composto da grande soggiorno con accesso al terrazzo coperto dotato di zona tv con divani e consolle, zona pranzo ed ampia zona cucina open space, 2 camere da letto di ampie dimensioni, di cui una con accesso a balcone privato e l'altra con cabina armadio interna, ampio bagno finestrato con vasca da bagno e doccia, lavanderia con wc di servizio. L'immobile si trova in perfette condizioni d'uso, dotato di pavimenti in parquet e ceramica, riscaldamento autonomo a pavimento, aria condizionata, infissi con doppio vetro, porta blindata. L'appartamento viene venduto completo di tutti gli arredi presenti, zona giorno con divani ad angolo e console tv, cucina molto ampia con elettrodomestici e tavolo da pranzo, camere da letto con armadiature complete, arredi bagno, lavatrice ed asciugatrice nel bagno di servizio. L'immobile è inoltre dotato di un'ampia autorimessa con cantina annessa ove è possibile posteggiare 2 vetture oltre che bicilette e moto, dotata di basculante motorizzata e pavimentata. E' eventualmente possibile ricavare un'ampia cucina separata (con finestra) oppure una terza camera da letto. 265.000,00 Spese condominiali 1.100,00 annue. CLASSE ENERGETICA: In attesa di certificazione energetica Vai all'annuncio: https://www.studio-valle.com/it/calcinate/ STUDIO IMMOBILIARE VALLE Flaminia S.r.l. Real estate and investments 24121 Bergamo - Italy V.le Vitt. Emanuele II n. 65 tel +39 035 231588 WhatsApp: +39 3920190070 www.studio-valle.com [email protected] Facebook: StudioImmobiliareValle Twitter: ValleRealEstate Skype: Valle-Real-Estate
Dati principali
| Riferimento | calcinate110 |
| Data annuncio | 10/09/2025 |
| Contratto | Vendita |
| Tipologia | Appartamento |
| Superficie | 135 m2 |
| Locali | 3 (2 camere da letto, 1 altro), 2 bagni, cucina a vista |
| Piano | 1 di 3 totali |
| Tipo di costruzione | Signorile |
| Occupato | Libero |
| Box auto | Doppio |
| Arredamento | Completo |
Caratteristiche
Costi
| Prezzo | 265.000 € |
| Prezzo al m2 | 1.963 €/m2 |
Efficienza energetica
| Stato | Ottimo |
| Riscaldamento | Autonomo |
| Tipo Impianto Di Riscaldamento | a pavimento |
| Classe energetica | Immobile esente da certificazione energetica |
Planimetrie
Virtual tour
Video
Indirizzo e mappa
via locatelli, Calcinate
Annuncio senza mappa,
prova a chiedere la posizione all'inserzionista
prova a chiedere la posizione all'inserzionista
Calcolo mutuo
Prezzo di vendita:
Anticipo
20,00
Mutuo
80,00
Tasso: -+
Rata: 758 al mese
I risultati sono una stima indicativa basata sui dati inseriti e non costituiscono un’offerta finanziaria.
Inserzionista

Studio Immobiliare Valle
Viale Vittorio Emanuele II 65, Bergamo
Mostra Telefono
Chiama
CONTATTA

