Ufficio via Gaudenzio Fantoli, Milano
Trattativa riservataCAAM - FANTOLI
Centro Servizi immobiliari operante nel settore immobiliare dal 1993 propone in vendita particolare soluzione immobiliare, trattasi di uffici in fase di nuova costruzione semi-indipendenti in prossimità dell'uscita tangenziale C.A.A.M.- Fantoli che verranno consegnati certificati ed a norma di legge con la particolarità che in fase di ristrutturazione, ACQUIRENTE può intervenire con le modifiche del capitolato che viene proposto. la soluzione si presta per qualsivoglia attività anche conformità alla comodità degli ampi spazi antistanti gli uffici. C.S.I. CON NOI IL PIACERE DI FAR CENTRO! Rag. Campanile R. 3475506702 grazie alla partnership con AF immobiliare e prestigiosi giuristi quotati presso la corte di Cassazione, grazie alla esperienza quarantennale in ambito immobiliare, siamo lieti di offrire servizi per le amministrazioni immobiliari, lavori edili residenziali commerciali e frazionamento stabili, oltre la compravendita di immobili, aziende commerciali e pubblici esercizi. Per qualsiasi informazione, dott. Angelo al numero 3534540894
Dati principali
| Riferimento | RAC |
| Data annuncio | 25/06/2025 |
| Contratto | Vendita |
| Tipologia | Ufficio |
| Superficie | 220 m2 |
| Piano | 2 totali |
| Tipo di costruzione | Signorile |
| Uso immobile | Commerciale |
Caratteristiche
Costi
| Prezzo | Trattativa riservata |
Efficienza energetica
| Riscaldamento | Autonomo |
| Classe energetica | A1 |
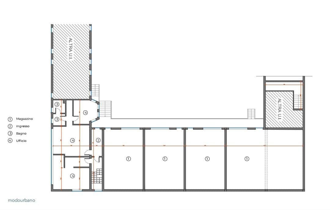
Planimetrie
Indirizzo e mappa
via Gaudenzio Fantoli, Milano
Annuncio senza mappa,
prova a chiedere la posizione all'inserzionista
prova a chiedere la posizione all'inserzionista
Inserzionista

immobiliare C.S.I.
via Mecenate, Milano
Mostra Telefono
Chiama
CONTATTA

