Casa indipendente Via Madonna delle Grazie , 10, Envie
€ 156.000
ENVIE - VIA MADONNA DELLE GRAZIE
Cerchi una casa indipendente con giardino e cortile?
Questa nuova proposta immobiliare può essere la tua nuova dimora!
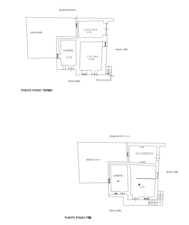
Ci troviamo a pochi minuti dal centro di Envie, comodi ai principali servizi. La proprietà risale al 1950 ed è stata completamente ristrutturata nel 2003. Essa è libera su quattro lati, sviluppata su due piani fuori terra. A livello strutturale si presta oggi in buone condizioni. Il piano terra ospita un ingresso su disimpegno con primo servizio sul lato destro munito di doccia e finestra. La zona giorno è formata da due locali, quindi suddivisa in sala e cucina abitabile. Quest'ultima gode di un'uscita su un'area esterna adibita a patio, ideale per pranzare e rilassarsi all'aria aperta. Il piano in questione gode anche di una cantina di pertinenza, utilizzata oggi anche come dispensa.
Il piano superiore, invece, è collegato internamente da una scala in legno. Qui ci accolgono due ampie camere da letto matrimoniali, un secondo servizio con doccia e finestra ed un ampio locale da ultimare idoneo come terza camera / studio / cabina armadio (ad oggi accatastato come tettoia). Il piano è servito da un ampio balcone panoramico sulla pianura circostante. Internamente, in vista di una ristrutturazione interna, gli spazi possono essere redistribuiti creando degli ambienti moderni. Gli impianti sono funzionanti, i serramenti esterni sono in legno con il doppio vetro. Il riscaldamento è autonomo mediante stufa a pellet canalizzata, ideale quindi per riscaldare tutti gli ambienti. La zona non è servita dal gas di città. Esternamente incluse nella vendita troviamo due ampie tettoie (C/7) usate per ricoverare auto e mezzi agricoli o come deposito / legnaia. Non è finita qui: la proprietà è circondata da 826 metri di giardino privato, recintato pianeggiante. L'area è composta da 400 metri incolti, ma con destinazione ad uso vigneto e da 426 metri adibiti a giardino / cortile privato.
La zona è servita da acquedotto.
Ideale per una giovane famiglia o per ricerca un'abitazione comoda ai servizi, ma lontana dal caos cittadino.
Natura e tranquillità fanno da padrone.
Fissa subito una visita, ne rimarrai soddisfatto!
PER QUALSIASI INFORMAZIONE NON ESITATE A CONTATTARCI. SIAMO DISPONIBILI A FAR VISIONARE L'IMMOBILE DAL LUNEDI' ALLA DOMENICA.
Seguiteci sui social: Facebook (https://www.facebook.com/GruppoMonvisoImmobiliare)
Instagram (https://www.instagram.com/gruppomonvisoimmobiliare)
Cerchi una casa indipendente con giardino e cortile?
Questa nuova proposta immobiliare può essere la tua nuova dimora!
Ci troviamo a pochi minuti dal centro di Envie, comodi ai principali servizi. La proprietà risale al 1950 ed è stata completamente ristrutturata nel 2003. Essa è libera su quattro lati, sviluppata su due piani fuori terra. A livello strutturale si presta oggi in buone condizioni. Il piano terra ospita un ingresso su disimpegno con primo servizio sul lato destro munito di doccia e finestra. La zona giorno è formata da due locali, quindi suddivisa in sala e cucina abitabile. Quest'ultima gode di un'uscita su un'area esterna adibita a patio, ideale per pranzare e rilassarsi all'aria aperta. Il piano in questione gode anche di una cantina di pertinenza, utilizzata oggi anche come dispensa.
Il piano superiore, invece, è collegato internamente da una scala in legno. Qui ci accolgono due ampie camere da letto matrimoniali, un secondo servizio con doccia e finestra ed un ampio locale da ultimare idoneo come terza camera / studio / cabina armadio (ad oggi accatastato come tettoia). Il piano è servito da un ampio balcone panoramico sulla pianura circostante. Internamente, in vista di una ristrutturazione interna, gli spazi possono essere redistribuiti creando degli ambienti moderni. Gli impianti sono funzionanti, i serramenti esterni sono in legno con il doppio vetro. Il riscaldamento è autonomo mediante stufa a pellet canalizzata, ideale quindi per riscaldare tutti gli ambienti. La zona non è servita dal gas di città. Esternamente incluse nella vendita troviamo due ampie tettoie (C/7) usate per ricoverare auto e mezzi agricoli o come deposito / legnaia. Non è finita qui: la proprietà è circondata da 826 metri di giardino privato, recintato pianeggiante. L'area è composta da 400 metri incolti, ma con destinazione ad uso vigneto e da 426 metri adibiti a giardino / cortile privato.
La zona è servita da acquedotto.
Ideale per una giovane famiglia o per ricerca un'abitazione comoda ai servizi, ma lontana dal caos cittadino.
Natura e tranquillità fanno da padrone.
Fissa subito una visita, ne rimarrai soddisfatto!
PER QUALSIASI INFORMAZIONE NON ESITATE A CONTATTARCI. SIAMO DISPONIBILI A FAR VISIONARE L'IMMOBILE DAL LUNEDI' ALLA DOMENICA.
Seguiteci sui social: Facebook (https://www.facebook.com/GruppoMonvisoImmobiliare)
Instagram (https://www.instagram.com/gruppomonvisoimmobiliare)
Dati principali
| Riferimento | ID2809429 |
| Data annuncio | 05/08/2025 |
| Contratto | Vendita |
| Tipologia | Casa indipendente |
| Superficie | 197 m2 |
| Locali | 4 (2 camere da letto, 2 altro), 2 bagni, cucina abitabile |
| Piano | Su più livelli, 2 totali |
| Tipo di costruzione | Civile |
| Occupato | Occupato da Proprietario |
| Numero di balconi | 1 |
| Box auto | Triplo |
| Arredamento | Assente |
| Lati liberi | Quattro |
| Impianto TV | Singolo |
Caratteristiche
Costi
| Prezzo | 156.000 € |
| Prezzo al m2 | 792 €/m2 |
Efficienza energetica
| Anno costruzione | 1950 |
| Stato | Buono |
| Aria Condizionata | Assente |
| Riscaldamento | Autonomo |
| Tipo Impianto Di Riscaldamento | a stufa |
| Infissi esterni | Doppio vetro / Legno |
| Classe energetica | D |
| Indice di prestazione energetica (EP GL, NREN) | 122.39 kWh/m2 anno |
| Prestazione energetica fabbricato invernale | ![]() |
| Prestazione energetica fabbricato estiva | ![]() |
Planimetrie
Indirizzo e mappa
Via Madonna delle Grazie , 10, Envie
Calcolo mutuo
Prezzo di vendita:
Anticipo
20,00
Mutuo
80,00
Tasso: -+
Rata: 446 al mese
I risultati sono una stima indicativa basata sui dati inseriti e non costituiscono un’offerta finanziaria.
Inserzionista

Gruppo Monviso Immobiliare
Via Roma 24, Bagnolo Piemonte
Mostra Telefono
Galliano Deborah
Mostra Telefono
Chiama
CONTATTA


