Casa indipendente via Erta, 860, Verucchio
€ 158.000Casa abbinata con ampio giardino e terrazza panoramica
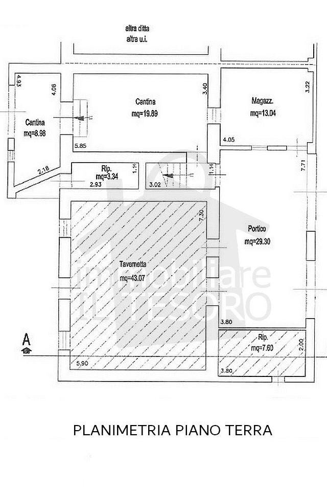
VERUCCHIO precisamente in via Erta, immersa nelle quiete delle colline circostanti, proponiamo una CASETTA UNIFAMILIARE abbinata su di un lato e disposta su due livelli. La proprietà possiede un ampio GIARDINO di 1500 mq posizionato in un contesto riservato dal quale ammirare una favolosa vista aperta sulle verdi colline circostanti. L’abitazione si sviluppa principalmente al piano primo e si apre sulla zona giorno luminosa con angolo cottura e un bel camino che rende l’atmosfera particolarmente accogliente, durante la stagione invernale, una camera matrimoniale, una cameretta singola, uno studio/ripostiglio, disimpegno ed un bagno. Dalla zona giorno si accede alla TERRAZZA panoramica di 57 mq perfetta per pranzi, cene, momenti di relax all’aperto o semplicemente per ammirare la vista sulle colline al tramonto. Il piano terra ospita un PORTICATO di 29 mq attualmente adibito a garage, oltre a vari locali di servizio utilizzabili come cantina, magazzino o spazi hobby. Sul giardino troviamo inoltre un piccolo deposito attrezzi e un POZZO ad uso esclusivo. Un’abitazione che coniuga la tranquillità della vita in colline alla vicinanza ai servizi essendo situata in una posizione ben collegata alla viabilità principale. Se desideri avere maggiori informazioni non esitare a contattarci! Agenzia Immobiliare IL TESORO: ➤ Villa Verucchio (RN) Piazzetta Valle del Marecchia 1. ☎ Tel: 0541.677217 ✎ E-mail: [email protected] ☛ Sito Web: www.immobiliareiltesoro.it
Dati principali
| Riferimento | B997.1 |
| Data annuncio | 27/08/2025 |
| Contratto | Vendita |
| Tipologia | Casa indipendente |
| Superficie | 214 m2 |
| Locali | 4 (2 camere da letto, 2 altro), 1 bagno, cucina angolo cottura |
| Piano | 2 totali |
| Tipo di costruzione | Media |
| Numero di terrazzi | 1 |
| Box auto | Singolo |
| Arredamento | Assente |
Caratteristiche
Costi
| Prezzo | 158.000 € |
| Prezzo al m2 | 738 €/m2 |
Efficienza energetica
| Stato | Buono |
| Riscaldamento | Autonomo |
| Classe energetica | Immobile esente da certificazione energetica |
Planimetrie
Indirizzo e mappa
via Erta, 860, Verucchio
Calcolo mutuo
Prezzo di vendita:
Anticipo
20,00
Mutuo
80,00
Tasso: -+
Rata: 452 al mese
I risultati sono una stima indicativa basata sui dati inseriti e non costituiscono un’offerta finanziaria.
Inserzionista
Chiama
CONTATTA


