Attico Via materdomini 58, Brindisi
€ 225.000
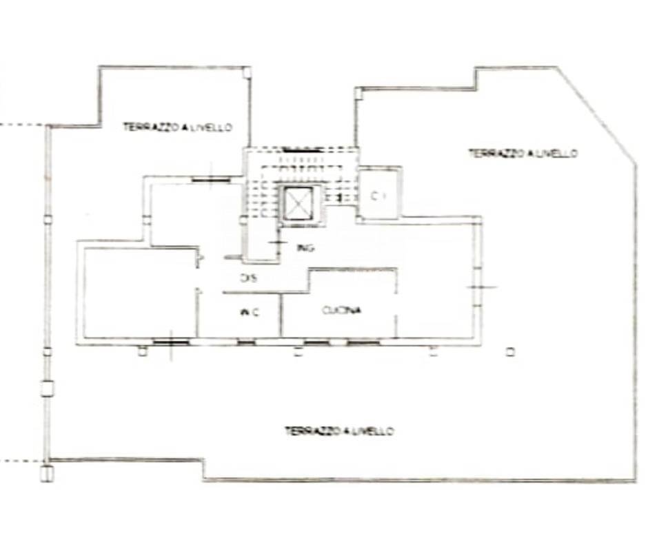
Nella tranquilla e ambita zona di Materdomini, proponiamo la vendita di un meraviglioso attico ristrutturato con box auto e vista mare a 360°. Con i suoi 117 mq interni e un'esposizione su tre lati che circoscrivono 240 mq di terrazza, l'immobile offre una vista mare mozzafiato che incanta in ogni momento della giornata. L'ascensore con accesso diretto all'interno dell'appartamento ti accoglie in un'oasi di tranquillità e lusso. L'immobile si apre su un elegante corridoio che conduce a una luminosa zona living, perfetta per i momenti di relax e convivialità; Qui troverai un salone, una cucina funzionale e un bagno di servizio. La zona notte, sapientemente separata, è composta da due camere da letto e un secondo bagno. Il comfort è garantito anche dalla presenza di un box auto privato di 20 mq, una comodità inestimabile in questa zona. Situato in una posizione strategica, l'attico si trova in una zona residenziale ben servita, a pochi passi a piedi dalle spiagge di Materdomini e dal pittoresco Porticciolo Turistico. La vicinanza ai mezzi pubblici rende ogni spostamento facile e veloce Unesclusiva Coldwell Banker. Contatti la nostra Agenzia per richiedere informazioni o per richiedere una visita dell'immobile. In the quiet and sought-after area of Materdomini, we offer for sale a wonderful renovated penthouse with a garage and 360° sea views. With its 117 sq m interior and a three-sided exposure encompassing a 240 sq m terrace, the property offers breathtaking sea views that enchant at any time of day. The elevator with direct access to the apartment welcomes you into an oasis of tranquility and luxury. The property opens onto an elegant corridor that leads to a bright living area, perfect for moments of relaxation and conviviality; Here you'll find a living room, a functional kitchen, and a guest bathroom. The cleverly separated sleeping area consists of two bedrooms and a second bathroom. Comfort is also guaranteed by the presence of a private 20 sq m garage, an invaluable convenience in this area. Conveniently located, the penthouse is in a well-served residential area, just a short walk from the Materdomini beaches and the picturesque Marina. The proximity to public transport makes every trip quick and easy. A Coldwell Banker Exclusive. Contact our agency for more information or to schedule a viewing.
Dati principali
| Riferimento | CBI092-3022-63884 |
| Data annuncio | 28/08/2025 |
| Contratto | Vendita |
| Tipologia | Attico |
| Superficie | 117 m2 |
| Locali | più di 5 (2 camere da letto, 4 altro), 2 bagni, cucina abitabile |
| Piano | Attico, 5 totali |
| Tipo di costruzione | Media |
| Occupato | Libero |
| Box auto | Singolo |
| Arredamento | Assente |
Caratteristiche
Costi
| Prezzo | 225.000 € |
| Prezzo al m2 | 1.923 €/m2 |
Efficienza energetica
| Stato | Ottimo |
| Riscaldamento | Autonomo |
| Classe energetica | G |
| Indice di prestazione energetica (IPE) | 226 kWh/m2 anno |
Planimetrie
Indirizzo e mappa
Via materdomini
58, Brindisi
Annuncio senza mappa,
prova a chiedere la posizione all'inserzionista
prova a chiedere la posizione all'inserzionista
Calcolo mutuo
Prezzo di vendita:
Anticipo
20,00
Mutuo
80,00
Tasso: -+
Rata: 643 al mese
I risultati sono una stima indicativa basata sui dati inseriti e non costituiscono un’offerta finanziaria.
Chiama
CONTATTA


