Villa via Giacchetti 127, Gorla Minore
€ 330.000
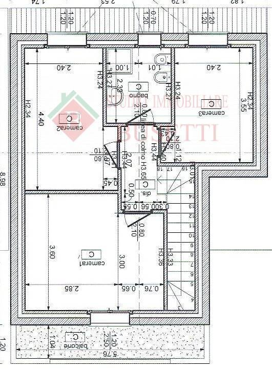
In zona tranquilla e ben servita adiacente il centro del paese è in corso la realizzazione di n.6 Ville Unifamigliari sviluppate su due livelli fuori terra, ovvero un piano terra ed un piano sottotetto con travi a vista sbiancate entrambi abitabili. Al piano terra è presente anche lautorimessa Singola/Doppia. Ogni villa dispone di un giardino privato con il proprio accesso carraio. Le ville sono state progettate per ottimizzare lo spazio e lorganizzazione dei locali per uno stile di vita confortevole dove godere quotidianamente la propria libertà ed il proprio relax. Le unità godono di uno spazio en plein air: dal giardino privato dove godersi la bellezza di ogni stagione in intimità ad ampi balconi e terrazzi che consentono una fruizione dello spazio esterno in ogni stagione. Il progetto è caratterizzato da una forte identità architettonica. Una particolare attenzione nella scelta dei materiali destinati a durare nel tempo, è sinonimo di un investimento sicuro. Le unità abitative saranno ad alta efficienza energetica. E' garantita la classe energetica A4. La particolare attenzione dei dettagli caratterizza il cantiere, la cura dell' isolamento acustico, la coibentazione nonché i serramenti e le finiture, sono sinonimo di un comfort eccellente. I principali vantaggi di unabitazione in classe A sono la stabilità delle temperature, lassenza di spifferi e correnti, la produzione di energia da fonti rinnovabili. L' ingresso della villa "C" si apre su un notevole soggiorno ed una splendida cucina abitabile, un disimpegno ed un bagno completano la zona giorno al piano terra. Una comoda nonché ben rifinita scala interna collega la zona notte composta da tre camere di cui una matrimoniale con accesso ad un balcone ed un bagno. Adiacente l' abitazione uno spazioso box singolo con antistante un posto auto. La villa dispone di un giardino privato di 88 mq circa. Possibilità di personalizzare la propria dimora con la scelta delle finiture ed eventualmente, se possibile, con una diversa distribuzione degli spazi interni. La consegna è prevista per Dicembre 2026. SI ACQUISTA DIRETTAMENTE DAL COSTRUTTORE SENZA ALCUNA SPESA DI INTERMEDIAZIONE " Valutiamo gratuitamente il vostro usato proponendovi la giusta strategia per poter realizzare e gestire al meglio la compravendita "
Dati principali
| Riferimento | 554V-C |
| Data annuncio | 27/08/2025 |
| Contratto | Vendita |
| Tipologia | Villa |
| Superficie | 143 m2 |
| Locali | 4 (3 camere da letto, 1 altro), 2 bagni, cucina abitabile |
| Piano | Su più livelli, 2 totali |
| Tipo di costruzione | Signorile |
| Box auto | Singolo |
| Arredamento | Assente |
Caratteristiche
Costi
| Prezzo | 330.000 € |
| Prezzo al m2 | 2.308 €/m2 |
Efficienza energetica
| Riscaldamento | Autonomo |
| Tipo Alimentazione Riscaldamento | Fotovoltaico |
| Classe energetica | A4 |
Planimetrie
Video
Indirizzo e mappa
via Giacchetti
127, Gorla Minore
Annuncio senza mappa,
prova a chiedere la posizione all'inserzionista
prova a chiedere la posizione all'inserzionista
Calcolo mutuo
Prezzo di vendita:
Anticipo
20,00
Mutuo
80,00
Tasso: -+
Rata: 944 al mese
I risultati sono una stima indicativa basata sui dati inseriti e non costituiscono un’offerta finanziaria.
Inserzionista

Studio Immobiliare Busetti
corso Magenta, 116, Legnano
Mostra Telefono
Mostra Cellulare
Chiama
CONTATTA

