Rustico Contrada snc, Termoli
€ 200.000
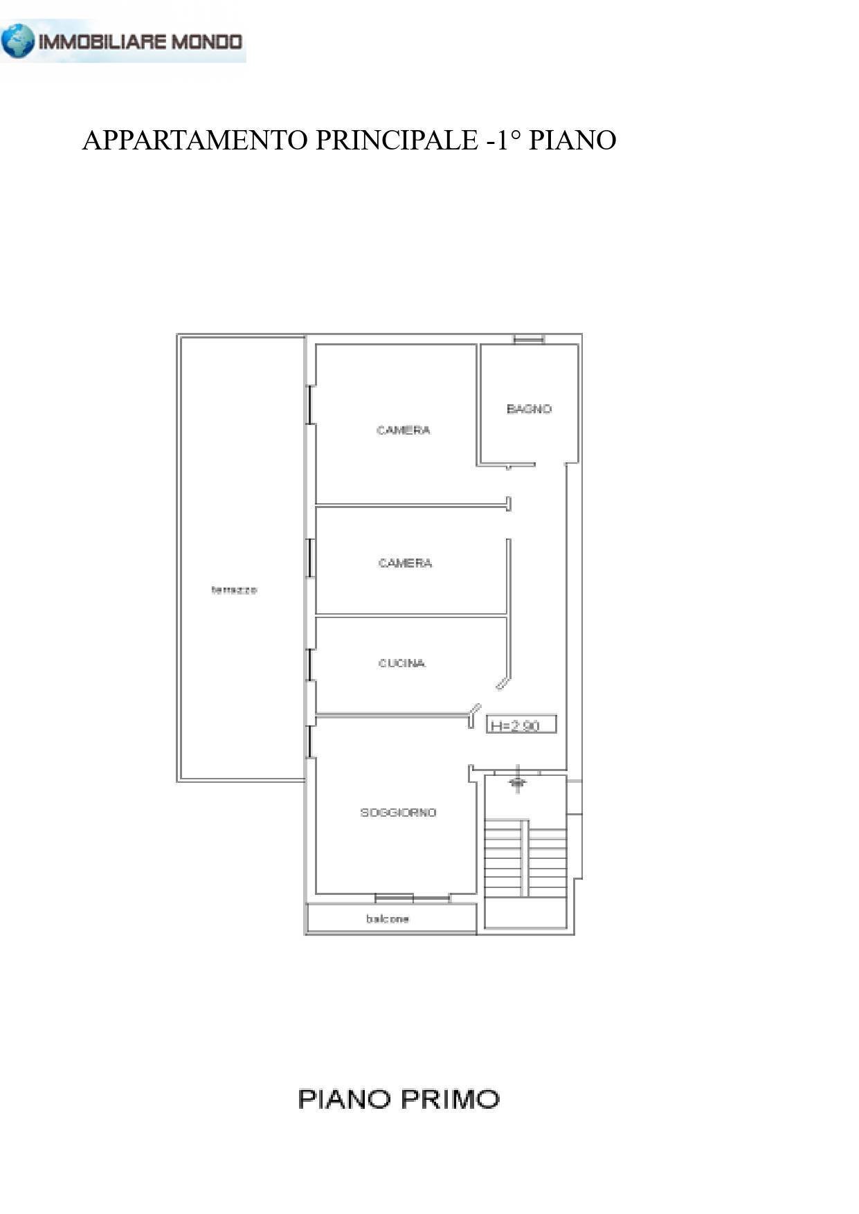
In vendita a Termoli un splendido Casale immerso nella tranquillità della campagna molisana. Il casale è ideale perché si presta ad un triple utilizzo: sia per chi desidera una soluzione come abitazione principale unica e in buon stato dato alle importanti dimensioni della casa o un ottima idea d'investimento in un Bed & Breakfast come affitto di due appartamenti distinti e separati, oppure come casa vacanze in una oasi piena di tranquillità a solo pochi minuti dal mare. Situato in zona periferica della città, gode di un'ottima posizione strategica perché con soli pochi minuti in macchina si raggiunge le spiagge della zona e dal centro storico della città. Attualmente libero al rogito, questa proprietà si presenta in ottime condizioni e pronta per essere abitata. Il casale si sviluppa su 3 piani in totale, offrendo ampi spazi e una distribuzione degli ambienti ottimale: piano terra, primo piano e la mansarda per una superficie totale di 500 metri quadrati. Al piano terra: si trova la taverna composta da un'ampia zona pranzo con cucina, camino funzionante, ripostiglio e bagno di servizio, cantina dei vini e un ampio garage. Al primo piano: ci sono due appartamenti distinti e separati ( ognuno con camino a legna). - Il primo appartamento è composto da: ingresso, salone col proprio balcone, cucina abitabile che si affaccia su un terrazzo di circa 50mq, due camere da letto matrimoniali, bagno di generose dimensioni con vasca e finestra e un ripostiglio. - Il secondo appartamento è composto da: ingresso con camino funzionante, cucina abitabile col camino, due camere da letto matrimoniale e bagno con vasca idromassaggio. - Al secondo piano: troviamo un ampio sottotetto. Completa la proprietà: Un terreno antistante di 4.000 metri quadri circa, Ampia Taverna, Tre camini a legna funzionante, Ampio sottotetto o Mansarda, Vasca idromassaggio, Cantina dei Vini, Ampio Terrazzo, Ampio garage quadruplo, Spazio esterno utilizzabile come parcheggio privato, Riscaldamento autonomo, Alcuni locali sono provvisti dell'aria condizionata, La proprietà è alimentata tramite impianto a radiatori funzionante a metano, una fonte di energia pulita e sicura, Tutti gli impianti sono funzionanti, Non sono presenti le certificazioni di conformità in quanto i lavori sono stati eseguiti prima dell'entrata in vigore della presente normativa . Inoltre, è presente un ampio terrazzo, ideale per godere della vista e del clima dolce della zona. Il giardino privato, curato e ben tenuto, è il luogo ideale per organizzare cene all'aperto o semplicemente rilassarsi all'ombra degli alberi. Il terreno circostante, di proprietà esclusiva, garantisce privacy e tranquillità. La proprietà comprende anche un quadruplo box auto, perfetto per ospitare più veicoli o utilizzarlo come spazio di stoccaggio. La presenza della cantina e della soffitta sono utili come spazi di deposito aggiuntivi. In sintesi, questo casale in vendita a Termoli è una splendida soluzione abitativa, ideale per chi ama la tranquillità della campagna senza rinunciare alla comodità dei servizi cittadini. Grazie alle sue caratteristiche uniche, è la scelta perfetta per chi desidera una casa di prestigio e di fascino in una delle zone più belle del Molise. A10 km da Termoli (città con porto per imbarco Isole Tremiti) e a meno di 10 km dal casello autostradale A14. Per maggiori informazioni o per vedere oggi stesso questo Casale a Termoli chiama ora Raul 329 4363448.
Dati principali
| Riferimento | F710 |
| Data annuncio | 23/08/2025 |
| Contratto | Vendita |
| Tipologia | Rustico |
| Superficie | 500 m2 |
| Locali | più di 5 (5 camere da letto, 3 altro), 3 bagni, cucina abitabile |
| Piano | Terra, 2 totali |
| Tipo di costruzione | Signorile |
| Occupato | Libero |
| Box auto | Triplo |
| Arredamento | Assente |
Caratteristiche
Costi
| Prezzo | 200.000 € |
| Prezzo al m2 | 400 €/m2 |
Efficienza energetica
| Stato | Buono |
| Riscaldamento | Autonomo |
| Classe energetica | G |
| Indice di prestazione energetica (IPE) | 225 kWh/m2 anno |
Planimetrie
Video
Indirizzo e mappa
Contrada
snc, Termoli
Annuncio senza mappa,
prova a chiedere la posizione all'inserzionista
prova a chiedere la posizione all'inserzionista
Calcolo mutuo
Prezzo di vendita:
Anticipo
20,00
Mutuo
80,00
Tasso: -+
Rata: 572 al mese
I risultati sono una stima indicativa basata sui dati inseriti e non costituiscono un’offerta finanziaria.
Inserzionista
Immobiliare Mondo
Via Giappone 21, Termoli
Mostra Telefono
Mostra Cellulare
Chiama
CONTATTA

