Quadrilocale Via Madre Teresa di Calcutta 34, Diso
€ 123.000
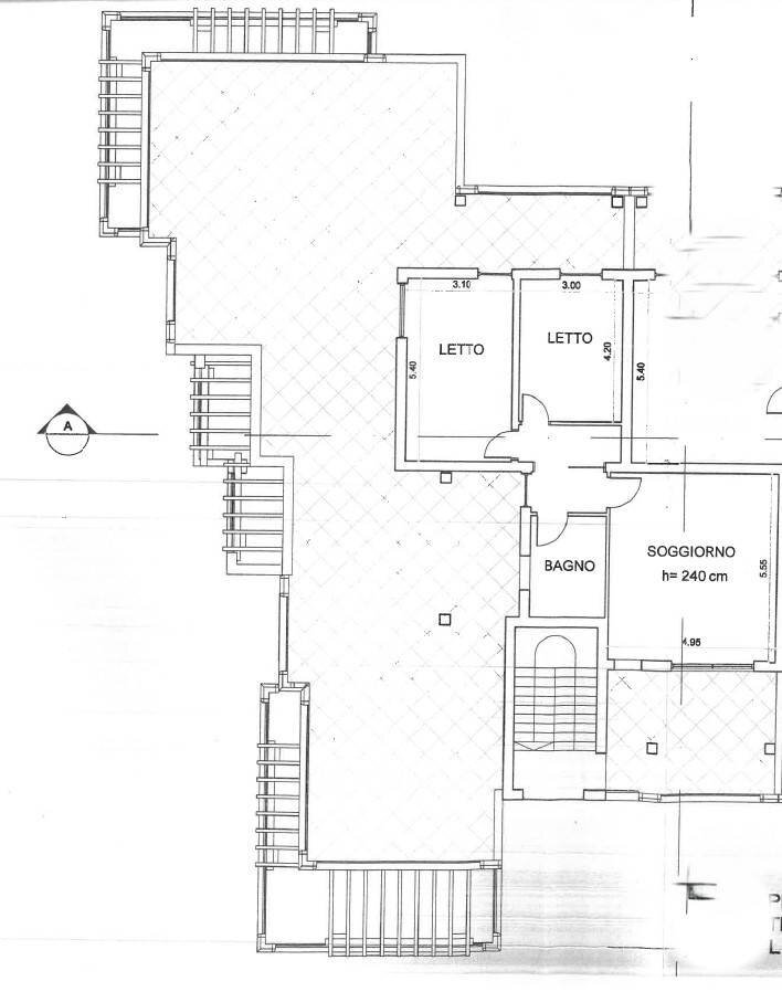
PUGLIA - SALENTO - LECCE - DISO - Marittima In una delle zone più prestigiose della località balneare di Marittima, nel comune di Diso, si trova questo bellissimo appartamento situato all'attico di un edificio residenziale di soli tre piani. La sua posizione privilegiata garantisce una vista mozzafiato sul mare e sulla splendida campagna circostante.L'immobile si estende su una superficie totale di 83 metri quadrati, di cui 75 calpestabili, ed è composto da quattro luminosi locali, tra cui due camere da letto spaziose e un ampio soggiorno con cucina abitabile. Il bagno è moderno e dotato di tutti i comfort necessari.Lo stato di conservazione dell'appartamento è discreto, con finiture di qualità e ben tenuto. Inoltre, è completamente arredato, pronto per essere abitato o utilizzato come investimento per affitti turistici.Una delle caratteristiche più apprezzate è la presenza di un balcone che si affaccia sul mare e di un ampio terrazzo, ideale per godersi il relax e le serate estive all'aria aperta.L'immobile è situato al terzo e ultimo piano dell'edificio, garantendo privacy e tranquillità. Inoltre, l'accesso all'attico avviene tramite una scala che porta anche al box, di circa 35 mq, situato nel piano interrato.Una perfetta combinazione di comfort, vista panoramica e posizione strategica, questo appartamento è l'ideale per chi desidera vivere o trascorrere le vacanze in un'oasi di pace a pochi passi dal mare.
Dati principali
| Riferimento | 5 |
| Data annuncio | 22/08/2025 |
| Contratto | Vendita |
| Tipologia | Appartamento |
| Superficie | 83 m2 |
| Locali | 4 (2 camere da letto, 2 altro), 1 bagno, cucina abitabile |
| Piano | Attico, 3 totali |
| Occupato | Libero |
Costi
| Prezzo | 123.000 € |
| Prezzo al m2 | 1.482 €/m2 |
Efficienza energetica
| Tipo Alimentazione Riscaldamento | Altro |
| Classe energetica | E |
| Indice di prestazione energetica (IPE) | - |
Planimetrie
Indirizzo e mappa
Via Madre Teresa di Calcutta
34, Diso
Annuncio senza mappa,
prova a chiedere la posizione all'inserzionista
prova a chiedere la posizione all'inserzionista
Calcolo mutuo
Prezzo di vendita:
Anticipo
20,00
Mutuo
80,00
Tasso: -+
Rata: 352 al mese
I risultati sono una stima indicativa basata sui dati inseriti e non costituiscono un’offerta finanziaria.
Inserzionista

MAGLIE
via Piave, 71, Maglie
Mostra Telefono
Mostra Cellulare
Chiama
CONTATTA

