Villa via crociata, Cisano sul Neva
€ 780.000
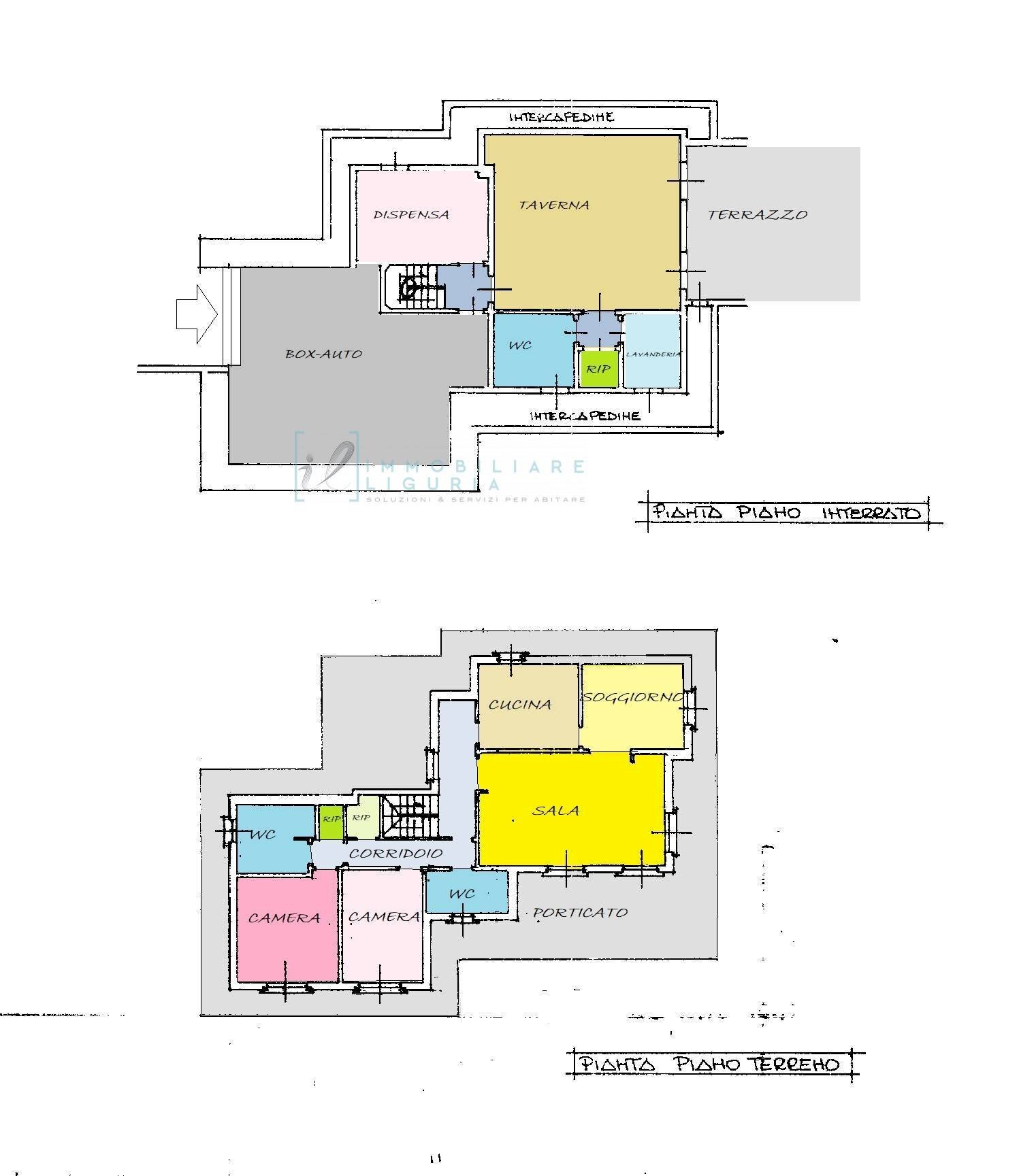
'¨ Dove il Profumo del Giardino Incontra il Calore di Casa: La Tua Villa a Pianboschi Esistono case che si limitano ad accoglierti, e case che sanno emozionarti. Questa villa indipendente a Cisano sul Neva appartiene alla seconda categoria. Immersa nel verde della prestigiosa località Pianboschi, è un rifugio dove il tempo sembra rallentare, regalandoti la privacy che hai sempre sognato a pochi minuti dal mare. ð¿ Un Abbraccio Verde tra Prato all'Inglese e FruttetoVarcare il cancello significa entrare in un mondo a parte. La proprietà è avvolta da un meraviglioso giardino in stile inglese, perfetto per i giochi dei bambini o per pomeriggi di relax assoluto. Poco oltre, il tuo frutteto privato ti regalerà il lusso di portare in tavola sapori autentici direttamente dal tuo terreno. ð¥ Eleganza e Charme in Ogni DettaglioAll'interno, l'atmosfera è quella delle grandi occasioni, ma con il calore di un vero nido familiare. Il parquet pregiato corre sotto i piedi, donando eleganza a ogni passo. Il grande camino in legno è il cuore pulsante della zona giorno: immagina le serate invernali, il crepitio del fuoco e un buon calice di vino ligure. La luce è la protagonista assoluta, grazie ad ampie aperture che collegano costantemente l'interno con il verde esterno. ð Spazio alla Tua ImmaginazioneCon tre livelli a disposizione, la versatilità è incredibile: La Taverna: Uno spazio conviviale immenso per cene con amici e feste indimenticabili. Il Sottotetto: Un potenziale nascosto. Desideri una suite padronale con vista, un atelier d'artista o una seconda unità abitativa? Qui puoi realizzarlo. Il Garage (60 mq): Non solo per le auto, ma un vero spazio multifunzionale per i tuoi hobby. ð Sostenibilità e Comfort ModernoVivere nel fascino non significa rinunciare alla tecnologia. La villa è dotata di pannelli solari, unendo il rispetto per l'ambiente a un concreto risparmio energetico. Una casa pronta da abitare, curata in ogni minimo particolare e pensata per chi non accetta compromessi tra stile e funzionalità. Non limitarti a sognarla. Vieni a respirare l'aria di Pianboschi. ð Agenzia Immobiliare Liguria Via Genova n. 80, Albenga (SV) ð Tel. +39 0182 554730 | ð± Cell. +39 392 9488202
Dati principali
| Riferimento | 967 |
| Data annuncio | 22/08/2025 |
| Contratto | Vendita |
| Tipologia | Villa |
| Superficie | 180 m2 |
| Locali | più di 5 (2 camere da letto, 6 altro), 3 bagni, cucina abitabile |
| Piano | Su più livelli, 2 totali |
| Occupato | Libero |
| Box auto | Triplo |
| Numero posti auto | 2 |
Caratteristiche
Costi
| Prezzo | 780.000 € |
| Prezzo al m2 | 4.333 €/m2 |
Efficienza energetica
| Stato | Ottimo |
| Riscaldamento | Autonomo |
| Tipo Alimentazione Riscaldamento | Gpl |
| Classe energetica | D |
| Indice di prestazione energetica (IPE) | 118 kWh/m2 anno |
Planimetrie
Virtual tour
Indirizzo e mappa
via crociata, Cisano sul Neva
Annuncio senza mappa,
prova a chiedere la posizione all'inserzionista
prova a chiedere la posizione all'inserzionista
Calcolo mutuo
Prezzo di vendita:
Anticipo
20,00
Mutuo
80,00
Tasso: -+
Rata: 2.231 al mese
I risultati sono una stima indicativa basata sui dati inseriti e non costituiscono un’offerta finanziaria.
Inserzionista

Immobiliare Liguria
Via Genova, 81, Albenga
Mostra Telefono
Chiama
CONTATTA

