Casa indipendente Via Roversano, Cesena
€ 150.000Casa indipendente in vendita
Cesena: terreno edificabile.
A soli 2 km dal centro storico di Cesena, in una zona esclusiva immersa nel verde e composta unicamente da case indipendenti, proponiamo in vendita un terreno edificabile di circa 500 mq con un rudere da demolire, ideale per realizzare la casa indipendente dei tuoi sogni in totale privacy e tranquillità.
La proprietà comprende anche un terreno agricolo adiacente di circa 3.000 mq, attualmente incolto, che può essere trasformato in un ampio giardino privato, perfetto per vivere all’aperto, rilassarsi nel verde, o realizzare una piscina.
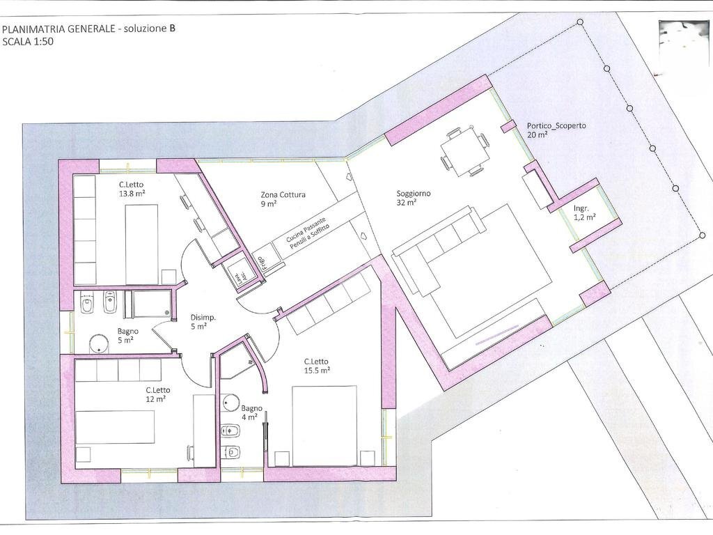
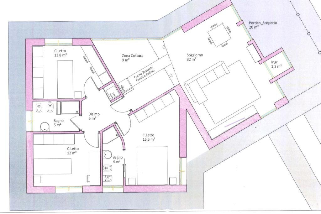
Nelle foto dell'annuncio alleghiamo un progetto a dimostrazione del potenziale abitativo e dello stile che si può ottenere.
Per qualsiasi informazione o per fissare un appuntamento chiama lo 0547404341 o il 3382221610 o manda una mail a
A soli 2 km dal centro storico di Cesena, in una zona esclusiva immersa nel verde e composta unicamente da case indipendenti, proponiamo in vendita un terreno edificabile di circa 500 mq con un rudere da demolire, ideale per realizzare la casa indipendente dei tuoi sogni in totale privacy e tranquillità.
La proprietà comprende anche un terreno agricolo adiacente di circa 3.000 mq, attualmente incolto, che può essere trasformato in un ampio giardino privato, perfetto per vivere all’aperto, rilassarsi nel verde, o realizzare una piscina.
Nelle foto dell'annuncio alleghiamo un progetto a dimostrazione del potenziale abitativo e dello stile che si può ottenere.
Per qualsiasi informazione o per fissare un appuntamento chiama lo 0547404341 o il 3382221610 o manda una mail a
Dati principali
| Riferimento | 61101711 |
| Data annuncio | 20/08/2025 |
| Contratto | Vendita |
| Tipologia | Casa indipendente |
| Superficie | 190 m2 |
| Locali | 4 (4 altro), 2 bagni |
| Piano | 1 totali |
Costi
| Prezzo | 150.000 € |
| Prezzo al m2 | 789 €/m2 |
Efficienza energetica
| Anno costruzione | 1900 |
| Riscaldamento | Autonomo |
| Tipo Alimentazione Riscaldamento | Altro |
| Classe energetica | Immobile esente da certificazione energetica |
Planimetrie
Video
Indirizzo e mappa
Via Roversano, Cesena
Calcolo mutuo
Prezzo di vendita:
Anticipo
20,00
Mutuo
80,00
Tasso: -+
Rata: 429 al mese
I risultati sono una stima indicativa basata sui dati inseriti e non costituiscono un’offerta finanziaria.
Inserzionista
Chiama
CONTATTA

