Villa Via Municipio Snc, Lustra
€ 405.000
In vendita a Lustra (SA) Villa unifamiliare con piscina e ampio terreno
Splendida villa unifamiliare di circa 275 mq, disposta su due livelli oltre al sottotetto, circondata da un terreno di circa 6.000 mq.
Distribuzione interna
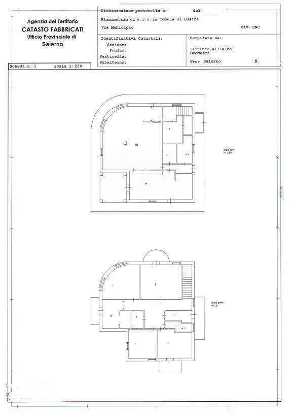
Al piano terra labitazione si apre su un accogliente ingresso che conduce al doppio soggiorno con camino centrale, alla cucina abitabile con affaccio su un ampio portico e a un comodo disimpegno. Completano il livello un ripostiglio/dispensa, un bagno, uno studio e un piccolo deposito sottoscala. Lintero piano è rifinito con pavimenti in granito e infissi ampi e luminosi in alluminio effetto legno con doppio vetro.
Una raffinata scala interna rivestita in parquet conduce al primo piano, dove la stessa pavimentazione prosegue in tutti gli ambienti. Qui troviamo una camera padronale di circa 32 mq con terrazzo privato, altre tre camere da letto due delle quali con terrazzino un bagno principale con vasca idromassaggio, un secondo bagno, lavanderia, disimpegno e ripostiglio. Anche questo livello è caratterizzato da infissi di qualità alluminio effetto legno con doppio vetro.
Pertinenze e spazi esterni
Piscina privata con area attrezzata e corte pavimentata
Ampio garage di circa 54 mq con corte e area di manovra
Locale tecnico con caldaia per il riscaldamento di entrambi i piani
Locale tecnico seminterrato con riserva dacqua e deposito
Terreno di circa 6.000 mq a uso seminativo arborato
Casolare in pietra da ristrutturare
Stato di conservazione
La villa si presenta in ottime condizioni, con finiture di livello medio-alto e pronta per essere abitata senza necessità di interventi.
Questa proprietà rappresenta la soluzione ideale per chi desidera ampi spazi, comfort e privacy, in un contesto naturale e riservato, senza rinunciare a eleganza e funzionalità.
Splendida villa unifamiliare di circa 275 mq, disposta su due livelli oltre al sottotetto, circondata da un terreno di circa 6.000 mq.
Distribuzione interna
Al piano terra labitazione si apre su un accogliente ingresso che conduce al doppio soggiorno con camino centrale, alla cucina abitabile con affaccio su un ampio portico e a un comodo disimpegno. Completano il livello un ripostiglio/dispensa, un bagno, uno studio e un piccolo deposito sottoscala. Lintero piano è rifinito con pavimenti in granito e infissi ampi e luminosi in alluminio effetto legno con doppio vetro.
Una raffinata scala interna rivestita in parquet conduce al primo piano, dove la stessa pavimentazione prosegue in tutti gli ambienti. Qui troviamo una camera padronale di circa 32 mq con terrazzo privato, altre tre camere da letto due delle quali con terrazzino un bagno principale con vasca idromassaggio, un secondo bagno, lavanderia, disimpegno e ripostiglio. Anche questo livello è caratterizzato da infissi di qualità alluminio effetto legno con doppio vetro.
Pertinenze e spazi esterni
Piscina privata con area attrezzata e corte pavimentata
Ampio garage di circa 54 mq con corte e area di manovra
Locale tecnico con caldaia per il riscaldamento di entrambi i piani
Locale tecnico seminterrato con riserva dacqua e deposito
Terreno di circa 6.000 mq a uso seminativo arborato
Casolare in pietra da ristrutturare
Stato di conservazione
La villa si presenta in ottime condizioni, con finiture di livello medio-alto e pronta per essere abitata senza necessità di interventi.
Questa proprietà rappresenta la soluzione ideale per chi desidera ampi spazi, comfort e privacy, in un contesto naturale e riservato, senza rinunciare a eleganza e funzionalità.
Dati principali
| Riferimento | CBI087-891-52508 |
| Data annuncio | 13/08/2025 |
| Contratto | Vendita |
| Tipologia | Villa |
| Superficie | 353 m2 |
| Locali | più di 5 (4 camere da letto, 9 altro), 3 bagni, cucina abitabile |
| Piano | Su più livelli, 2 totali |
| Tipo di costruzione | Media |
| Occupato | Libero |
| Box auto | Doppio |
| Numero posti auto | 3 |
| Arredamento | Assente |
Caratteristiche
Costi
| Prezzo | 405.000 € |
| Prezzo al m2 | 1.147 €/m2 |
Efficienza energetica
| Stato | Ottimo |
| Riscaldamento | Autonomo |
| Tipo Alimentazione Riscaldamento | Gpl |
| Classe energetica | E |
| Indice di prestazione energetica (IPE) | - |
Planimetrie
Video
Indirizzo e mappa
Via Municipio
Snc, Lustra
Annuncio senza mappa,
prova a chiedere la posizione all'inserzionista
prova a chiedere la posizione all'inserzionista
Calcolo mutuo
Prezzo di vendita:
Anticipo
20,00
Mutuo
80,00
Tasso: -+
Rata: 1.158 al mese
I risultati sono una stima indicativa basata sui dati inseriti e non costituiscono un’offerta finanziaria.
Inserzionista

Coldwell Banker Mondelli & Co.
Via Piave 27, Agropoli
Mostra Telefono
Mostra Cellulare
Chiama
CONTATTA

