Rustico via Conti della Morea, 32, Busca
€ 135.000BUSCA
Fabbricato da ristrutturare, libero su 3 lati disposto su 2 livelli con circa 1000 mq di giardino privato.
Dati principali
| Riferimento | ID2798167 |
| Data annuncio | 07/08/2025 |
| Contratto | Vendita |
| Tipologia | Rustico |
| Superficie | 150 m2 |
| Locali | 4 (2 camere da letto, 2 altro), 1 bagno, cucina cucinino |
| Piano | 2 totali |
| Numero di balconi | 1 |
| Box auto | Singolo |
| Arredamento | Assente |
Caratteristiche
Costi
| Prezzo | 135.000 € |
| Prezzo al m2 | 900 €/m2 |
Efficienza energetica
| Riscaldamento | Autonomo |
| Classe energetica | G |
| Indice di prestazione energetica (IPE) | 283.26 kWh/m2 anno |
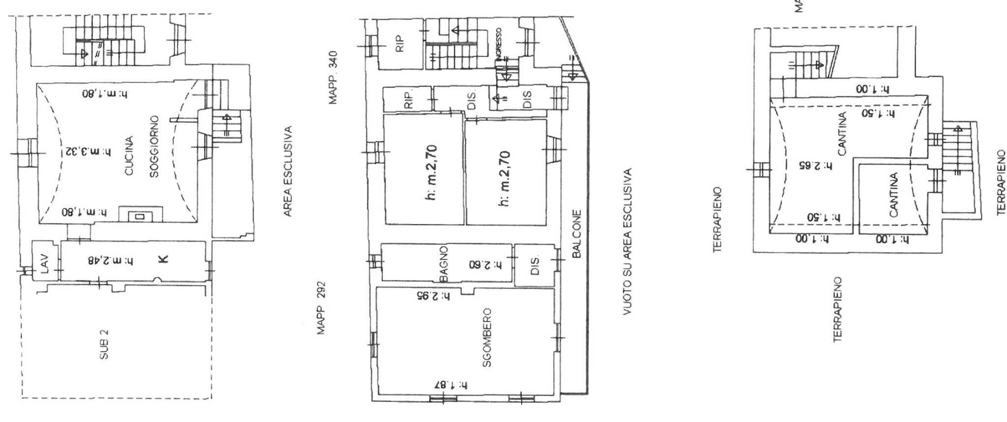
Planimetrie
Indirizzo e mappa
via Conti della Morea, 32, Busca
Calcolo mutuo
Prezzo di vendita:
Anticipo
20,00
Mutuo
80,00
Tasso: -+
Rata: 386 al mese
I risultati sono una stima indicativa basata sui dati inseriti e non costituiscono un’offerta finanziaria.
Inserzionista

COLOMBERO Immobiliare
Via F. Cavallotti 1, Cuneo
Mostra Telefono
Chiama
CONTATTA

