Trilocale via DELLE FONTANE 70, Borgosesia
€ 33.000Appartamento in vendita a Borgosesia, con posto auto
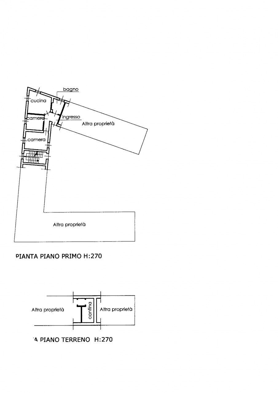
Questo appartamento in vendita si trova a Borgosesia e dispone di un cortile condominiale, perfetto per momenti di relax all’aria aperta, per chi ha animali o semplicemente per godersi un angolo vicino il cuore del paese. L'immobile, situato al primo piano di una palazzina, si compone di: - ingresso - soggiorno open space con angolo cottura - 2 camere da letto - bagno - balcone - cantina - posto auto Questa soluzione è un' ottima opportunità di investimento: il taglio dell’appartamento, la presenza del cortile e la posizione comoda lo rendono facilmente affittabile, garantendo una buona resa nel tempo. L’immobile, da ristrutturare, offre margini per chi desidera personalizzare gli ambienti secondo il proprio stile o le proprie esigenze, aggiungendo un tocco personale. Ecco una che si adatta a diverse esigenze, pratica, versatile e con un potenziale davvero interessante. Cosa aspetti a contattarci?
Dati principali
| Riferimento | 3-BSONT |
| Data annuncio | 25/07/2025 |
| Contratto | Vendita |
| Tipologia | Appartamento |
| Superficie | 45 m2 |
| Locali | 3 (2 camere da letto, 1 altro), 1 bagno, cucina angolo cottura |
| Piano | 1 di 1 totali |
| Tipo di costruzione | Media |
| Numero di balconi | 1 |
| Box auto | Assente |
| Numero posti auto | 1 |
| Arredamento | Assente |
Caratteristiche
Costi
| Prezzo | 33.000 € |
| Prezzo al m2 | 733 €/m2 |
| Spese condominiali | € 60,00/mese |
Efficienza energetica
| Stato | Da ristrutturare |
| Riscaldamento | Autonomo |
| Classe energetica | D |
| Indice di prestazione energetica (IPE) | 231 kWh/m2 anno |
Planimetrie
Indirizzo e mappa
via DELLE FONTANE 70, Borgosesia
Calcolo mutuo
Prezzo di vendita:
Anticipo
20,00
Mutuo
80,00
Tasso: -+
Rata: 94 al mese
I risultati sono una stima indicativa basata sui dati inseriti e non costituiscono un’offerta finanziaria.
Inserzionista
Chiama
CONTATTA


