Monolocale via Gioberti, 30, Gattinara
€ 60.000Appartamento in vendita a Gattinara, con cortile
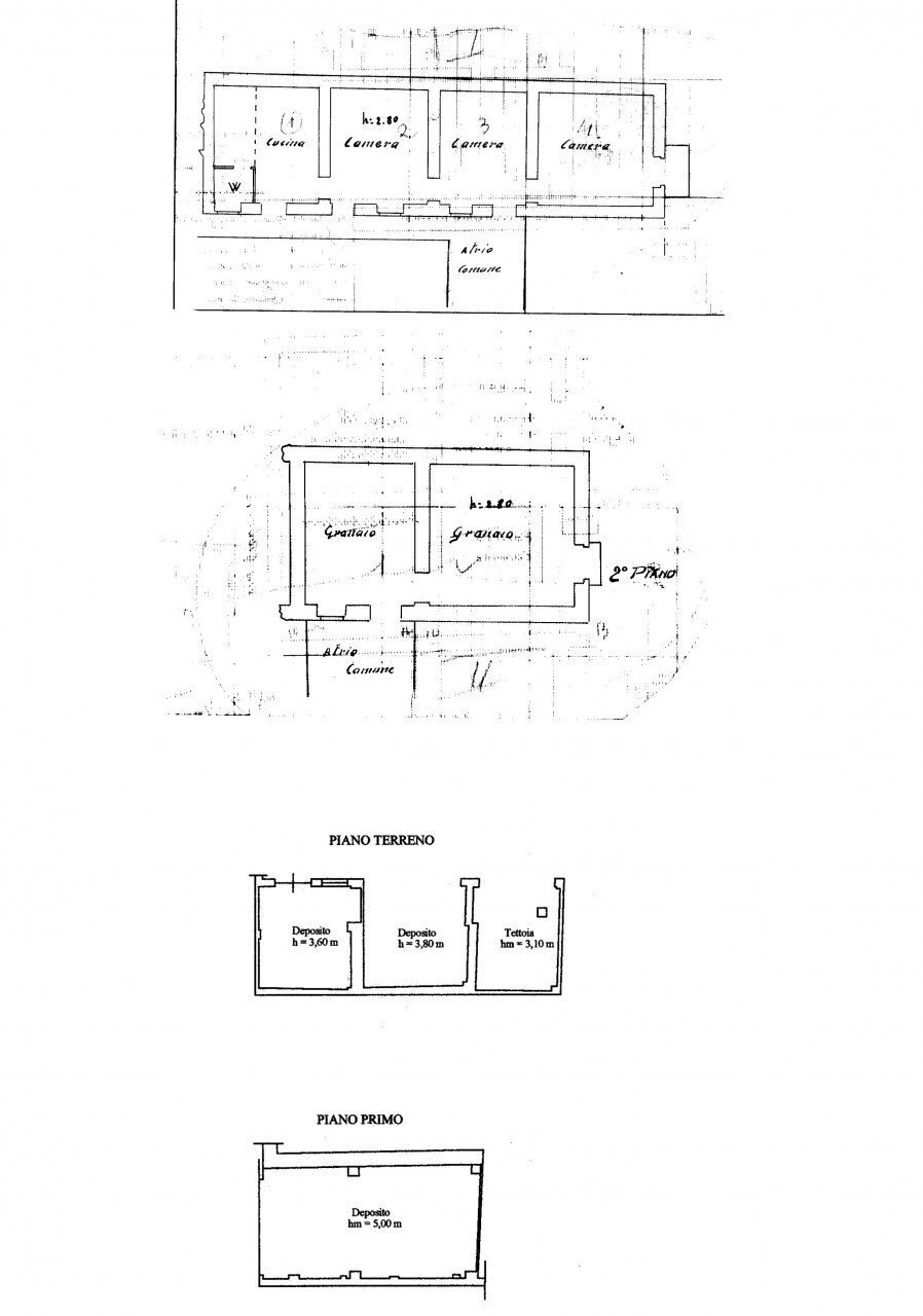
Questo appartamento in vendita si trova a Gattinara e gode di un comodo cortile privato, condiviso solo con poche unità, che dona una sensazione di apertura e respiro pur restando all’interno di un contesto protetto e riservato. Un luogo dove far giocare i bambini, rilassarsi all’aperto o vivere la quotidianità con semplicità. L'immobile, situato all'interno di una corte, si sviluppa su 3 livelli e si compone di: - piano terra con 3 stanze; - primo piano con cucina, soggiorno e bagno; - secondo piano con 2 stanze; L’immobile è completamente da ristrutturare, ma offre una base solida e una posizione comoda, poco distante dal centro e da tutti i principali servizi. È la casa perfetta per chi cerca spazio, indipendenza e la possibilità di costruire qualcosa di davvero unico. A completare la proprietà, un cassero con tetto nuovo che rappresenta un vero valore aggiunto: spazio extra da utilizzare come magazzino, laboratorio o, con un progetto mirato, da trasformare in qualcosa di completamente diverso. Contattaci per visitarla: ogni grande progetto comincia da un luogo che ti fa sentire a casa.
Dati principali
| Riferimento | 3-GATOBE |
| Data annuncio | 05/08/2025 |
| Contratto | Vendita |
| Tipologia | Appartamento |
| Superficie | 220 m2 |
| Locali | 1 (1 altro), 1 bagno, cucina abitabile |
| Piano | 1 totali |
| Tipo di costruzione | Media |
| Numero di terrazzi | 2 |
| Box auto | Assente |
| Arredamento | Assente |
Caratteristiche
Costi
| Prezzo | 60.000 € |
| Prezzo al m2 | 273 €/m2 |
Efficienza energetica
| Stato | Da ristrutturare |
| Riscaldamento | Autonomo |
| Classe energetica | D |
| Indice di prestazione energetica (IPE) | 645 kWh/m2 anno |
Planimetrie
Indirizzo e mappa
via Gioberti, 30, Gattinara
Calcolo mutuo
Prezzo di vendita:
Anticipo
20,00
Mutuo
80,00
Tasso: -+
Rata: 172 al mese
I risultati sono una stima indicativa basata sui dati inseriti e non costituiscono un’offerta finanziaria.
Inserzionista
Chiama
CONTATTA


