Villa Via Mazzini 156/154, Castel San Pietro Terme
€ 680.000
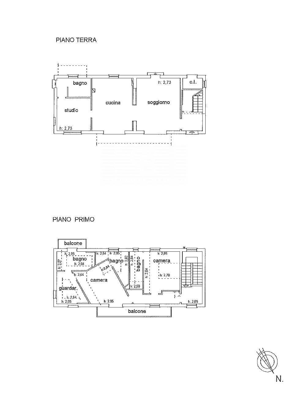
Villa indipendente ristrutturata con ampio giardino Castel San Pietro Terme In posizione centrale e prestigiosa, proponiamo in vendita esclusiva elegante villa indipendente di recente ristrutturazione (2018) con finiture di pregio e giardino privato di circa 850 mq. Disposta su due livelli, la proprietà si apre al piano terra con unampia zona living, cucina abitabile e camera con bagno en suite. Al primo piano la zona notte di circa 100 mq comprende due spaziose camere: la prima con cabina armadio, due bagni privati, balcone e accesso al terrazzo, la seconda con bagno en suite. Completano la proprietà un garage doppio al piano terra e spazi esterni curati che garantiscono privacy e vivibilità. Soluzione ideale per chi cerca comfort, eleganza e indipendenza nel cuore di Castel San Pietro Terme.
Dati principali
| Riferimento | CBI099-1528-520714 |
| Data annuncio | 09/08/2025 |
| Contratto | Vendita |
| Tipologia | Villa |
| Superficie | 200 m2 |
| Locali | 5 (3 camere da letto, 2 altro), 4 bagni, cucina abitabile |
| Piano | Su più livelli, 2 totali |
| Tipo di costruzione | Signorile |
| Occupato | Libero |
| Box auto | Doppio |
| Numero posti auto | 2 |
| Arredamento | Assente |
Caratteristiche
Costi
| Prezzo | 680.000 € |
| Prezzo al m2 | 3.400 €/m2 |
Efficienza energetica
| Stato | Parzialmente ristrutturato |
| Riscaldamento | Autonomo |
| Tipo Impianto Di Riscaldamento | a pavimento |
| Tipo Alimentazione Riscaldamento | Elettrico |
| Classe energetica | A2 |
Planimetrie
Video
Indirizzo e mappa
Via Mazzini
156/154, Castel San Pietro Terme
Annuncio senza mappa,
prova a chiedere la posizione all'inserzionista
prova a chiedere la posizione all'inserzionista
Calcolo mutuo
Prezzo di vendita:
Anticipo
20,00
Mutuo
80,00
Tasso: -+
Rata: 1.945 al mese
I risultati sono una stima indicativa basata sui dati inseriti e non costituiscono un’offerta finanziaria.
Inserzionista

Coldwell Banker Prime Properties
Viale Virgilio 4, Riccione
Mostra Telefono
Mostra Cellulare
Chiama
CONTATTA

