Rustico Via san donato, Granarolo dell'Emilia
€ 300.000Rustico in vendita
Nel cuore della tranquilla località di Sabbiuno, nel comune di Castel Maggiore, si trova un rustico di 800 mq. Questo immobile, attualmente classificato come fabbricato agricolo, offre la possibilità di un cambio di destinazione d'uso, aprendo la strada a diverse opportunità di sviluppo. Circondato da un ampio terreno, il rustico rappresenta una soluzione ideale per chi desidera vivere immerso nella natura, pur rimanendo a breve distanza dai servizi cittadini. La struttura, con il suo fascino autentico, si presta a progetti di ristrutturazione che possono valorizzare le caratteristiche originali, integrandole con elementi moderni. L'ampio spazio esterno offre la possibilità di creare un giardino, un orto o altre aree ricreative, rendendo questa proprietà un'opportunità unica per chi cerca un ambiente sereno e personalizzabile.
Per maggiori informazioni o per un eventuale sopralluogo ci potete contattare al numero d'ufficio 0516056506 oppure 3485210130 (anche whatsapp).
Per maggiori informazioni o per un eventuale sopralluogo ci potete contattare al numero d'ufficio 0516056506 oppure 3485210130 (anche whatsapp).
Dati principali
| Riferimento | 61101009 |
| Data annuncio | 08/08/2025 |
| Contratto | Vendita |
| Tipologia | Rustico |
| Superficie | 800 m2 |
| Piano | 2 totali |
Costi
| Prezzo | 300.000 € |
| Prezzo al m2 | 375 €/m2 |
Efficienza energetica
| Anno costruzione | 1950 |
| Riscaldamento | Assente |
| Classe energetica | G |
| Indice di prestazione energetica (IPE) | - |
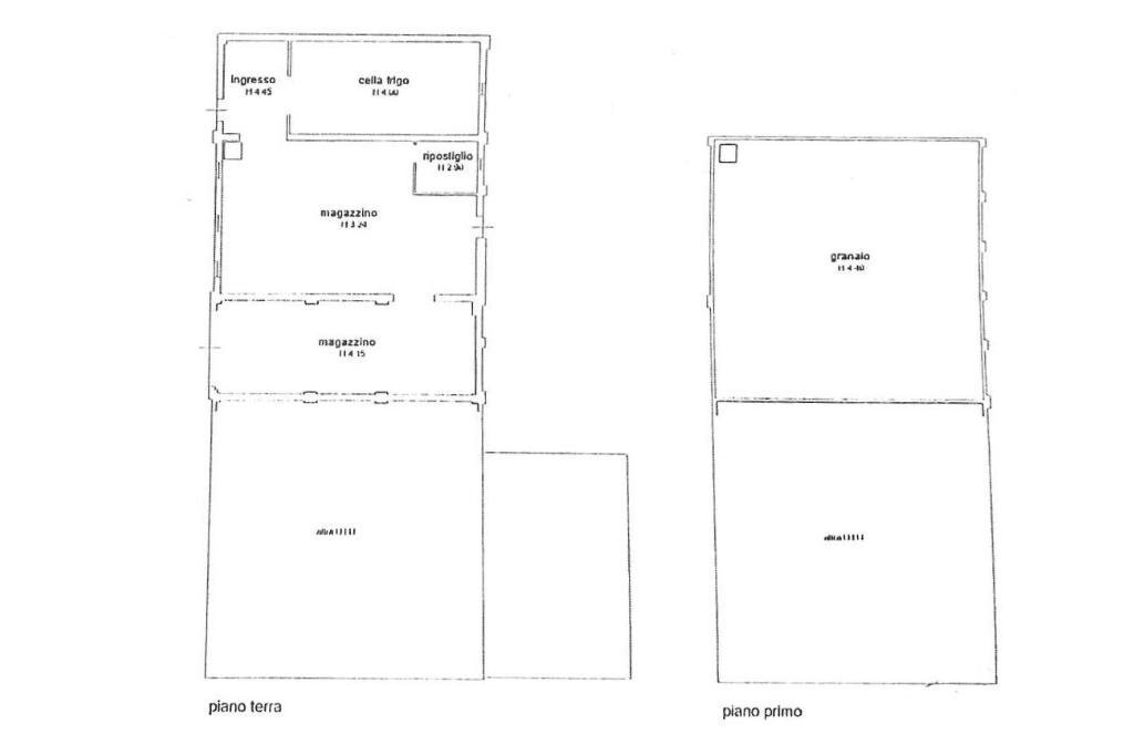
Planimetrie
Indirizzo e mappa
Via san donato, Granarolo dell'Emilia
Calcolo mutuo
Prezzo di vendita:
Anticipo
20,00
Mutuo
80,00
Tasso: -+
Rata: 858 al mese
I risultati sono una stima indicativa basata sui dati inseriti e non costituiscono un’offerta finanziaria.
Inserzionista
Chiama
CONTATTA

