Bilocale Via Arrigona, San Giacomo delle Segnate
€ 53.000Bilocale in vendita
SAN GIACOMO DELLE SEGNATE: In pieno centro storico e comoda a tutti i servizi, proponiamo appartamento bilocale ristrutturato post terremoto, disposto al piano primo.
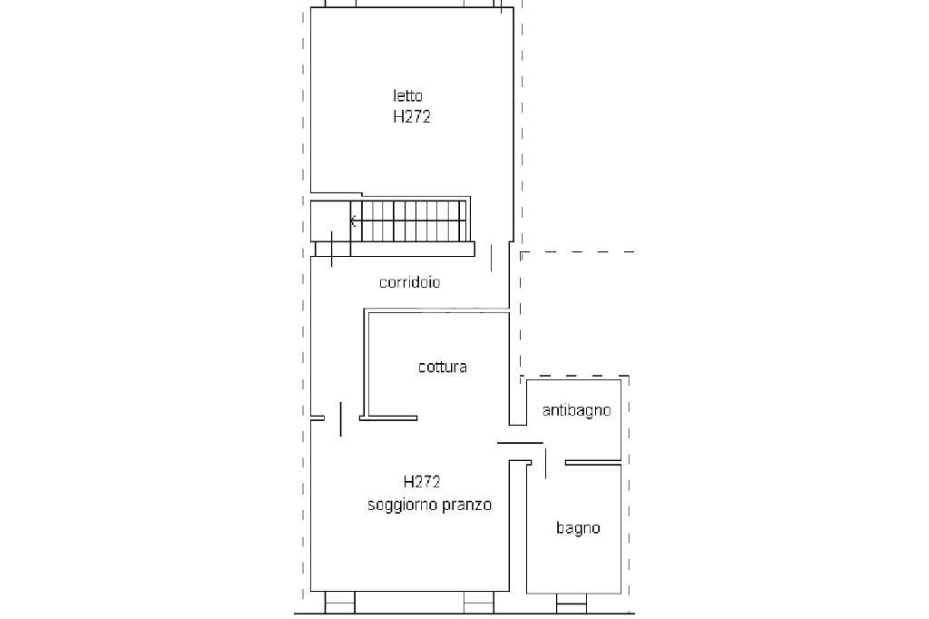
Questa soluzione, ultimata nel 2013, si compone di ingresso, soggiorno con angolo cottura semi separato, camera matrimoniale, anti bagno e bagno con doccia.
Peculiarità: la soluzione è completa di riscaldamento autonomo, porta blindata, infissi di ultima generazione, predisposizione aria condizionata, caldaia a condensazione, boiler nel bagno.
La soluzione è completa di ampia cantina/deposito e garage.
Per tutelare la privacy dei nostri clienti, l'indirizzo del presente annuncio potrebbe non corrispondere in maniera precisa all'esatta ubicazione dell'immobile.
Desideri conoscere il valore della tua casa? Chiamaci allo 0535.652477 per una valutazione gratuita e senza impegno.
Questa soluzione, ultimata nel 2013, si compone di ingresso, soggiorno con angolo cottura semi separato, camera matrimoniale, anti bagno e bagno con doccia.
Peculiarità: la soluzione è completa di riscaldamento autonomo, porta blindata, infissi di ultima generazione, predisposizione aria condizionata, caldaia a condensazione, boiler nel bagno.
La soluzione è completa di ampia cantina/deposito e garage.
Per tutelare la privacy dei nostri clienti, l'indirizzo del presente annuncio potrebbe non corrispondere in maniera precisa all'esatta ubicazione dell'immobile.
Desideri conoscere il valore della tua casa? Chiamaci allo 0535.652477 per una valutazione gratuita e senza impegno.
Dati principali
| Riferimento | 61094336 |
| Data annuncio | 07/08/2025 |
| Contratto | Vendita |
| Tipologia | Appartamento |
| Superficie | 67 m2 |
| Locali | 2 (2 altro), 1 bagno |
| Piano | 1 di 3 totali |
Costi
| Prezzo | 53.000 € |
| Prezzo al m2 | 791 €/m2 |
Efficienza energetica
| Anno costruzione | 2013 |
| Riscaldamento | Autonomo |
| Tipo Alimentazione Riscaldamento | Metano |
| Classe energetica | C |
| Indice di prestazione energetica (EP GL, REN) | 24 kWh/m3 anno |
| Indice di prestazione energetica (EP GL, NREN) | 24 kWh/m3 anno |
Planimetrie
Video
Indirizzo e mappa
Via Arrigona, San Giacomo delle Segnate
Calcolo mutuo
Prezzo di vendita:
Anticipo
20,00
Mutuo
80,00
Tasso: -+
Rata: 152 al mese
I risultati sono una stima indicativa basata sui dati inseriti e non costituiscono un’offerta finanziaria.
Inserzionista
Chiama
CONTATTA

