Trilocale Grottammare
€ 550.000
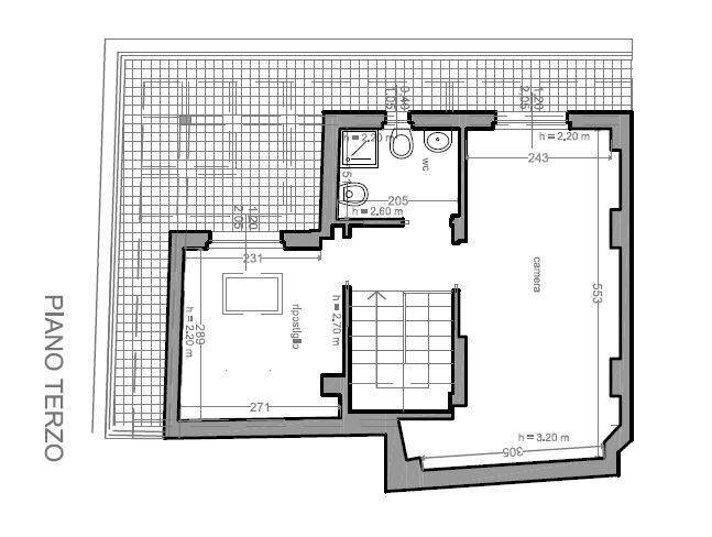
Appartamento su 2 livelli Nuovo in Centro a Grottammare Classe A3 In posizione centrale e servita, a due passi dalla passeggiata, dal mare e dal Paese Alto, proponiamo in vendita un esclusivo appartamento di nuova costruzione, disposto su due livelli (secondo e terzo piano), in una palazzina signorile di sole tre unità abitative. Superficie interna: circa 86 mq Balcone: 10 mq Terrazza panoramica: vista incantevole sul centro storico di Grottammare L'immobile si compone di: Piano Secondo: Ampio soggiorno con angolo cottura (possibilità di realizzare una cucina abitabile) Bagno finestrato con box doccia Ripostiglio rialzato, ideale anche come cabina armadio o zona studio Balcone vivibile Scala di collegamento al piano superiore Piano Terzo: Due comode camere da letto Secondo bagno finestrato con doccia Splendida terrazza panoramica perfetta per cene allaperto e momenti di relax Ogni unità è dotata di pannello solare privato per garantire efficienza energetica e indipendenza, in Classe Energetica A3. Finiture personalizzabili: scegli i materiali e i dettagli per renderlo la tua casa ideale. Una soluzione abitativa moderna e sostenibile, perfetta sia come residenza principale che come casa per il mare. Posizione strategica, vicino a tutti i servizi e al lungomare. Contattaci per maggiori dettagli o per prenotare una visita in cantiere! www.immobiliaremagia.it | Agenzia Magia Immobiliare Castel di Lama & San Benedetto del Tronto
Dati principali
| Riferimento | 614 |
| Data annuncio | 05/08/2025 |
| Contratto | Vendita |
| Tipologia | Appartamento |
| Superficie | 86 m2 |
| Locali | 3 (2 camere da letto, 1 altro), 2 bagni, cucina angolo cottura |
| Piano | Su più livelli, 4 totali |
| Tipo di costruzione | Signorile |
| Occupato | Libero |
| Box auto | Assente |
| Arredamento | Assente |
Caratteristiche
Costi
| Prezzo | 550.000 € |
| Prezzo al m2 | 6.395 €/m2 |
Efficienza energetica
| Stato | Ottimo |
| Riscaldamento | Autonomo |
| Tipo Impianto Di Riscaldamento | a pavimento |
| Tipo Alimentazione Riscaldamento | Elettrico |
| Classe energetica | A3 |
Indirizzo e mappa
Grottammare
Annuncio senza mappa,
prova a chiedere la posizione all'inserzionista
prova a chiedere la posizione all'inserzionista
Calcolo mutuo
Prezzo di vendita:
Anticipo
20,00
Mutuo
80,00
Tasso: -+
Rata: 1.573 al mese
I risultati sono una stima indicativa basata sui dati inseriti e non costituiscono un’offerta finanziaria.
Inserzionista

MAGIA immobiliare
Via Salaria, 90, Castel di Lama
Mostra Telefono
Chiama
CONTATTA

