Casa indipendente borgata demaria, Sanfront
€ 34.000SANFRONT - CASA INDIPENDENTE 80 MQ.
SANFRONT - Casa indipendente su quattro lati, immersa nel verde e nella natura, ideale per chi cerca tranquillità e comfort.
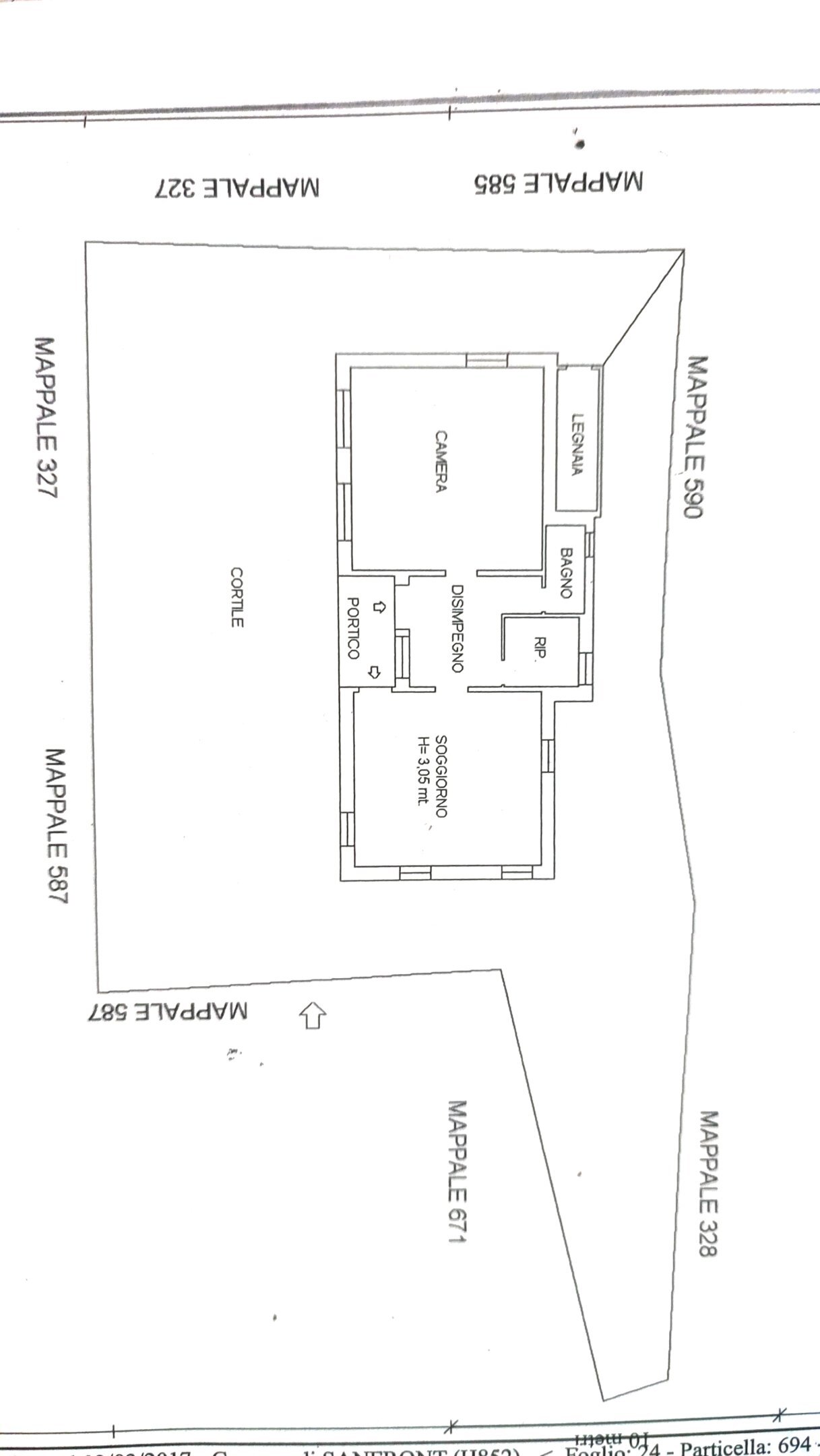
Disposta su un unico livello, l'ingresso avviene tramite un accogliente porticato che conduce a una spaziosa e luminosa cucina, disimpegno, camera da letto, di circa 30 mq, offre la possibilità di essere suddivisa per creare ulteriori spazi.
Completano la proprietà un bagno, un ripostiglio, un giardino privato e una legnaia, il tutto senza barriere architettoniche, garantendo accessibilità e praticità.
Raggiungibile in auto, gli ultimi 1.8 km di strada sterrata con un tratto di 700 metri che richiede un veicolo 4X4 per garantire la massima sicurezza e comfort.
Non perdere l'opportunità di vivere in un'oasi di pace!
Disposta su un unico livello, l'ingresso avviene tramite un accogliente porticato che conduce a una spaziosa e luminosa cucina, disimpegno, camera da letto, di circa 30 mq, offre la possibilità di essere suddivisa per creare ulteriori spazi.
Completano la proprietà un bagno, un ripostiglio, un giardino privato e una legnaia, il tutto senza barriere architettoniche, garantendo accessibilità e praticità.
Raggiungibile in auto, gli ultimi 1.8 km di strada sterrata con un tratto di 700 metri che richiede un veicolo 4X4 per garantire la massima sicurezza e comfort.
Non perdere l'opportunità di vivere in un'oasi di pace!
Dati principali
| Riferimento | ID2794280 |
| Data annuncio | 04/08/2025 |
| Contratto | Vendita |
| Tipologia | Casa indipendente |
| Superficie | 80 m2 |
| Locali | 3 (1 camera da letto, 2 altro), 1 bagno, cucina abitabile |
| Piano | Terra |
| Tipo di costruzione | Civile |
| Occupato | Libero |
| Lati liberi | Quattro |
Caratteristiche
Costi
| Prezzo | 34.000 € |
| Prezzo al m2 | 425 €/m2 |
Efficienza energetica
| Anno costruzione | 1960 |
| Stato | Buono |
| Riscaldamento | Autonomo |
| Tipo Impianto Di Riscaldamento | a stufa |
| Tipo Alimentazione Riscaldamento | Pellet |
| Infissi esterni | Vetro / Legno |
| Classe energetica | D |
| Indice di prestazione energetica (IPE) | 532.93 kWh/m2 anno |
Planimetrie
Indirizzo e mappa
borgata demaria, Sanfront
Calcolo mutuo
Prezzo di vendita:
Anticipo
20,00
Mutuo
80,00
Tasso: -+
Rata: 97 al mese
I risultati sono una stima indicativa basata sui dati inseriti e non costituiscono un’offerta finanziaria.
Inserzionista

Le Valli Immobiliare
Piazza della Vittoria 11, Revello
Mostra Telefono
Mostra Cellulare
Chiama
CONTATTA

