Appartamento via Alessandro Manzoni, 14, Mondovì
€ 185.000APPARTAMENTO LUMINOSO E SPAZIOSO
Esiste un luogo dove lo spazio non è un lusso, ma la norma. Dove la tranquillità di una via residenziale si unisce alla comodità di un contesto signorile e ben abitato. Benvenuti in Via Alessandro Manzoni. Proponiamo in vendita un appartamento di ampia metratura, pensato per chi desidera una qualità della vita superiore e ambienti in cui ogni membro della famiglia possa trovare la propria dimensione. L'immobile si apre su un ingresso accogliente che introduce a un soggiorno di straordinario respiro: un ambiente luminoso e spazioso, cuore della casa, ideale per momenti di convivialità e relax. La cucina, separata e inondata di luce naturale, si affaccia su un pratico balcone, offrendo uno spazio funzionale e piacevole per le vostre creazioni culinarie. La zona notte è la vera essenza della versatilità. Con le sue tre camere da letto, questa casa si adatta a ogni esigenza: perfette per garantire il riposo, possono essere trasformate con facilità in uno studio professionale per lo smart working, una sala hobby o una zona fitness privata. La presenza dei doppi servizi, entrambi curati e funzionali, aggiunge un ulteriore livello di comfort alla vita quotidiana. A completare la proprietà, una pratica cantina e una spaziosa autorimessa privata, che risolvono definitivamente ogni esigenza di spazio e parcheggio, rendendo la vita quotidiana ancora più agevole e ordinata. Abitare qui significa scegliere un indirizzo, non solo una casa. Significa investire in spazio, luce e infinite possibilità, con la certezza di un comfort a 360 gradi. LIBERO DA OTTOBRE 2026 Tutte le informazioni contenute negli annunci immobiliari (caratteristiche tecniche, disposizione degli ambienti, accessori, dotazioni, ecc…) potrebbero non corrispondere in parte allo stato di fatto attuale dell'immobile. Inoltre, i vari portali immobiliari utilizzano diversi criteri per la pubblicazione dello stesso annuncio che può generare differenze sui dati inseriti dalla Dielle Studiocasa S.A.S. e la stessa declina ogni responsabilità per eventuali involontarie incoerenze. Nota: Alcune delle foto presenti in questo annuncio sono state digitalmente rielaborate per mostrare potenziali arredamenti e finiture, al fine di aiutarti a immaginare la trasformazione futura dell'immobile.
Dati principali
| Riferimento | 1229 |
| Data annuncio | 01/08/2025 |
| Contratto | Vendita |
| Tipologia | Appartamento |
| Superficie | 131 m2 |
| Locali | 5 (3 camere da letto, 2 altro), 2 bagni, cucina angolo cottura |
| Piano | 1 di 5 totali |
| Tipo di costruzione | Media |
| Numero di terrazzi | 1 |
| Numero di balconi | 1 |
| Box auto | Singolo |
| Numero posti auto | 1 |
| Arredamento | Assente |
Caratteristiche
Costi
| Prezzo | 185.000 € |
| Prezzo al m2 | 1.412 €/m2 |
| Spese condominiali | € 230,00/mese |
Efficienza energetica
| Anno costruzione | 1978 |
| Stato | Buono |
| Riscaldamento | Centralizzato |
| Classe energetica | F |
| Indice di prestazione energetica (IPE) | 118.04 kWh/m2 anno |
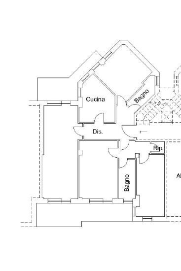
Planimetrie
Indirizzo e mappa
via Alessandro Manzoni, 14, Mondovì
Calcolo mutuo
Prezzo di vendita:
Anticipo
20,00
Mutuo
80,00
Tasso: -+
Rata: 529 al mese
I risultati sono una stima indicativa basata sui dati inseriti e non costituiscono un’offerta finanziaria.
Inserzionista

Dielle Studiocasa
Corso Italia 2, Mondovì
Mostra Telefono
Chiama
CONTATTA

