

Bilocale Grottammare
€ 230.000
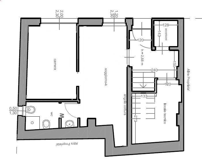
In Vendita Bilocale Nuovo in Classe A3 a Grottammare Centro Nel cuore di Grottammare, a pochi passi dal mare, dalla passeggiata e da tutti i principali servizi, proponiamo in vendita un elegante bilocale di nuova costruzione, inserito in una palazzina esclusiva di sole tre unità. Superficie: circa 39 mq ben distribuiti Soggiorno con angolo cottura Camera matrimoniale Bagno finestrato con doccia Limmobile verrà consegnato rifinito con materiali di pregio, selezionabili a scelta dellacquirente, per un tocco davvero personale. Ogni unità è dotata di pannello solare privato, garanzia di indipendenza energetica e sostenibilità ambientale. La casa è in classe energetica A3, ideale per chi cerca unabitazione ad alto risparmio energetico. Perfetta come casa vacanze, ma anche come prima abitazione green in una delle località più vivibili e richieste della Riviera Adriatica. Contattaci per visionare il capitolato, conoscere i dettagli costruttivi o fissare una visita in cantiere. Magia Immobiliare Investi nel tuo futuro, con la sicurezza di chi conosce il territorio da oltre 30 anni. www.immobiliaremagia.it Via Salaria 90, Castel di Lama / Viale Marinai dItalia 1/A, San Benedetto del Tronto 0735582398
Dati principali
| Riferimento | 611 |
| Data annuncio | 03/08/2025 |
| Contratto | Vendita |
| Tipologia | Appartamento |
| Superficie | 39 m2 |
| Locali | 2 (1 camera da letto, 1 altro), 1 bagno, cucina angolo cottura |
| Piano | Terra, 4 totali |
| Tipo di costruzione | Signorile |
| Occupato | Libero |
| Box auto | Assente |
| Arredamento | Assente |
Caratteristiche
Costi
| Prezzo | 230.000 € |
| Prezzo al m2 | 5.897 €/m2 |
Efficienza energetica
| Stato | Ottimo |
| Riscaldamento | Autonomo |
| Tipo Impianto Di Riscaldamento | a pavimento |
| Tipo Alimentazione Riscaldamento | Elettrico |
| Classe energetica | A3 |
Planimetrie
Indirizzo e mappa
Grottammare
Annuncio senza mappa,
prova a chiedere la posizione all'inserzionista
prova a chiedere la posizione all'inserzionista
Calcolo mutuo
Prezzo di vendita:
Anticipo
20,00
Mutuo
80,00
Tasso: -+
Rata: 658 al mese
I risultati sono una stima indicativa basata sui dati inseriti e non costituiscono un’offerta finanziaria.
Inserzionista

MAGIA immobiliare
Via Salaria, 90, Castel di Lama
Mostra Telefono
Chiama
CONTATTA