Appartamento Via Giovanni Falcone, Candiolo
€ 179.0005 locali in vendita
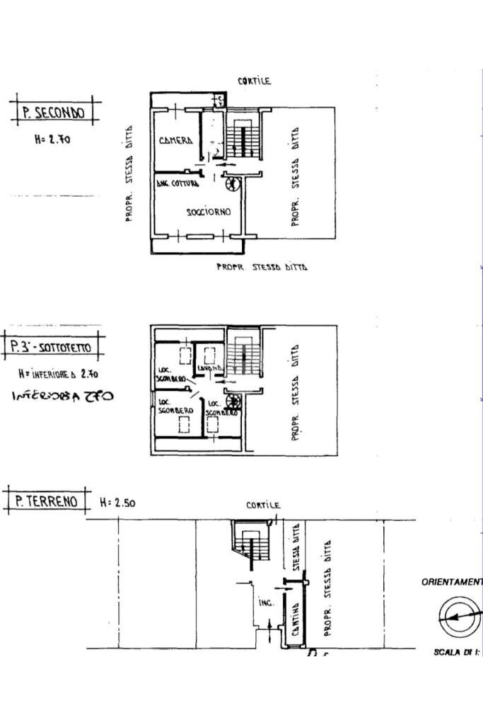
Situato in zona residenziale in una palazzina in paramano del 95' composta da soli quattro appartamenti e senza spese di condominio. L'ingresso è living direttamente sul soggiorno ampio comunicante con la cucina abitabile, entrambi i locali hanno accesso al balcone dotato già di tenda estiva. La camera da letto matrimoniale ha l'accesso al balcone dove è installata la caldaia che gestisce il riscaldamento e l'acqua calda sanitaria; confinante alla camera e diviso da un disimpegno è presente il bagno finestrato dotato di doccia e attacco per la lavatrice. Il piano sottotetto non abitabile è collegato sia tramite scala interna a chiocciola e sia tramite scala condominiale con accesso indipendente; i locali sono tre e sono dotati di velux con serrande, oltre alla lavanderia. L'immobile è luminoso e ha un ottima vista, la zona è tranquilla e riservata, ma allo stesso tempo è comoda al centro paese e alla stazione. Gli infissi dell'abitazione sono tutti in legno con doppio vetro e sono dotati di zanzariere. Nella zona giorno è presente il climatizzatore e nel sottotetto oltre ai termosifoni è presente uno split per l'aria calda. Completa l'unità abitativa la cantina e il box doppio con accesso tramite cancello carraio automatizzato e collegato direttamente al vano scala condominiale.
Dati principali
| Riferimento | 61095383 |
| Data annuncio | 31/07/2025 |
| Contratto | Vendita |
| Tipologia | Appartamento |
| Superficie | 110 m2 |
| Locali | 5 (5 altro), 2 bagni |
| Piano | 2 di 2 totali |
Costi
| Prezzo | 179.000 € |
| Prezzo al m2 | 1.627 €/m2 |
Efficienza energetica
| Anno costruzione | 1995 |
| Riscaldamento | Autonomo |
| Tipo Alimentazione Riscaldamento | Metano |
| Classe energetica | D |
| Indice di prestazione energetica (EP GL, REN) | 83.23 kWh/m3 anno |
| Indice di prestazione energetica (EP GL, NREN) | 144.97 kWh/m3 anno |
Planimetrie
Video
Indirizzo e mappa
Via Giovanni Falcone, Candiolo
Calcolo mutuo
Prezzo di vendita:
Anticipo
20,00
Mutuo
80,00
Tasso: -+
Rata: 512 al mese
I risultati sono una stima indicativa basata sui dati inseriti e non costituiscono un’offerta finanziaria.
Inserzionista
Agenzia Tecnocasa Candiolo Case Sas
Via Torino, 18, Candiolo
Mostra Telefono
Chiama
CONTATTA

