Trilocale Via Bagnolo, Barge
€ 58.000Trilocale in vendita
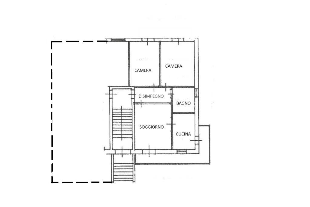
BARGE, in Via Bagnolo, a pochi passi dal centro, è disponibile un alloggio al primo piano.
L'ingresso si apre su un disimpegno che conduce a tutte le stanze, garantendo una disposizione funzionale degli spazi.
La zona giorno comprende un tinello, ideale per i momenti conviviali. Le due camere da letto offrono comfort e tranquillità, mentre il bagno è pratico e ben organizzato.
Completano la proprietà due balconi, perfetti per godere di momenti all'aperto, un box auto e un posto auto esterno.
Il giardino condominiale aggiunge un tocco di verde all'ambiente, offrendo uno spazio esterno piacevole.
L'ingresso si apre su un disimpegno che conduce a tutte le stanze, garantendo una disposizione funzionale degli spazi.
La zona giorno comprende un tinello, ideale per i momenti conviviali. Le due camere da letto offrono comfort e tranquillità, mentre il bagno è pratico e ben organizzato.
Completano la proprietà due balconi, perfetti per godere di momenti all'aperto, un box auto e un posto auto esterno.
Il giardino condominiale aggiunge un tocco di verde all'ambiente, offrendo uno spazio esterno piacevole.
Dati principali
| Riferimento | 61096444 |
| Data annuncio | 29/07/2025 |
| Contratto | Vendita |
| Tipologia | Appartamento |
| Superficie | 80 m2 |
| Locali | 3 (3 altro), 1 bagno |
| Piano | 1 di 4 totali |
| Numero posti auto | 1 |
Costi
| Prezzo | 58.000 € |
| Prezzo al m2 | 725 €/m2 |
| Spese condominiali | € 100,00/mese |
Efficienza energetica
| Anno costruzione | 1975 |
| Riscaldamento | Autonomo |
| Tipo Alimentazione Riscaldamento | Metano |
| Classe energetica | G |
| Indice di prestazione energetica (EP GL, REN) | 90.27 kWh/m3 anno |
| Indice di prestazione energetica (EP GL, NREN) | 438.19 kWh/m3 anno |
Planimetrie
Video
Indirizzo e mappa
Via Bagnolo, Barge
Calcolo mutuo
Prezzo di vendita:
Anticipo
20,00
Mutuo
80,00
Tasso: -+
Rata: 166 al mese
I risultati sono una stima indicativa basata sui dati inseriti e non costituiscono un’offerta finanziaria.
Inserzionista
Chiama
CONTATTA

