Quadrilocale Via Cervino, Alpignano
€ 269.000Quadrilocale in vendita
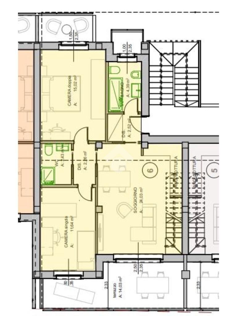
Il piccolo condominio di nuova costruzione ospiterà due scale. La prima accoglierà 4 appartamenti e, la seconda servita dall'ascensore 6. Ubicata in una splendida e comoda posizione, la costruzione offrirà molta privacy. Particolarmente esposto al sole, il piccolo condominio sorgerà al fondo di una via chiusa, ampia e ricca di parcheggi pubblici, regalando tranquillità senza togliere la comodità di essere in centro al paese. Giardini privati e terrazzi garantiranno gli sfoghi esterni di proprietà. L'appartamento, identificato con la sigla 'A6' è posizionato al primo ed ultimo piano e possiede una mansarda . di i 75 metri collegata dalla scala interna posata nel soggiorno. L'ingresso principale avverrà attraverso la porta blindata nel disimpegno a vista sul soggiorno con l'angolo cottura. La zona giorno, caratterizzata dalla scala che porta al piano mansardato, ospita la grande porta finestra di 2,5 metri che garantirà l'accesso al terrazzo di 15 metri quadrati. Il disimpegno di ingresso porterà al primo bagno finestrato, arricchito dal balconcino privato. Nel bagno verrà installata la vasca. Dal soggiorno, attraverso il disimpegno della zona notte, si potrà raggiungere il secondo bagno con la doccia. La camera più grande avrà il suo balcone privato che affaccia sul lato principale del piccolo fabbricato, quella più piccola avrà accesso al terrazzo che collega anche la zona giorno. Illuminato dalla doppia esposizione, l'immobile sarà collegato internamente al piano mansardato . di 75 metri. A far luce sarà il Velux che ospita al suo interno. L'altezza del piano superiore raggiungerà i 3,5 metri. La catina di proprietà è ubicata al piano interrato. Sullo stesso livello saranno presenti le autorimesse acquistabili a parte, singole o doppie con area di manovra di circa 6 metri. Il piccolo fabbricato verrà costruito rispettando le recenti normative legate al risparmio energetico garantendo una classe 'A'. Il riscaldamento ed il raffrescamento saranno a pavimento gestiti dalle pompe di calore con i relativi pannelli sul tetto. Ogni appartamento verrà consegnato finito in ogni parte con il rilascio delle relative conformità. Predisposizione della climatizzazione, predisposizione dell'antifurto e tapparelle elettriche saranno comfort presenti in ogni unità. Le prenotazioni sono disponibili da subito, la consegna è prevista per l'autunno 2026.
Le immagini non costituiscono elemento contrattuale.
Le immagini non costituiscono elemento contrattuale.
Dati principali
| Riferimento | 61093786 |
| Data annuncio | 28/07/2025 |
| Contratto | Vendita |
| Tipologia | Appartamento |
| Superficie | 102 m2 |
| Locali | 4 (4 altro), 2 bagni |
| Piano | 1 di 1 totali |
Costi
| Prezzo | 269.000 € |
| Prezzo al m2 | 2.637 €/m2 |
| Spese condominiali | € 83,00/mese |
Efficienza energetica
| Anno costruzione | 2025 |
| Riscaldamento | Autonomo |
| Classe energetica | A3 |
| Indice di prestazione energetica (EP GL, REN) | 100 kWh/m3 anno |
| Indice di prestazione energetica (EP GL, NREN) | 100 kWh/m3 anno |
Planimetrie
Video
Indirizzo e mappa
Via Cervino, Alpignano
Calcolo mutuo
Prezzo di vendita:
Anticipo
20,00
Mutuo
80,00
Tasso: -+
Rata: 769 al mese
I risultati sono una stima indicativa basata sui dati inseriti e non costituiscono un’offerta finanziaria.
Inserzionista
Chiama
CONTATTA

