Appartamento via Quintilio Varo, 46, Roma
€ 745.000APPIO CLAUDIO APPARTAMENTO SU DUE LIVELLI CON TERRAZZO
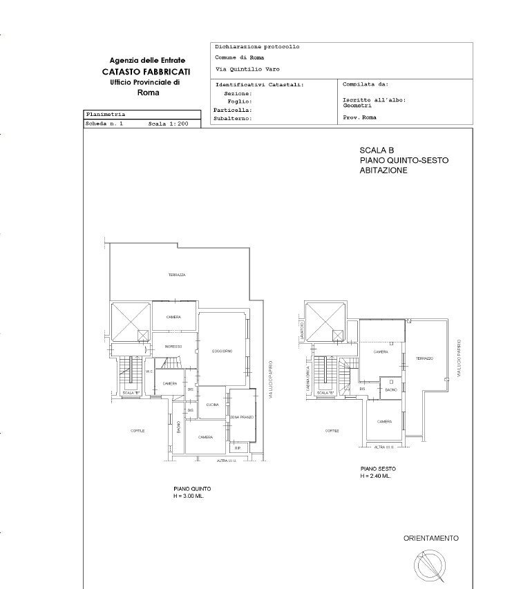
NEL QUARTIERE DELL’APPIO CLAUDIO SERVITO DA TUTTI SERVIZI DI QUARTIERE A 200 METRI DALLA METRO GIULIO AGRICOLA E A RIDOSSO DEL PARCO ACQUEDOTTI PROPONIAMO IN PALAZZINA IN CORTINA CON LAVORI DI RIFACIMENTO DELL’EDIFICIO GIA’ DELIBERATI E A CARICO DEL VENDITORE ATTICO E SUPER ATTICO VOLENDO DIVISIBILE DI MQ 210 COPERTI ATTUALMENTE COSI’ COMPOSTO AL PIANO ATTICO ABBIAMO AMPIO INGRESSO SALONE DOPPIO CON CAMINO STUDIO DUE CAMERE CUCINA ABITABILE CON SALA DA PRANZO VERANDATA DOPPI SERVIZI E RIPOSTIGLIO TERRAZZO A LIVELLO DI CIRCA MQ 60 TRAMITE UNA COMODA SCALA ACCEDE AL PIANO SUPER ATTICO COMPOSTO DA DUE GRANDI CAMERE MATRIMONIALI BAGNO E TERRAZZO A LIVELLO DI MQ. 25 COMPLETA LA PROPRIETA’ UNA CANTINA VI E’ LA POSSIBILITA’ DI ACQUISTARE NELLO STESSO EDIFICIO UN COMODO E AMPIO BOX AUTO DI MQ 23 CHE PUO’ ACCOGLIERE UN SUV OLTRE MOTO MOTORINI E BICICLETTE ALTO 5,5. CLASSE G IPE 175 - NB: TUTTE LE INFORMAZIONI IVI CONTENUTE COMPRESE LE METRATURE E LE PLANIMETRIE SONO DA INTENDERSI PURAMENTE A TITOLO INDICATIVO E NON COSTITUISCONO ELEMENTO CONTRATTUALE. La Topcasa Immobiliare srl ha la propria sede a Roma in via Raffaele de Cesare 87/91, è presente sull'intero territorio nazionale tramite partners associati f. i. a. i. p. "federazione italiana agenti immobiliari professionali"; si avvale della collaborazione di personale altamente qualificato che dal 1983 opera nel settore immobiliare delle compravendite. VALUTAZIONI: valutazione gratuita in 48 ore se finalizzata alla vendita o alla locazione dell'immobile. STIME: perizia estimativa scritta, legalmente valida, e visura ipocatastale. SERVIZI: assistenza tecnico legale. La professionalità degli agenti immobiliari della Topcasa Immobiliare, tutti regolarmente iscritti, permette di fronteggiare sempre ogni situazione per fornire ai clienti una mirata assistenza in tutte le fasi dell'alienazione o locazione dell'immobile. LOCAZIONI: locazioni rispondenti alle leggi 431/98 e 392/78 ed alle recenti normative, per non incorrere in pesanti sanzioni o trovarsi in problematici conflitti con il conduttore. La Topcasa Immobiliare, costantemente attenta alle esigenze della clientela, si avvale della collaborazione di professionisti esterni avvocati, notai, architetti, commercialisti, geometri, visuristi. Promozione immobili sulle più importanti testate del settore e portali internet di rilevanza nazionale. Database clienti costantemente aggiornato. Clienti istituzionali interessati nell'acquisizione di interi stabili, in seguito venduti frazionatamente dopo eventuali interventi di ristrutturazione. Sottoscritto, tramite la f. i. a. i. p. una convenzione operativa con primari istituti bancari."
Dati principali
| Riferimento | QUINTILIO VARO |
| Data annuncio | 20/03/2025 |
| Contratto | Vendita |
| Tipologia | Appartamento |
| Superficie | 229 m2 |
| Locali | più di 5 (4 camere da letto, 5 altro), 3 bagni, cucina abitabile |
| Piano | 6 totali |
| Tipo di costruzione | Signorile |
| Numero di terrazzi | 1 |
| Box auto | Assente |
Caratteristiche
Costi
| Prezzo | 745.000 € |
| Prezzo al m2 | 3.253 €/m2 |
| Spese condominiali | € 225,00/mese |
Efficienza energetica
| Anno costruzione | 1967 |
| Stato | Buono |
| Riscaldamento | Centralizzato |
| Classe energetica | G |
| Indice di prestazione energetica (IPE) | 175 kWh/m2 anno |
Planimetrie
Indirizzo e mappa
via Quintilio Varo, 46, Roma
Calcolo mutuo
Prezzo di vendita:
Anticipo
20,00
Mutuo
80,00
Tasso: -+
Rata: 2.131 al mese
I risultati sono una stima indicativa basata sui dati inseriti e non costituiscono un’offerta finanziaria.
Inserzionista

Topcasa Immobiliare srl
Via raffaele de cesare 89, Roma
Mostra Telefono
Chiama
CONTATTA

