Villa via Roma, Vigliano d'Asti
€ 475.000Villa di recente costruzione, in posizione dominante!
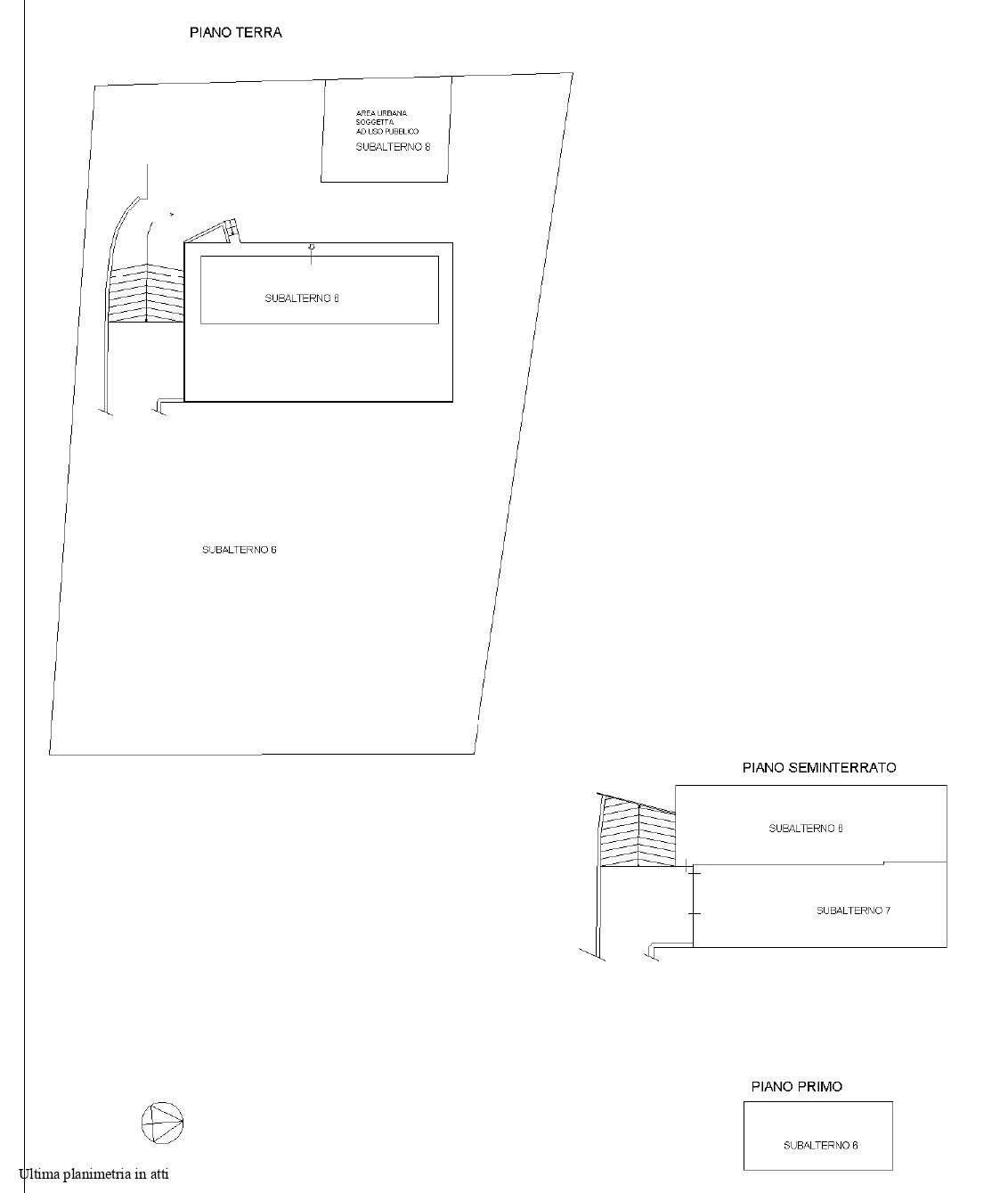
Un rifugio in cima alla collina con vista mozzafiato sul Monferrato! Arroccata in una posizione dominante, con uno spettacolare panorama che si estende su tutta la Val Tiglione, questa è una casa davvero unica per chi cerca luce, spazio e silenzio. Questa villa di recente costruzione, di mq 311, offre comfort moderni e una bellezza senza tempo in egual misura. La proprietà è immersa in un terreno (compreso l'ente urbano) di 13.357 mq, perfetti per progetti futuri, esempio una piscina o un piccolo frutteto e anche semplicemente per godersi la natura. L'ingresso carraio conduce a un intero piano seminterrato, sapientemente progettato per includere un ampio garage/ripostiglio di totali 309 mq, una cantina, un ufficio/studio, la centrale termica e una lavanderia con bagno. Una scala interna conduce alla zona giorno principale, con una luminosa cucina (inclusa nel prezzo) open space e la zona sala da pranzo che si affaccia direttamente sul giardino, ideale per vivere sia all'interno che all'esterno la vita in campagna. Questo piano dispone anche di uno spazioso soggiorno, un bagno / lavanderia e camera; questo piano offre un ampio spazio per la famiglia e gli ospiti. Al piano superiore, con vista mozzafiato in ogni direzione, troviamo due camere, disimpegno, un bagno e un'altra camera da letto con cabina armadio e bagno privato. Altri punti di forza: Luce naturale tutto l'anno. Impianto di videosorveglianza. Isolamento a cappotto. Indipendenza 4 lati. Tetto isolato e coibentato. Impianto di allarme. Riscaldamento a pavimento. Sistema di aspirazione centralizzata. Pronti a innamorarvi a prima vista? Prenotate la vostra visita.
Dati principali
| Riferimento | Yellow Villa |
| Data annuncio | 23/07/2025 |
| Contratto | Vendita |
| Tipologia | Villa |
| Superficie | 568 m2 |
| Locali | più di 5 (4 camere da letto, 6 altro), 3 bagni, cucina abitabile |
| Piano | 3 totali |
| Tipo di costruzione | Signorile |
| Numero di terrazzi | 1 |
| Numero di balconi | 1 |
| Box auto | Doppio |
| Numero posti auto | 3 |
| Arredamento | Parziale |
Caratteristiche
Costi
| Prezzo | 475.000 € |
| Prezzo al m2 | 836 €/m2 |
Efficienza energetica
| Anno costruzione | 2016 |
| Stato | Nuovo |
| Riscaldamento | Autonomo |
| Classe energetica | B |
| Indice di prestazione energetica (IPE) | 117.3 kWh/m2 anno |
Planimetrie
Indirizzo e mappa
via Roma, Vigliano d'Asti
Calcolo mutuo
Prezzo di vendita:
Anticipo
20,00
Mutuo
80,00
Tasso: -+
Rata: 1.358 al mese
I risultati sono una stima indicativa basata sui dati inseriti e non costituiscono un’offerta finanziaria.
Inserzionista
Chiama
CONTATTA


