Casa indipendente Montemagno, Camaiore
€ 280.000
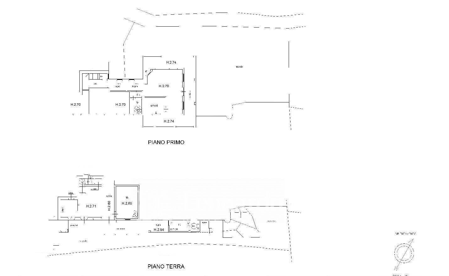
Casa indipendente con giardino Casa indipendente suddivisa in due unità Disponiamo in vendita di soluzione ideale per chi cerca un luogo tranquillo e riservato sulle colline di Camaiore e per famiglie numerose o che necessitano di due spazi indipendenti fra loro. Dal giardino, il loggiato conduce al primo appartamento che offre al piano terra uno spazioso salotto con camino, una camera, una cameretta e il bagno con doccia; scendendo al piano seminterrato la cucina ampiamente abitabile si affaccia all'area lavanderia e alla resede posteriore. Da qui si accede alla seconda abitazione composta al piano seminterrato dalla zona giorno con cucinotto a vista. Al piano superiore due camere ed un bagno con doccia completano gli ambienti della proprietà. Rif.C439 www.immobiliare-leonardo.it Vuoi altre informazioni? Vuoi valutare altre offerte immobiliari? Devi vendere il tuo immobile? Contattaci allo 0584961129 / +393756339708 Oppure vieni a trovarci nella nostra sede di Viareggio in Corso Garibaldi, 170 L'indirizzo proposto può essere nelle vicinanze per ragioni di privacy
Dati principali
| Riferimento | C439 |
| Data annuncio | 20/07/2025 |
| Contratto | Vendita |
| Tipologia | Casa indipendente |
| Superficie | 195 m2 |
| Locali | più di 5 (4 camere da letto, 4 altro), 2 bagni, cucina abitabile |
| Piano | Su più livelli |
| Tipo di costruzione | Media |
| Occupato | Libero |
| Numero posti auto | 3 |
| Arredamento | Parziale |
Caratteristiche
Costi
| Prezzo | 280.000 € |
| Prezzo al m2 | 1.436 €/m2 |
Efficienza energetica
| Stato | Buono |
| Riscaldamento | Autonomo |
| Classe energetica | G |
| Indice di prestazione energetica (IPE) | 150 kWh/m2 anno |
Planimetrie
Indirizzo e mappa
Montemagno, Camaiore
Annuncio senza mappa,
prova a chiedere la posizione all'inserzionista
prova a chiedere la posizione all'inserzionista
Calcolo mutuo
Prezzo di vendita:
Anticipo
20,00
Mutuo
80,00
Tasso: -+
Rata: 801 al mese
I risultati sono una stima indicativa basata sui dati inseriti e non costituiscono un’offerta finanziaria.
Inserzionista

Agenzia Immobiliare Leonardo
Corso Garibaldi, 170, Viareggio
Mostra Telefono
Mostra Cellulare
Chiama
CONTATTA

