Villa Via Ramacci, Castelletto Sopra Ticino
€ 180.000Villa singola in vendita
Castelletto sopra Ticino: NON TRATTABILE
GLI APPUNTAMENTI SONO TEMPORANEAMENTE SOSPESI FINO ALLA FINE DI DI APRILE. PER INFORMAZIONI CONTATTATECI IN UFFICIO.
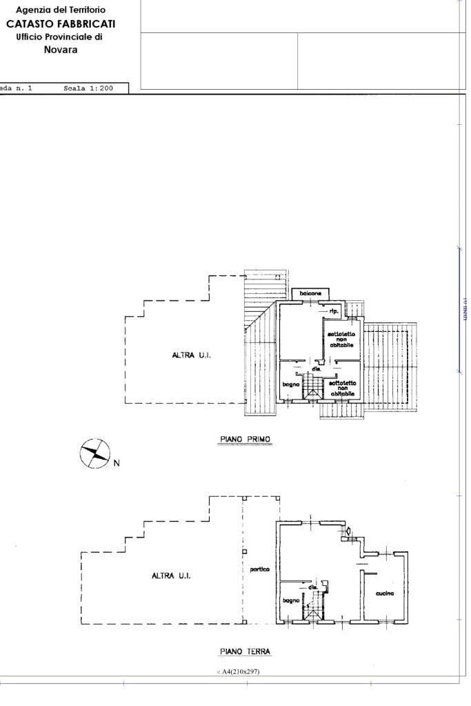
in zona centrale, proponiamo villa singola separata da portico con ingresso in comune con altra villa. Edificata su un lotto di ca 400 mq nel 2003 la villa è così composta: al piano terra di ca 70 mq troviamo una grande cucina abitabile con accesso sul portico, una sala doppia, un bagno. Al piano primo di ca 50 mq troviamo una camera letto matrimoniale, un bagno e due vani in sottotetto sfruttati come camerette. Completano un bel balcone esposto a sud. Portico di oltre 20 mq sfruttato come posto auto coperto.
Si consiglia al nuovo compratore di sostituire la caldaia essendo originaria e NON a condensazione e la villa necessita una tinteggiata in quanto i colori sono ancora originale. Possibilità acquisto di parte dei mobili separatamente.
Il nostro ufficio in Varallo Pombia è vicino al comune di Castelletto Sopra Ticino che dista ca 4 km dal Lago Maggiore e da Arona, aderente al comune di Sesto Calende e Dormelletto. A pochi km l'aeroporto di Milano Malpensa e dal casello autostradale.
GLI APPUNTAMENTI SONO TEMPORANEAMENTE SOSPESI FINO ALLA FINE DI DI APRILE. PER INFORMAZIONI CONTATTATECI IN UFFICIO.
in zona centrale, proponiamo villa singola separata da portico con ingresso in comune con altra villa. Edificata su un lotto di ca 400 mq nel 2003 la villa è così composta: al piano terra di ca 70 mq troviamo una grande cucina abitabile con accesso sul portico, una sala doppia, un bagno. Al piano primo di ca 50 mq troviamo una camera letto matrimoniale, un bagno e due vani in sottotetto sfruttati come camerette. Completano un bel balcone esposto a sud. Portico di oltre 20 mq sfruttato come posto auto coperto.
Si consiglia al nuovo compratore di sostituire la caldaia essendo originaria e NON a condensazione e la villa necessita una tinteggiata in quanto i colori sono ancora originale. Possibilità acquisto di parte dei mobili separatamente.
Il nostro ufficio in Varallo Pombia è vicino al comune di Castelletto Sopra Ticino che dista ca 4 km dal Lago Maggiore e da Arona, aderente al comune di Sesto Calende e Dormelletto. A pochi km l'aeroporto di Milano Malpensa e dal casello autostradale.
Dati principali
| Riferimento | 61090872 |
| Data annuncio | 18/07/2025 |
| Contratto | Vendita |
| Tipologia | Villa |
| Superficie | 160 m2 |
| Locali | 5 (5 altro), 2 bagni |
| Piano | 2 di 2 totali |
Costi
| Prezzo | 180.000 € |
| Prezzo al m2 | 1.125 €/m2 |
Efficienza energetica
| Anno costruzione | 2003 |
| Riscaldamento | Autonomo |
| Tipo Alimentazione Riscaldamento | Metano |
| Classe energetica | G |
| Indice di prestazione energetica (EP GL, REN) | 22 kWh/m3 anno |
| Indice di prestazione energetica (EP GL, NREN) | 450 kWh/m3 anno |
Planimetrie
Video
Indirizzo e mappa
Via Ramacci, Castelletto Sopra Ticino
Calcolo mutuo
Prezzo di vendita:
Anticipo
20,00
Mutuo
80,00
Tasso: -+
Rata: 515 al mese
I risultati sono una stima indicativa basata sui dati inseriti e non costituiscono un’offerta finanziaria.
Inserzionista
Chiama
CONTATTA

