

Stabile - Palazzo via Piesenzana 39, Montechiaro d'Asti
€ 49.000
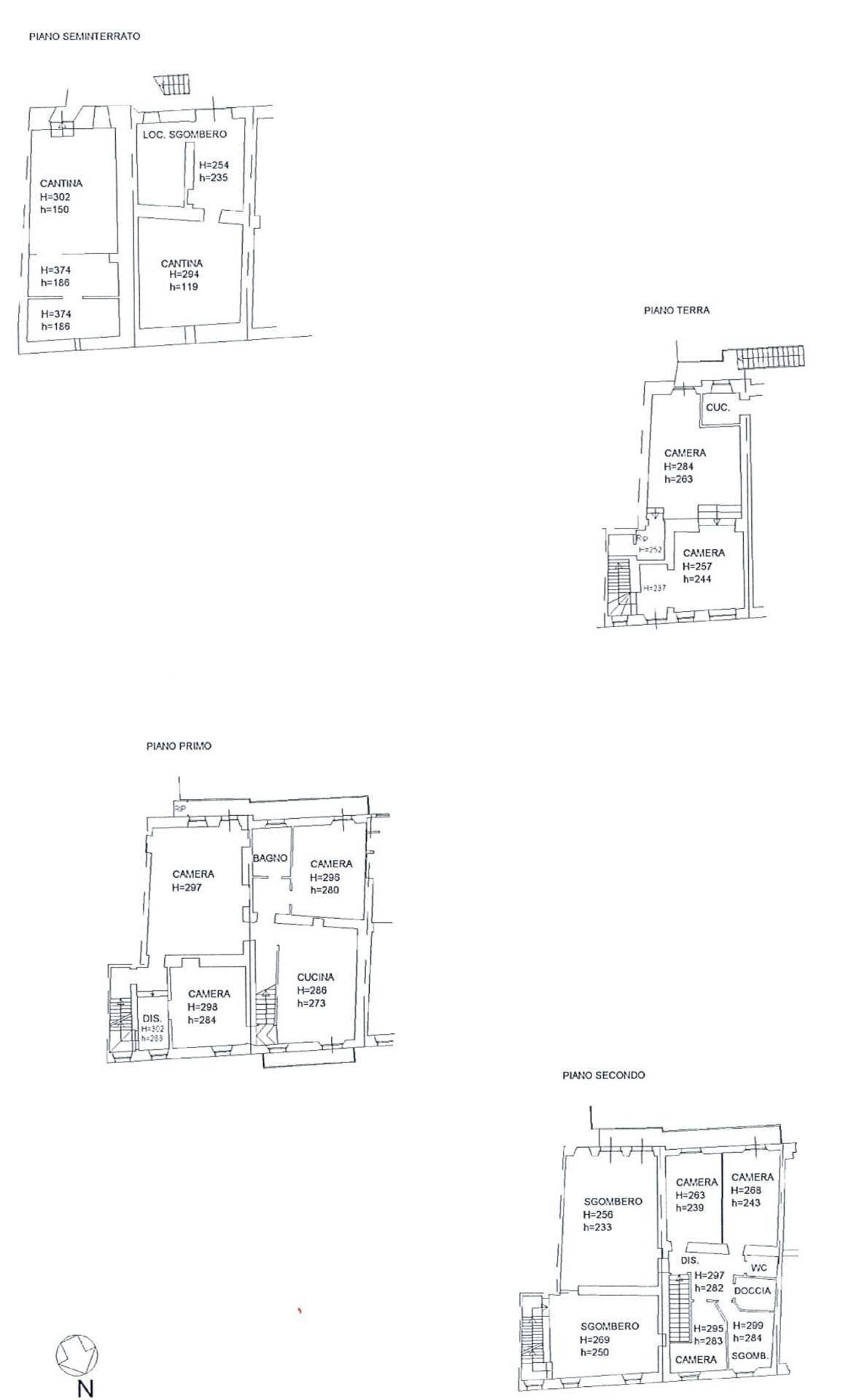
In via Piesenzana, nel centro di Montechiaro d'Asti, ampio immobile completamente da ristrutturare, ideale per chi cerca un investimento nel cuore del Monferrato, con molteplici possibilità, adatto per investitori, imprese edili o privati. Caratteristiche principali: Posizione centralissima, comoda ai servizi; Struttura da riqualificare con spazi ampi e versatili; Ottima esposizione; Possibilità di frazionamento.
Dati principali
| Riferimento | 14818 |
| Data annuncio | 18/07/2025 |
| Contratto | Vendita |
| Tipologia | Stabile - Palazzo |
| Superficie | 385 m2 |
| Locali | più di 5 (8 camere da letto, 7 altro), 2 bagni |
| Piano | Intero edificio, 3 totali |
| Occupato | Libero |
| Box auto | Triplo |
Caratteristiche
Costi
| Prezzo | 49.000 € |
| Prezzo al m2 | 127 €/m2 |
Efficienza energetica
| Stato | Da ristrutturare |
| Riscaldamento | Assente |
| Tipo Alimentazione Riscaldamento | Altro |
| Classe energetica | Immobile esente da certificazione energetica |
Planimetrie
Indirizzo e mappa
via Piesenzana
39, Montechiaro d'Asti
Annuncio senza mappa,
prova a chiedere la posizione all'inserzionista
prova a chiedere la posizione all'inserzionista
Calcolo mutuo
Prezzo di vendita:
Anticipo
20,00
Mutuo
80,00
Tasso: -+
Rata: 140 al mese
I risultati sono una stima indicativa basata sui dati inseriti e non costituiscono un’offerta finanziaria.
Inserzionista

Internau Monferrato - RBVG SRL
Localita' Viatosto, 30, Asti
Mostra Telefono
Mostra Cellulare
Chiama
CONTATTA