Capannone corso torino 124, Asti
€ 1.280 al mese
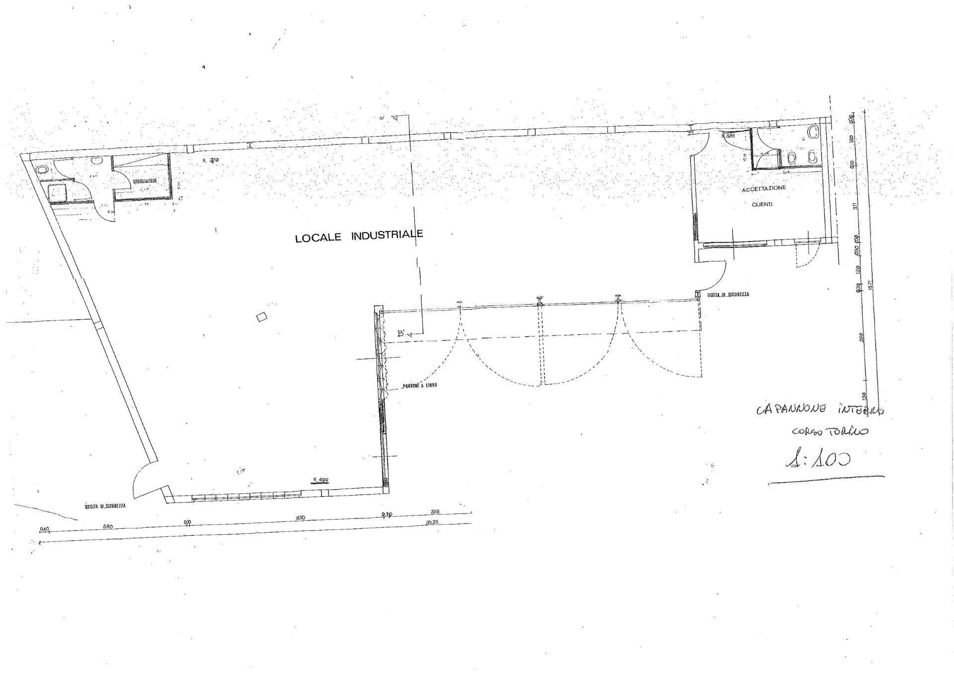
Affittasi capannone artigianale, nelle vicinanze di corso Torino. In posizione strategica, a pochi passi da corso Torino, proponiamo in affitto capannone artigianale di circa 400 mq., con altezza interna 4 mt., dotato di bagno e spogliatoio con secondo bagno, ampi portoni scorrevoli per facile accesso mezzi, ottima luminosità naturale. Possibilità di affitto di ampio piazzale adiacente.
Dati principali
| Riferimento | 14817 |
| Data annuncio | 17/07/2025 |
| Contratto | Affitto |
| Tipologia | Capannone |
| Superficie | 400 m2 |
| Occupato | Occupato da Proprietario |
Costi
| Prezzo | 1.280 € al mese |
Efficienza energetica
| Stato | Buono |
| Tipo Alimentazione Riscaldamento | Altro |
| Classe energetica | E |
| Indice di prestazione energetica (IPE) | 85 kWh/m2 anno |
Planimetrie
Indirizzo e mappa
corso torino
124, Asti
Annuncio senza mappa,
prova a chiedere la posizione all'inserzionista
prova a chiedere la posizione all'inserzionista
Inserzionista

Internau Monferrato - RBVG SRL
Localita' Viatosto, 30, Asti
Mostra Telefono
Mostra Cellulare
Chiama
CONTATTA

