Casa indipendente via Giuseppe Mazzini, Montaldo Scarampi
€ 30.000Casa semindipendente, in centro paese, da riattare!!!
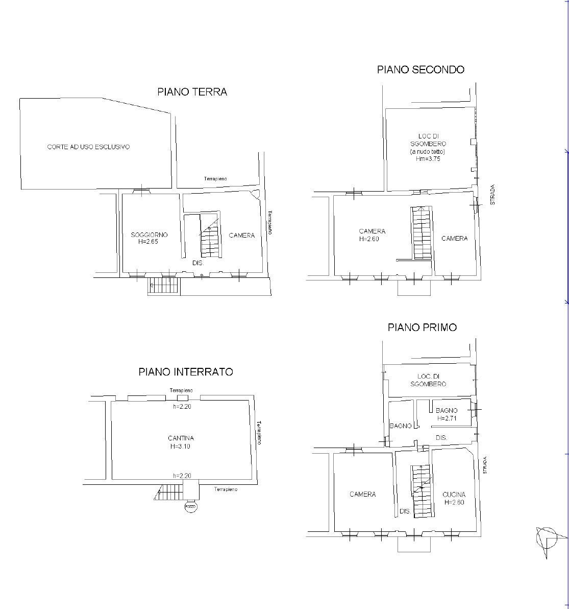
Nel cuore del paese di Montaldo Scarampi, è disponibile per la vendita un fabbricato semindipendente di 235 mq. Questo immobile, risalente ai primi ‘900, offre un'opportunità unica per chi desidera vivere in un contesto tranquillo. La costruzione si sviluppa su 3 livelli fuori terra, più la classica cantina interrata e comprende la parte abitativa grandi locali, offrendo ampi spazi per una famiglia o per chi necessita di ambienti versatili. La struttura conserva il fascino delle case popolari dell'epoca, con dettagli architettonici che raccontano la storia del luogo. Il fabbricato comprende una piccola metratura di cortile/giardino pari a m² 150 in piano sfruttabile. La posizione è ideale per chi cerca la tranquillità della campagna senza rinunciare alla comodità di essere a breve distanza dai servizi essenziali. L'immobile rappresenta una soluzione interessante per chi desidera personalizzare gli spazi secondo le proprie esigenze, mantenendo il carattere autentico di una dimora storica. Completa la proprietà un terreno pari a m² 350!
Dati principali
| Riferimento | Carla's House |
| Data annuncio | 14/07/2025 |
| Contratto | Vendita |
| Tipologia | Casa indipendente |
| Superficie | 235 m2 |
| Locali | più di 5 (4 camere da letto, 4 altro), 2 bagni, cucina abitabile |
| Piano | 4 totali |
| Tipo di costruzione | Popolare |
| Numero di balconi | 1 |
| Box auto | Assente |
| Numero posti auto | 1 |
| Arredamento | Assente |
Caratteristiche
Costi
| Prezzo | 30.000 € |
| Prezzo al m2 | 128 €/m2 |
Efficienza energetica
| Anno costruzione | 1900 |
| Stato | Da ristrutturare |
| Riscaldamento | Autonomo |
| Classe energetica | G |
Planimetrie
Indirizzo e mappa
via Giuseppe Mazzini, Montaldo Scarampi
Calcolo mutuo
Prezzo di vendita:
Anticipo
20,00
Mutuo
80,00
Tasso: -+
Rata: 86 al mese
I risultati sono una stima indicativa basata sui dati inseriti e non costituiscono un’offerta finanziaria.
Inserzionista
Chiama
CONTATTA


