Negozio Via Bologna, Ferrara
€ 2.300 al mese
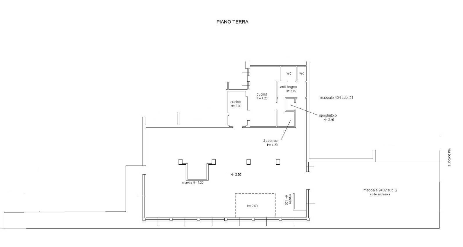
Negozio ad alta visibilità in affitto a Ferrara, via Bologna. Collocato interamente al piano terra e in posizione angolare, a metà tra il centro e l' Ipercoop il Castello, si propone in locazione un grande negozio di circa 250 m² con cortile antistante e a ampie vetrine fronte strada. Internamente si compone di uno spazio facilmente adattabile al proprio lavoro con la sola presenza di alcune colonne. La zona è servita da pista ciclabile e autobus, ed è una delle arterie principali per l'entrata e l'uscita dalla città. Si allega planimetria per la conformazione dell'interno. Potete contattarci senza impegno per maggiori informazioni o per prenotare un appuntamento per visionare questo Negozio ad alta visibilità in affitto a Ferrara, via Bologna. Cod 3937. . 2.300 mensili ed è richiesta Fidejussione bancaria.
Dati principali
| Riferimento | 3937 |
| Data annuncio | 16/07/2025 |
| Contratto | Affitto |
| Tipologia | Negozio |
| Superficie | 250 m2 |
| Locali | 3 (3 altro), 2 bagni, cucina a vista |
| Piano | Terra, 3 totali |
| Occupato | Libero |
| Box auto | Assente |
| Numero posti auto | 2 |
Caratteristiche
Costi
| Prezzo | 2.300 € al mese |
Efficienza energetica
| Riscaldamento | Autonomo |
| Tipo Alimentazione Riscaldamento | Altro |
| Classe energetica | D |
| Indice di prestazione energetica (IPE) | 389 kWh/m2 anno |
Planimetrie
Indirizzo e mappa
Via Bologna, Ferrara
Annuncio senza mappa,
prova a chiedere la posizione all'inserzionista
prova a chiedere la posizione all'inserzionista
Inserzionista

PROGETTO CASA FERRARA
VIA SARACENO 44, Ferrara
Mostra Telefono
Chiama
CONTATTA

