Locale Commerciale Via Paleocapa, Savona (zona Centro)
€ 575.000Locale commerciale, Via Paleocapa, Savona (SV)
IPI Agency propone, nel cuore di Savona, un interessante locale commerciale in Via Paleocapa.
L'immobile, precedentemente sede di un istituto bancario, si trova al piano strada di un elegante palazzo d'epoca in ottimo stato di conservazione.
Gode di eccellente visibilità grazie a tre ampie vetrine su Via XX Settembre, una delle vie più centrali e frequentate della città.
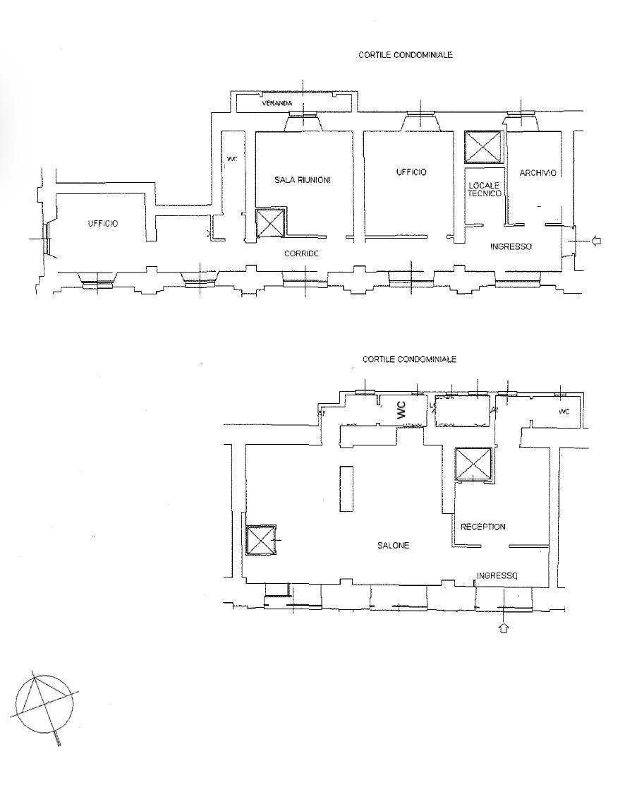
Si compone di un ampio locale commerciale al piano strada di 113 mq direttamente collegato tramite ascensore interno al piano ammezzato di ulteriori 128 mq, raggiungibile anche dal vano scale.
Gli ambienti si presentano da ristrutturare e personalizzare secondo le proprie esigenze.
Soluzione ideale per studi professionali, istituti di credito, showroom o attività commerciali di rappresentanza.
Euro 575.000
Grazie alla collaborazione con professionisti del settore, offriamo ai nostri clienti un servizio di consulenza dedicato per individuare le migliori soluzioni di mutuo e facilitare l'accesso al finanziamento.
IPI Genova Agency tel. 010 542009 www.ipi-agency.com Funzionario Elisabetta Sighinolfi
IPI è un gruppo specializzato nella consulenza e nei servizi immobiliari a investitori e operatori istituzionali, aziende e privati. Attraverso le diverse linee di business delle società controllate, IPI copre a 360 gradi i servizi al real-estate: gestione, valorizzazione, promozione e sviluppo immobiliare, consulenza, intermediazione, valutazioni, due diligence e analisi di mercato. IPI è anche una investment company con un rilevante patrimonio immobiliare proprio.
IPI Agency è presente sul territorio nazionale, con filiali a Torino, Milano, Genova, Firenze, Bologna, Padova, Roma, Bari e Napoli.
IPI Genova Agency
Via XII Ottobre 2-19° piano
16121 Genova
Tel. 010 542009
Mail: [email protected]
L'immobile, precedentemente sede di un istituto bancario, si trova al piano strada di un elegante palazzo d'epoca in ottimo stato di conservazione.
Gode di eccellente visibilità grazie a tre ampie vetrine su Via XX Settembre, una delle vie più centrali e frequentate della città.
Si compone di un ampio locale commerciale al piano strada di 113 mq direttamente collegato tramite ascensore interno al piano ammezzato di ulteriori 128 mq, raggiungibile anche dal vano scale.
Gli ambienti si presentano da ristrutturare e personalizzare secondo le proprie esigenze.
Soluzione ideale per studi professionali, istituti di credito, showroom o attività commerciali di rappresentanza.
Euro 575.000
Grazie alla collaborazione con professionisti del settore, offriamo ai nostri clienti un servizio di consulenza dedicato per individuare le migliori soluzioni di mutuo e facilitare l'accesso al finanziamento.
IPI Genova Agency tel. 010 542009 www.ipi-agency.com Funzionario Elisabetta Sighinolfi
IPI è un gruppo specializzato nella consulenza e nei servizi immobiliari a investitori e operatori istituzionali, aziende e privati. Attraverso le diverse linee di business delle società controllate, IPI copre a 360 gradi i servizi al real-estate: gestione, valorizzazione, promozione e sviluppo immobiliare, consulenza, intermediazione, valutazioni, due diligence e analisi di mercato. IPI è anche una investment company con un rilevante patrimonio immobiliare proprio.
IPI Agency è presente sul territorio nazionale, con filiali a Torino, Milano, Genova, Firenze, Bologna, Padova, Roma, Bari e Napoli.
IPI Genova Agency
Via XII Ottobre 2-19° piano
16121 Genova
Tel. 010 542009
Mail: [email protected]
Dati principali
| Riferimento | GE-01267 |
| Data annuncio | 11/07/2025 |
| Contratto | Vendita |
| Tipologia | Locale Commerciale |
| Superficie | 241 m2 |
| Locali | più di 5 (8 altro), 2 bagni |
Costi
| Prezzo | 575.000 € |
| Prezzo al m2 | 2.386 €/m2 |
Efficienza energetica
| Classe energetica | G |
| Indice di prestazione energetica (IPE) | - |
Planimetrie
Indirizzo e mappa
Via Paleocapa, Savona - quartiere Centro
Calcolo mutuo
Prezzo di vendita:
Anticipo
20,00
Mutuo
80,00
Tasso: -+
Rata: 1.644 al mese
I risultati sono una stima indicativa basata sui dati inseriti e non costituiscono un’offerta finanziaria.
Inserzionista

IPI Genova Agency
Via XII Ottobre 2/194a, Genova
Mostra Telefono
Chiama
CONTATTA

