Annuncio senza foto,
prova a chiederle all'inserzionista
prova a chiederle all'inserzionista
Locale Commerciale Via San Giovanni da Capestrano, Lanciano
€ 250.000
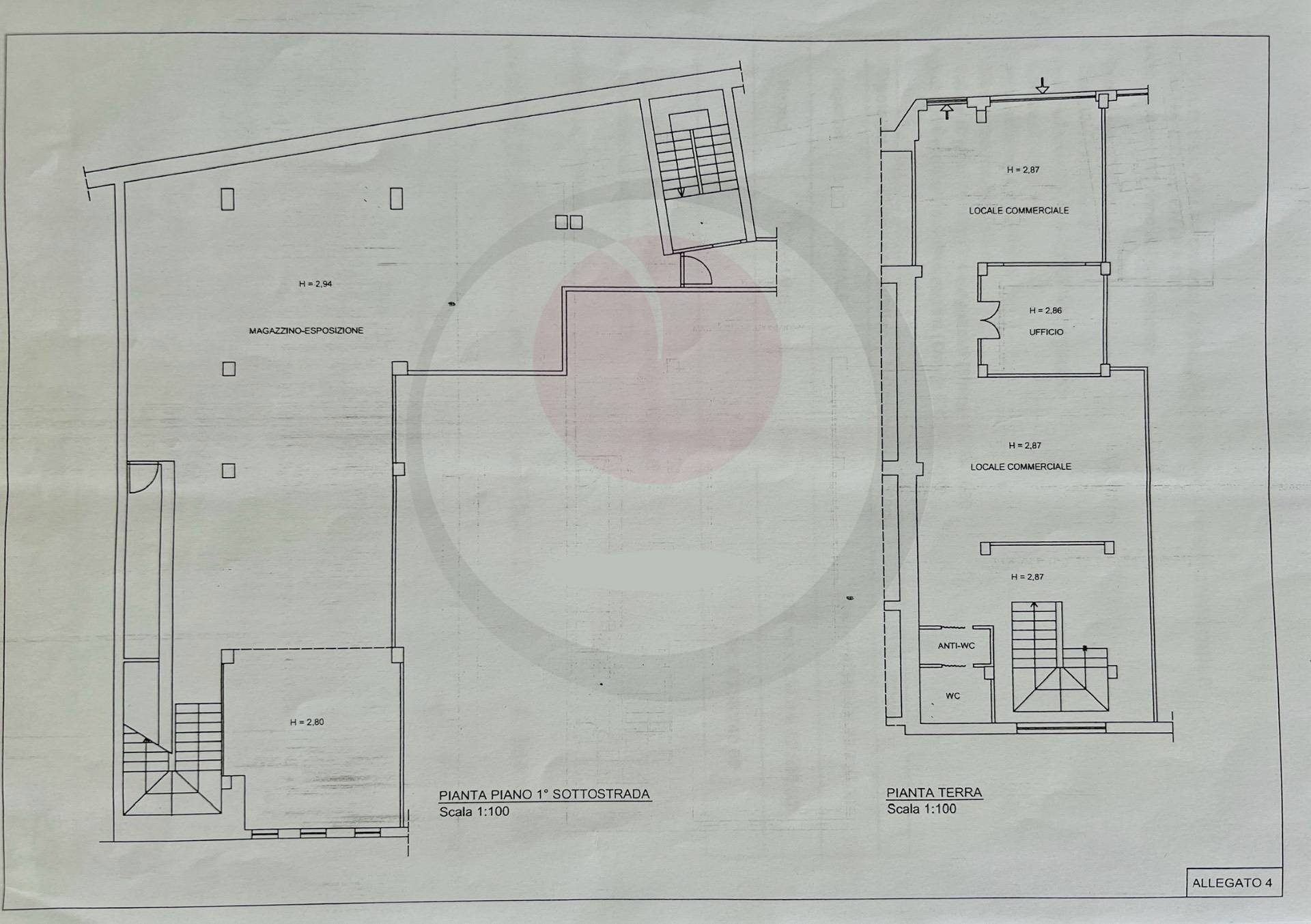
Lanciano, via San Giovanni da Capestrano, in zona centrale ad alto traffico pedonale e veicolare, proponiamo in vendita un grande locale commerciale che si sviluppa su due livelli.
Dallingresso fronte strada si accede ad un primo ambiente che ospita una stanza adibita ad ufficio. Sullo stesso livello vi è un bagno con antibagno. Attraverso una scalinata si scende al piano inferiore: qui trova spazio un unico ambiente con un piccolo ripostiglio. Questultimo piano sotto strada è collegato anche con una rampa esterna, tramite un corridoio disimpegno.
Una proprietà dalla generosa metratura, ideale per molteplici attività, grazie anche alla presenza di un ampio parcheggio libero antistante ledificio.
Dallingresso fronte strada si accede ad un primo ambiente che ospita una stanza adibita ad ufficio. Sullo stesso livello vi è un bagno con antibagno. Attraverso una scalinata si scende al piano inferiore: qui trova spazio un unico ambiente con un piccolo ripostiglio. Questultimo piano sotto strada è collegato anche con una rampa esterna, tramite un corridoio disimpegno.
Una proprietà dalla generosa metratura, ideale per molteplici attività, grazie anche alla presenza di un ampio parcheggio libero antistante ledificio.
Dati principali
| Riferimento | 713/25 |
| Data annuncio | 11/07/2025 |
| Contratto | Vendita |
| Tipologia | Locale Commerciale |
| Superficie | 370 m2 |
| Locali | 2 (2 altro), 1 bagno |
| Piano | Su più livelli, 2 totali |
| Arredamento | Assente |
Costi
| Prezzo | 250.000 € |
| Prezzo al m2 | 676 €/m2 |
Efficienza energetica
| Stato | Buono |
| Tipo Alimentazione Riscaldamento | Altro |
| Classe energetica | Immobile esente da certificazione energetica |
Planimetrie
Indirizzo e mappa
Via San Giovanni da Capestrano, Lanciano
Annuncio senza mappa,
prova a chiedere la posizione all'inserzionista
prova a chiedere la posizione all'inserzionista
Calcolo mutuo
Prezzo di vendita:
Anticipo
20,00
Mutuo
80,00
Tasso: -+
Rata: 715 al mese
I risultati sono una stima indicativa basata sui dati inseriti e non costituiscono un’offerta finanziaria.
Inserzionista
Chiama
CONTATTA
