Quadrilocale Sassuolo
€ 260.000
APPARTAMENTO IN CORSO DI RISTRUTTURAZIONE
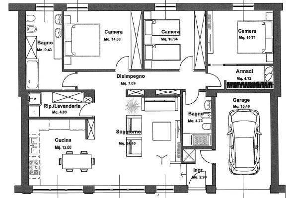
Appartamento in corso di realizzazione nato dal cambio di destinazione d'uso da negozio posto a piano terra, il progetto prevede la realizzazione di un appartamento composto da ampia sala, cucina, tre camere da letto e due bagni oltre ad autorimessa sullo stesso livello e comunicante dall'interno ottima soluzione senza barriere architettoniche, si prevede la possibilità di personalizzazione sia nella suddivisione degli spazi interni sia nella scelte delle finiture. La ristrutturazione prevede anche interventi atti a migliorare l'efficienza energetica realizzando isolamento sia a parete che a pavimento. E' possibile prenotare una visita sul cantiere per potersi rendere conto degli spazi e vedere i lavori in corso d'opera.
Appartamento in corso di realizzazione nato dal cambio di destinazione d'uso da negozio posto a piano terra, il progetto prevede la realizzazione di un appartamento composto da ampia sala, cucina, tre camere da letto e due bagni oltre ad autorimessa sullo stesso livello e comunicante dall'interno ottima soluzione senza barriere architettoniche, si prevede la possibilità di personalizzazione sia nella suddivisione degli spazi interni sia nella scelte delle finiture. La ristrutturazione prevede anche interventi atti a migliorare l'efficienza energetica realizzando isolamento sia a parete che a pavimento. E' possibile prenotare una visita sul cantiere per potersi rendere conto degli spazi e vedere i lavori in corso d'opera.
Dati principali
| Riferimento | 6173 |
| Data annuncio | 09/07/2025 |
| Contratto | Vendita |
| Tipologia | Appartamento |
| Superficie | 140 m2 |
| Locali | 4 (3 camere da letto, 1 altro), 2 bagni, cucina abitabile |
| Tipo di costruzione | Media |
| Box auto | Singolo |
Costi
| Prezzo | 260.000 € |
| Prezzo al m2 | 1.857 €/m2 |
Efficienza energetica
| Riscaldamento | Autonomo |
| Tipo Impianto Di Riscaldamento | a pavimento |
| Classe energetica | C |
| Indice di prestazione energetica (IPE) | - |
Planimetrie
Indirizzo e mappa
Sassuolo
Annuncio senza mappa,
prova a chiedere la posizione all'inserzionista
prova a chiedere la posizione all'inserzionista
Calcolo mutuo
Prezzo di vendita:
Anticipo
20,00
Mutuo
80,00
Tasso: -+
Rata: 744 al mese
I risultati sono una stima indicativa basata sui dati inseriti e non costituiscono un’offerta finanziaria.
Inserzionista

Agenzia immobiliare Habitat
Viale San Lorenzo, 2, Sassuolo
Mostra Telefono
Mostra Cellulare
Habitat Sassuolo
Mostra Telefono
Chiama
CONTATTA

