Appartamento San Lazzaro di Savena
€ 625.000
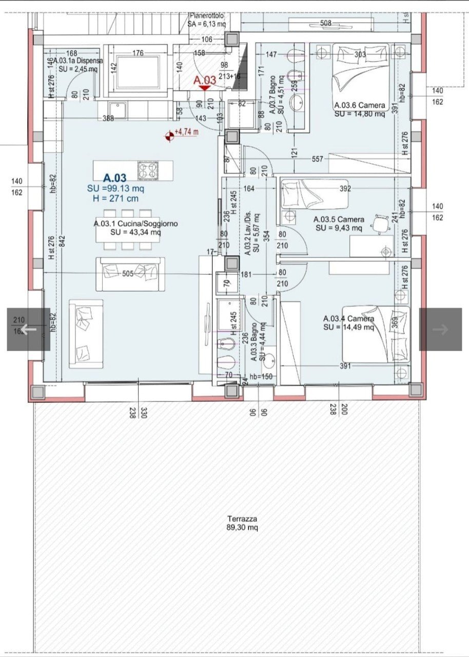
SAN LAZZARO - NUOVA COSTRUZIONEIn zona di forte espansione residenziale, a due passi da tutti i servizi del paese, proponiamo splendido appartamento di ampie dimensioni posto al primo piano di una piccola palazzina di sole 5 unità abitative. L’immobile, dotato di tutte le tecnologie in materia di risparmio energetico, presenta una zona giorno open space, di notevoli dimensioni, con predisposizione di fuochi a isola e accesso alla terrazza di circa 70 mq. Tre camere da letto di cui due matrimoniali, una camera singola, due bagni e un ripostiglio/lavanderia. Ampia autorimessa e cantina di 31 mq ad euro 35.000.L’immobile presenta le finiture di ultima generazione tra cui infissi in PVC con vetro camera, riscaldamento a pavimento con pompa di calore e ripartizione delle calorie, pannelli solari e fotovoltaici, predisposizione per aria condizionata in tutti gli ambienti.Classe A4. Acquisto da privato. - immobile gestito in collaborazione con Tecnocasa San Lazzaro snc -
Dati principali
| Riferimento | AMI005 |
| Data annuncio | 07/07/2025 |
| Contratto | Vendita |
| Tipologia | Appartamento |
| Superficie | 185 m2 |
| Locali | 3 bagni |
| Piano | 1 |
Costi
| Prezzo | 625.000 € |
| Prezzo al m2 | 3.378 €/m2 |
| Spese condominiali | € 500,00/mese |
Efficienza energetica
| Classe energetica | A4 |
Indirizzo e mappa
San Lazzaro di Savena
Calcolo mutuo
Prezzo di vendita:
Anticipo
20,00
Mutuo
80,00
Tasso: -+
Rata: 1.787 al mese
I risultati sono una stima indicativa basata sui dati inseriti e non costituiscono un’offerta finanziaria.
Inserzionista

CIVITAS Intermediazioni Immobiliari
Via Emilia 167, Bologna
Mostra Telefono
Chiama
CONTATTA

