Trilocale Via Del Pesco, Lonato del Garda
€ 290.000
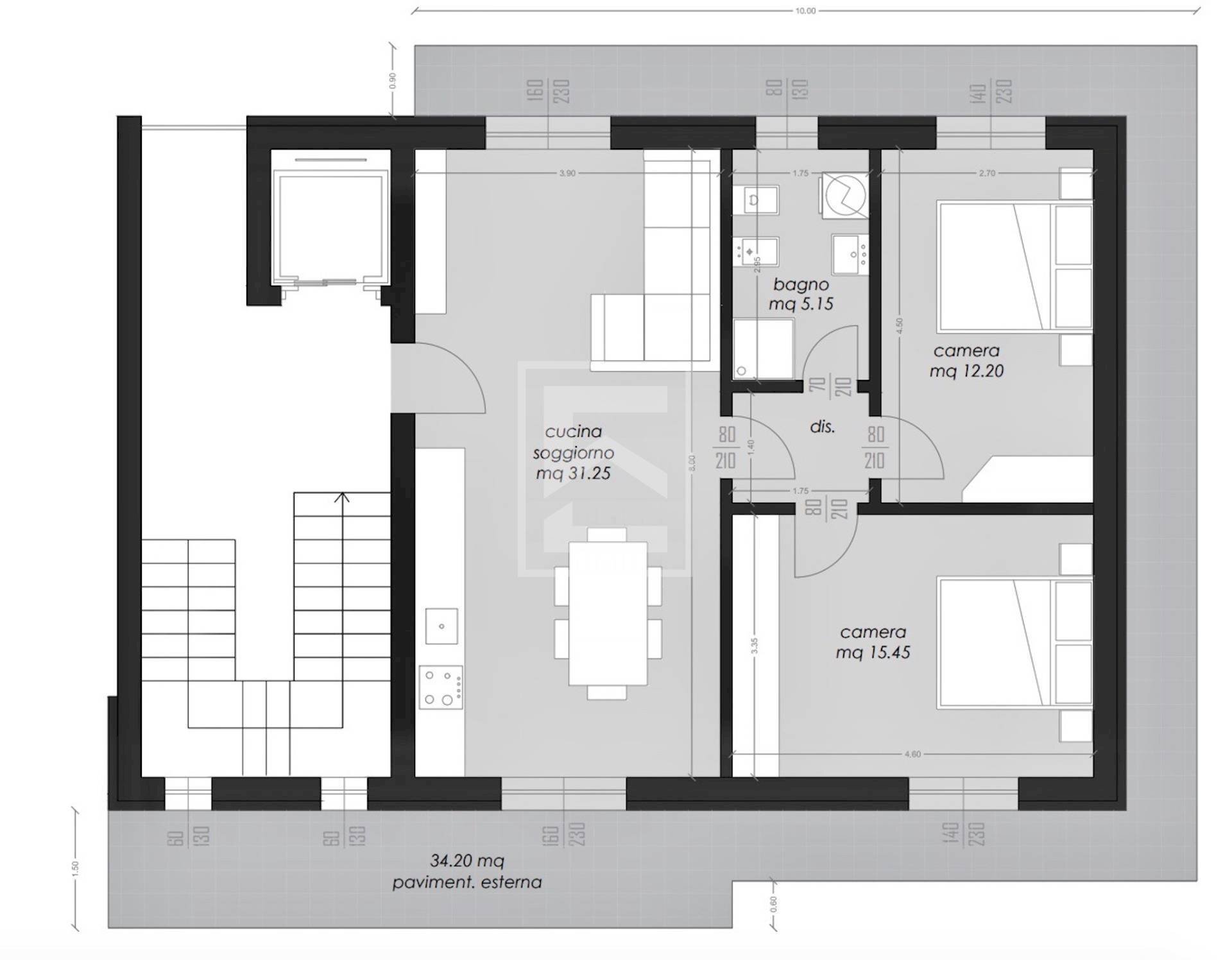
Rif: EB-035-461 LONATO DEL GARDA ZONA CENTRALE NUOVI APPARTAMENTI classe A3. A pochi chilometri dalle spiagge più rinomate del Lago di Garda e da Verona, comoda a tutti i servizi ed alle principali vie di comunicazione, proponiamo in vendita nuovi APPARTAMENTI TRILOCALI DI ULTIMA GENERAZIONE in classe A3 e di altissima tecnologia. Disponibili al piano terra con giardini privati, al primo e secondo piano con terrazzi serviti da ascensore. Sono abitazioni cosiddette "attive" poiché producono più energia di quanto necessario. L'alta tecnologia ed ingegneristica garantiscono costi di gestione molto bassi. Gli appartamenti si compongono di zona living open che accoglie il salotto e la cucina godibili anche dal giardino o dal terrazzino grazie alle ampie vetrate scorrevoli. Nella zona notte insistono due camere da letto matrimoniali e un bagno. Il comodo box completa la proprieta'. Consegna fine 2026. LA ZONA Lonato è uno dei comuni territorialmente più vasti della zona. Si affaccia sul Lago di Garda nella zona fra Padenghe e Desenzano del Garda. Il nucleo centrale dell'abitato è raccolto attorno alla rocca, alla torre civica ed alla cupola del Soratino, e si estende sulle pendici meridionali del monte Rova.
Dati principali
| Riferimento | 33091035-462 |
| Data annuncio | 05/07/2025 |
| Contratto | Vendita |
| Tipologia | Appartamento |
| Superficie | 90 m2 |
| Locali | 3 (2 camere da letto, 1 altro), 1 bagno, cucina a vista |
| Piano | Terra, 1 totali |
| Tipo di costruzione | Signorile |
| Occupato | Libero |
| Box auto | Singolo |
| Arredamento | Assente |
Caratteristiche
Costi
| Prezzo | 290.000 € |
| Prezzo al m2 | 3.222 €/m2 |
Efficienza energetica
| Riscaldamento | Autonomo |
| Tipo Impianto Di Riscaldamento | a pavimento |
| Classe energetica | A3 |
Planimetrie
Virtual tour
Video
Indirizzo e mappa
Via Del Pesco, Lonato del Garda
Annuncio senza mappa,
prova a chiedere la posizione all'inserzionista
prova a chiedere la posizione all'inserzionista
Calcolo mutuo
Prezzo di vendita:
Anticipo
20,00
Mutuo
80,00
Tasso: -+
Rata: 829 al mese
I risultati sono una stima indicativa basata sui dati inseriti e non costituiscono un’offerta finanziaria.
Inserzionista
Chiama
CONTATTA


