Trilocale Via traforo, Bussoleno
€ 680 al meseTrilocale in affitto
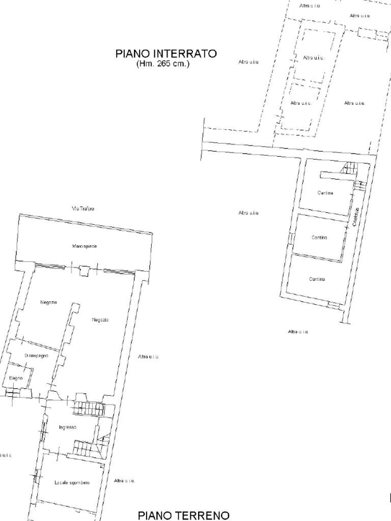
In posizione strategica sulla via principale di Bussoleno, proponiamo in locazione un locale commerciale posto al piano terreno. Ideale per chi cerca visibilità e funzionalità in un contesto centrale e ben servito. L’immobile si compone di ingresso su ampio locale principale fronte strada, con doppia vetrina in alluminio , disimpegno ampio con seconda entrata posta con accesso dal cortile nella parte retrostante dell’immobile, ampio ripostiglio e un terzo ambiente adatto a uso ufficio, magazzino o archivio, antibagno e bagno dotato di finestra e boiler elettrico. Caratteristiche principali: gli Infissi sono in PVC di ultima generazione; Doppio accesso uno diretto dalla strada principale, l’altro dal cortile con porta blindata, elevata visibilità garantita dalle ampie superfici vetrate su strada, contesto comodo, con facilità di parcheggio e buona accessibilità pedonale. Il riscaldamento è autonomo gestito da termoconvettori ad aria. Completano la proprietà tre cantine poste al piano seminterrato. La soluzione è ideale per studi professionali, negozi, ambulatori, uffici o piccole attività artigianali.
Dati principali
| Riferimento | 61084743 |
| Data annuncio | 04/07/2025 |
| Contratto | Affitto |
| Tipologia | Appartamento |
| Superficie | 90 m2 |
| Locali | 3 (3 altro), 1 bagno |
| Piano | 1 di 4 totali |
Costi
| Prezzo | 680 € al mese |
Efficienza energetica
| Anno costruzione | 1960 |
| Classe energetica | G |
| Indice di prestazione energetica (EP GL, REN) | 7.8 kWh/m3 anno |
| Indice di prestazione energetica (EP GL, NREN) | 452.53 kWh/m3 anno |
Planimetrie
Indirizzo e mappa
Via traforo, Bussoleno
Inserzionista
Chiama
CONTATTA

