Locale Commerciale Indirizzo Non Disponibile, Carovigno
€ 790.000Rif. G8 Vendesi masseria immersa nella campagna tra Carovigno e Ostuni
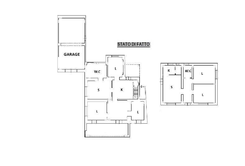
Rif.G8 #myprojectcasa propone in vendita un incantevole masseria immersa nella campagna tra Carovigno e Ostuni, in una delle zone più suggestive della Puglia, circondata da ulivi secolari, profumi mediterranei e un panorama che si apre sulle distese agricole. La proprietà si sviluppa su due unità abitative. Il primo corpo, di circa 319 mq, è una tipica masseria dei primi del '900, con volte a stella che conserva il fascino dell'architettura. La disposizione interna comprende: un ampio ingresso, soggiorno con cucina, 3 camere da letto, bagno e ripostiglio. Il secondo corpo, di circa 108 mq, è stato costruito in un secondo momento per ampliare la superficie abitabile. Si compone di: soggiorno-pranzo, cucina, due camere da letto, bagno e lavanderia. Questa porzione necessita di alcuni interventi di ammodernamento. Tutto attorno si estende un terreno di circa 1,5 ettari, impreziosito da ulivi secolari, piante della macchia mediterranea e numerosi alberi da frutto. È già stato approvato un progetto di ampliamento che prevede: la fusione delle due abitazioni in un'unica grande residenza, la realizzazione di una piscina interrata di 54 mq e la costruzione di un garage con vano tecnico. La proprietà è completamente recintata, dotata di cancello automatico e di sistema di allarme per garantire sicurezza e tranquillità. È facilmente accessibile tramite strada pubblica illuminata e collegata a tutte le utenze principali (energia elettrica, acquedotto). Una soluzione ideale per chi sogna di vivere immerso nella bellezza autentica della campagna pugliese, in un contesto silenzioso ma non isolato, con la possibilità di utilizzare l'immobile come abitazione privata o struttura turistico-ricettiva. PER IMMOBILI SIMILI VISITA IL SITO myprojectcasa
Dati principali
| Riferimento | G8 |
| Data annuncio | 04/07/2025 |
| Contratto | Vendita |
| Tipologia | Locale Commerciale |
| Superficie | 340 m2 |
| Locali | più di 5 (7 camere da letto), 2 bagni |
Costi
| Prezzo | 790.000 € |
| Prezzo al m2 | 2.324 €/m2 |
Efficienza energetica
| Riscaldamento | Legna |
| Classe energetica | G |
| Indice di prestazione energetica (IPE) | 175 kWh/m2 anno |
Planimetrie
Indirizzo e mappa
Indirizzo Non Disponibile, Carovigno
Annuncio senza mappa,
prova a chiedere la posizione all'inserzionista
prova a chiedere la posizione all'inserzionista
Calcolo mutuo
Prezzo di vendita:
Anticipo
20,00
Mutuo
80,00
Tasso: -+
Rata: 2.259 al mese
I risultati sono una stima indicativa basata sui dati inseriti e non costituiscono un’offerta finanziaria.
Inserzionista

My Project Casa
Viale Dei Lecci, 36, Martina Franca
Mostra Telefono
Semeraro Roberto
Mostra Telefono
Chiama
CONTATTA

