Quadrilocale Via bordone, Genova
€ 181.000Quadrilocale in vendita
Nella parte alta di Cornigliano Ligure, a Genova, si trova un accogliente appartamento in vendita situato in Via Bordone.
Questa proprietà offre un ambiente residenziale , tranquillo e ben collegato.
L'appartamento, in ottimo stato interno, si sviluppa al piano terra e vanta un ampio giardino privato, ideale per momenti di relax all'aperto.
All'interno, l'immobile presenta una sala accogliente all'ingresso, tre camere da letto spaziose e luminose, grazie alle finestre in PVC di nuova installazione.
La sicurezza è garantita da una porta blindata e le tapparelle esterne sono tutte elettriche .
Completa la proprietà un ampio box situato sotto casa, offrendo comodità e spazio per il parcheggio dove si ha la possibilità di posteggiare due vetture .
L'appartamento gode di riscaldamento autonomo e predisposizione per l'impianto di aria condizionata.
Questa soluzione abitativa rappresenta un'opportunità ideale per chi cerca comfort e praticità in una zona residenziale di Genova.
Questa proprietà offre un ambiente residenziale , tranquillo e ben collegato.
L'appartamento, in ottimo stato interno, si sviluppa al piano terra e vanta un ampio giardino privato, ideale per momenti di relax all'aperto.
All'interno, l'immobile presenta una sala accogliente all'ingresso, tre camere da letto spaziose e luminose, grazie alle finestre in PVC di nuova installazione.
La sicurezza è garantita da una porta blindata e le tapparelle esterne sono tutte elettriche .
Completa la proprietà un ampio box situato sotto casa, offrendo comodità e spazio per il parcheggio dove si ha la possibilità di posteggiare due vetture .
L'appartamento gode di riscaldamento autonomo e predisposizione per l'impianto di aria condizionata.
Questa soluzione abitativa rappresenta un'opportunità ideale per chi cerca comfort e praticità in una zona residenziale di Genova.
Dati principali
| Riferimento | 61083895 |
| Data annuncio | 04/07/2025 |
| Contratto | Vendita |
| Tipologia | Appartamento |
| Superficie | 100 m2 |
| Locali | 4 (4 altro), 1 bagno |
| Piano | 4 totali |
Costi
| Prezzo | 181.000 € |
| Prezzo al m2 | 1.810 €/m2 |
| Spese condominiali | € 92,00/mese |
Efficienza energetica
| Riscaldamento | Autonomo |
| Tipo Alimentazione Riscaldamento | Metano |
| Classe energetica | E |
| Indice di prestazione energetica (IPE) | - |
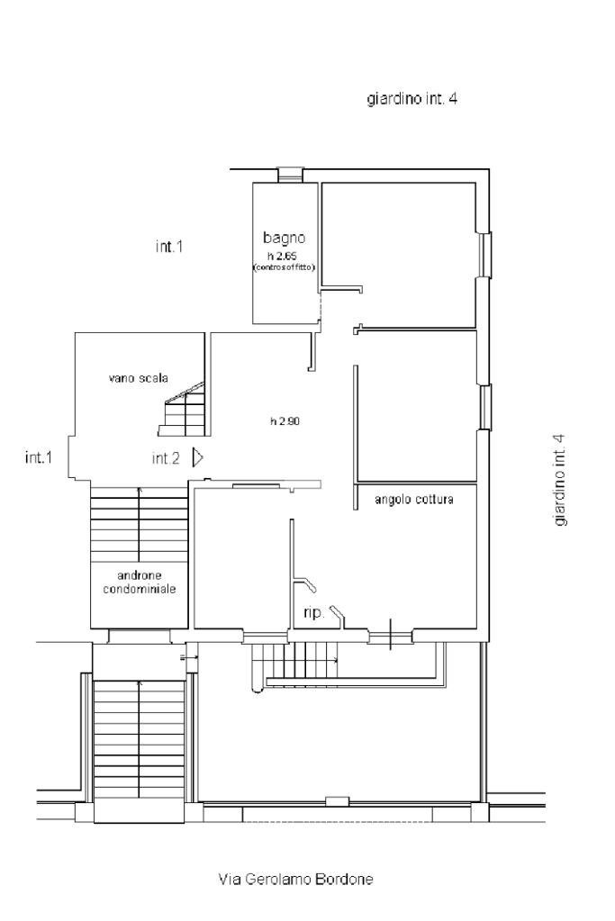
Planimetrie
Video
Indirizzo e mappa
Via bordone, Genova
Calcolo mutuo
Prezzo di vendita:
Anticipo
20,00
Mutuo
80,00
Tasso: -+
Rata: 518 al mese
I risultati sono una stima indicativa basata sui dati inseriti e non costituiscono un’offerta finanziaria.
Inserzionista
Chiama
CONTATTA

