Quadrilocale Località Brodazzo, 1, Desenzano del Garda
€ 549.000
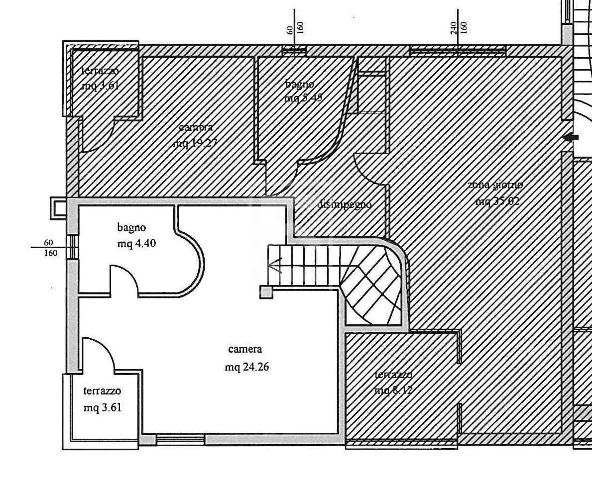
Rif: DM-022-267 Prestigioso Appartamento Vista LagoIn posizione privilegiata, al confine tra Desenzano del Garda e Maguzzano, proponiamo in vendita un elegante appartamento con splendida vista lago, inserito in un contesto esclusivo e riservato, ideale per chi desidera vivere nella quiete senza rinunciare al comfort. Lappartamento, di circa 190 mq, si sviluppa su due livelli (primo e secondo piano) con accesso dalla scala comune servita da ascensore. Gli ambienti interni si distinguono per raffinatezza e luminosità, grazie anche allattenta scelta dei materiali e alle finiture di pregio. Lingresso apre su una zona giorno accogliente, dove trovano spazio una cucina abitabile e un soggiorno impreziosito da un camino, perfetto per creare unatmosfera calda e conviviale. La zona notte si compone di una camera matrimoniale, una camera padronale con bagno esclusivo finestrato, un secondo bagno con doccia e un comodo ripostiglio. Al piano superiore, uno studio con bagno privato si affaccia su una terrazza panoramica da cui si gode una suggestiva vista sul lago, perfetta per momenti di relax o per accogliere ospiti in uno spazio riservato. Le finiture sono di altissimo livello, con pavimenti in parquet, marmi pregiati come il Nero Marquina e il Bianco Carrara, e infissi di qualità superiore che valorizzano ulteriormente ogni ambiente. A completare la proprietà vi sono una cantina di circa 14 mq, un posto auto coperto e uno scoperto, situati all'interno della corte condominiale. Limmobile è inserito in un contesto di sole sei unità, ricavate dalla ristrutturazione di una villa nel 2021, circondata da un magnifico parco di circa 6.000 mq perfettamente curato, con piscina panoramica, area picnic, pozzo per irrigazione e zone comuni arricchite da dettagli in marmo e cristallo, come lelegante area lavanderia. La posizione è estremamente tranquilla, immersa nel verde e con vista aperta sul lago, ma al contempo comoda alle principali vie di comunicazione, rendendo questa residenza perfetta sia come abitazione principale che come prestigiosa seconda casa. Annuncio a carattere informativo e commerciale: i dati riportati non hanno valore contrattuale e possono essere soggetti a modifiche.
Dati principali
| Riferimento | 33091022-267 |
| Data annuncio | 04/07/2025 |
| Contratto | Vendita |
| Tipologia | Appartamento |
| Superficie | 205 m2 |
| Locali | 4 (3 camere da letto, 1 altro), 3 bagni, cucina abitabile |
| Piano | 1 di 2 totali |
| Occupato | Libero |
| Box auto | Singolo |
| Numero posti auto | 1 |
| Arredamento | Assente |
Caratteristiche
Costi
| Prezzo | 549.000 € |
| Prezzo al m2 | 2.678 €/m2 |
Efficienza energetica
| Stato | Parzialmente ristrutturato |
| Riscaldamento | Semi-autonomo |
| Tipo Impianto Di Riscaldamento | a pavimento |
| Tipo Alimentazione Riscaldamento | Gpl |
| Classe energetica | E |
| Indice di prestazione energetica (IPE) | 159 kWh/m2 anno |
Planimetrie
Virtual tour
Indirizzo e mappa
Località Brodazzo, 1, Desenzano del Garda
Annuncio senza mappa,
prova a chiedere la posizione all'inserzionista
prova a chiedere la posizione all'inserzionista
Calcolo mutuo
Prezzo di vendita:
Anticipo
20,00
Mutuo
80,00
Tasso: -+
Rata: 1.570 al mese
I risultati sono una stima indicativa basata sui dati inseriti e non costituiscono un’offerta finanziaria.
Inserzionista

Edilfin srl
via Giorgio Strehler 19, Manerba del Garda
Mostra Telefono
Medaina Daniele
Mostra Telefono
Chiama
CONTATTA

