Stabile - Palazzo Corso Cuneo 15, Venaria Reale
€ 3.400.000
A REDDITO - Palazzina per uffici distribuita su 3 piani fuori terra di complessivi 4.500 mq, dotata di un ampio parcheggio esterno di pertinenza. In un ambiente professionale ad alto livello, le destinazioni sono polivalenti e vanno dagli uffici, al magazzino e laboratorio, fino al commerciale. Attualmente, in parte locata a 2 importanti conduttori, con contratti di durata di 6 anni, compreso il lastrico solare locato per un impianto fotovoltaico di 75 Kw La sua posizione strategica, all'imbocco della tangenziale e nella zona nord della città (vicinanze stado Juventus) la rendono facilmente accessibile e ben collegata.
Dati principali
| Riferimento | 115784 |
| Data annuncio | 02/07/2025 |
| Contratto | Vendita |
| Tipologia | Stabile - Palazzo |
| Superficie | 4500 m2 |
| Piano | Intero edificio, 3 totali |
| Occupato | Occupato da Proprietario |
| Numero posti auto | 10 |
Caratteristiche
Costi
| Prezzo | 3.400.000 € |
| Prezzo al m2 | 756 €/m2 |
Efficienza energetica
| Stato | Ottimo |
| Riscaldamento | Centralizzato |
| Tipo Impianto Di Riscaldamento | ad aria |
| Classe energetica | D |
| Indice di prestazione energetica (IPE) | 219 kWh/m2 anno |
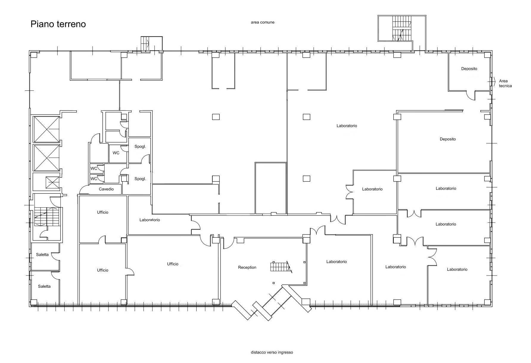
Planimetrie
Indirizzo e mappa
Corso Cuneo
15, Venaria Reale
Annuncio senza mappa,
prova a chiedere la posizione all'inserzionista
prova a chiedere la posizione all'inserzionista
Calcolo mutuo
Prezzo di vendita:
Anticipo
20,00
Mutuo
80,00
Tasso: -+
Rata: 9.724 al mese
I risultati sono una stima indicativa basata sui dati inseriti e non costituiscono un’offerta finanziaria.
Inserzionista

HASTON & ASTON S.N.C.
Via Pietro Micca, 21, Torino
Mostra Telefono
Chiama
CONTATTA

