Rustico contrada petruso, Rutigliano
€ 2.500 al mese
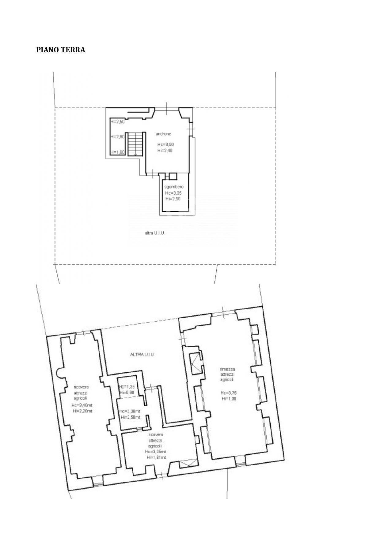
PUGLIA - RUTIGLIANO (BA) - CONTRADA PETRUSO Affascinante Masseria del 1800 nellAgro di Rutigliano direzione Mola di Bari Nel cuore della campagna pugliese, sulla strada che collega Rutigliano e Mola di Bari, proponiamo in locazione una storica masseria di fine 800, immersa nella quiete e nella bellezza del paesaggio rurale. La proprietà conserva intatto il fascino delle costruzioni originali, con ambienti ampi, soffitti alti e dettagli architettonici tipici dellepoca. È ideale per chi cerca uno spazio di rappresentanza, una residenza di charme, oppure un contesto suggestivo per attività ricettive, culturali o professionali. Corpo principale disposto su più ambienti, con possibilità di personalizzazione secondo le esigenze (abitazione, struttura turistico-ricettiva, azienda agricola, centro eventi, ecc.) Deposito esterno distaccato dalledificio principale, utile come magazzino, laboratorio, area tecnica o spazio aggiuntivo per progetti di vario genere Terreno circostante di circa 15.000 mq, pianeggiante e ben delimitato, perfetto come giardino, area relax, parcheggio o spazio coltivabile La soluzione si trova in posizione tranquilla e strategica in quanto facilmente accessibile e vicina ai principali collegamenti stradali. Una rara occasione per vivere (o far vivere) la bellezza autentica della campagna pugliese, in una cornice ricca di storia e potenzialità.
Dati principali
| Riferimento | CBI094-1877-63962 |
| Data annuncio | 28/06/2025 |
| Contratto | Affitto |
| Tipologia | Rustico |
| Superficie | 690 m2 |
| Locali | più di 5 (5 camere da letto, 5 altro), 2 bagni |
| Piano | Su più livelli, 3 totali |
| Occupato | Libero |
| Box auto | Assente |
| Arredamento | Assente |
Caratteristiche
Costi
| Prezzo | 2.500 € al mese |
Efficienza energetica
| Stato | Da ristrutturare |
| Riscaldamento | Assente |
| Tipo Alimentazione Riscaldamento | Altro |
| Classe energetica | E |
| Indice di prestazione energetica (IPE) | 115 kWh/m2 anno |
Planimetrie
Virtual tour
Indirizzo e mappa
contrada petruso, Rutigliano
Annuncio senza mappa,
prova a chiedere la posizione all'inserzionista
prova a chiedere la posizione all'inserzionista
Inserzionista

Coldwell Banker Gruppo Bodini
Via Nicolò Putignani, 20, Bari
Mostra Telefono
Chiama
CONTATTA

