Capannone via Luigi Einaudi, Volla
Trattativa riservataCAPANNONI DI AMPIA METRATURA DAI 350 AI 2000 MQ
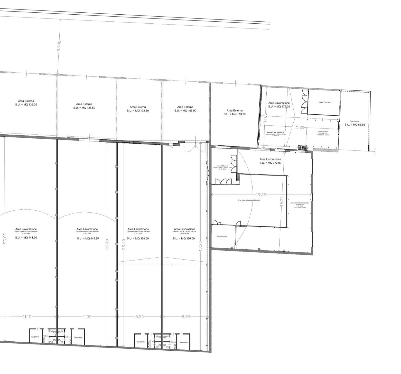
VOLLA – La So.Ge.Im immobiliare è lieta di presentare un’esclusiva opportunità per chi è in cerca di un immobile commerciale/industriale da acquistare. Trattasi nel dettaglio di capannoni aventi varie metrature, dai 350 ai 2000 mq, con altezza compresa tra i 7 e gli 8,5 mt, con pertinenziale spazio antistante e saranno corredati, cadauno, di spogliatoio, bagno ed antibagno. Gli immobili da noi proposti saranno frutto di un’azione di riqualificazione di beni già presenti e beneficeranno della vicinanza agli svincoli, del facile accesso a strade e aree motorie, adatte anche a mezzi pesanti. Disponibile come soluzione singola o multipla, la nostra proposta è ideale per chi cerca una postazione dotata di tutti i comfort. Strutture di nuova costruzione, con ottima ubicazione e con agevole spazio di manovra e accesso su strada, rappresentano punti di forza per l’appetibilità della nostra proposta La consegna è prevista entro 12 mesi dalla prenotazione. Per ulteriori informazioni contattare ai seguenti recapiti: 333/1305465 – 081/7741030 La So.Ge.Im immobiliare è presente su tutto il territorio campano, trattando con professionalità e competenza di vendite e locazioni sia residenziali che commerciali, immobili industriali, cessioni di attività e fondi rurali. I nostri collaboratori sono a vostra disposizione per consulenze gratuite finanziarie e notarili, assistenza ai contratto di fitto, estimazione e quotazione gratuita dei vostri immobili e del mercato immobiliare in generale. Venite a trovarci in agenzia saremo lieti di accogliervi con gentilezza e preparazione e vi accompagneremo nel meraviglioso percorso per l’acquisto del vostro immobile. Seguiteci anche sulle nostre pagine social: - FACEBOOK: Sogeim immobiliare - INSTAGRAM: Immobiliaresogeim - TIK TOK: sogeimsrl
Dati principali
| Riferimento | ID2753321 |
| Data annuncio | 25/06/2025 |
| Contratto | Vendita |
| Tipologia | Capannone |
| Superficie | 1000 m2 |
| Piano | 1 totali |
| Uso immobile | Commerciale ed Industriale |
Costi
| Prezzo | Trattativa riservata |
Efficienza energetica
| Riscaldamento | Assente |
| Classe energetica | G |
| Indice di prestazione energetica (IPE) | 65 kWh/m2 anno |
Planimetrie
Indirizzo e mappa
via Luigi Einaudi, Volla
Inserzionista

Sogeim
via Luigi Einaudi 29, Volla
Mostra Telefono
Chiama
CONTATTA

