Bilocale Via Allemagna, 3B, Paesana
€ 35.000
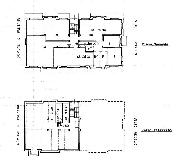
PAESANA - In prossimità del centro di Paesana, in direzione Saluzzo, appartamento sito al secondo piano, in zona tranquilla. L'alloggio si sviluppa su un comodo disimpegno, che conduce alla camera da letto, dove troviamo un primo sfogo esterno su un balcone. A seguire, ampio salotto, anch'esso con balcone. Infine, zona giorno, bagno e ripostiglio. L'immobile viene riscaldato da un impianto centralizzato con radiatori, regolato con termostato. Si presenta in buono stato ed è completato dalla cantina e dal box auto. DA VEDERE!
PER QUALSIASI INFORMAZIONE NON ESITATE A CONTATTARCI.
SIAMO DISPONIBILI A FAR VISIONARE L'IMMOBILE DAL LUNEDÌ ALLA DOMENICA.
Seguiteci sui social:
Facebook (https://www.facebook.com/GruppoMonvisoImmobiliare)
Instagram (https://www.instagram.com/gruppomonvisoimmobiliare)
PER QUALSIASI INFORMAZIONE NON ESITATE A CONTATTARCI.
SIAMO DISPONIBILI A FAR VISIONARE L'IMMOBILE DAL LUNEDÌ ALLA DOMENICA.
Seguiteci sui social:
Facebook (https://www.facebook.com/GruppoMonvisoImmobiliare)
Instagram (https://www.instagram.com/gruppomonvisoimmobiliare)
Dati principali
| Riferimento | P47 |
| Data annuncio | 03/07/2019 |
| Contratto | Vendita |
| Tipologia | Appartamento |
| Superficie | 55 m2 |
| Locali | 2 (1 camera da letto, 1 altro), 1 bagno, cucina abitabile |
| Piano | 2 (Rialzato) di 2 totali |
| Tipo di costruzione | Civile |
| Occupato | Libero |
| Numero di balconi | 2 |
| Numero box | 1 |
| Box auto | Singolo |
| Arredamento | Completo |
| Impianto TV | Singolo |
Caratteristiche
Costi
| Prezzo | 35.000 € |
| Prezzo al m2 | 636 €/m2 |
Efficienza energetica
| Anno costruzione | 1980 |
| Stato | Buono |
| Aria Condizionata | Centralizzato |
| Riscaldamento | Centralizzato |
| Tipo Impianto Di Riscaldamento | a radiatori |
| Tipo Alimentazione Riscaldamento | Metano |
| Infissi esterni | Doppio vetro / Legno |
| Classe energetica | G |
| Indice di prestazione energetica (IPE) | 281.18 kWh/m2 anno |
Planimetrie
Indirizzo e mappa
Via Allemagna, 3B, Paesana
Calcolo mutuo
Prezzo di vendita:
Anticipo
20,00
Mutuo
80,00
Tasso: -+
Rata: 100 al mese
I risultati sono una stima indicativa basata sui dati inseriti e non costituiscono un’offerta finanziaria.
Inserzionista

Gruppo Monviso Immobiliare
Via Roma 24, Bagnolo Piemonte
Mostra Telefono
Chiama
CONTATTA

