Villa via di pescaia, Pratovecchio Stia
€ 600.000
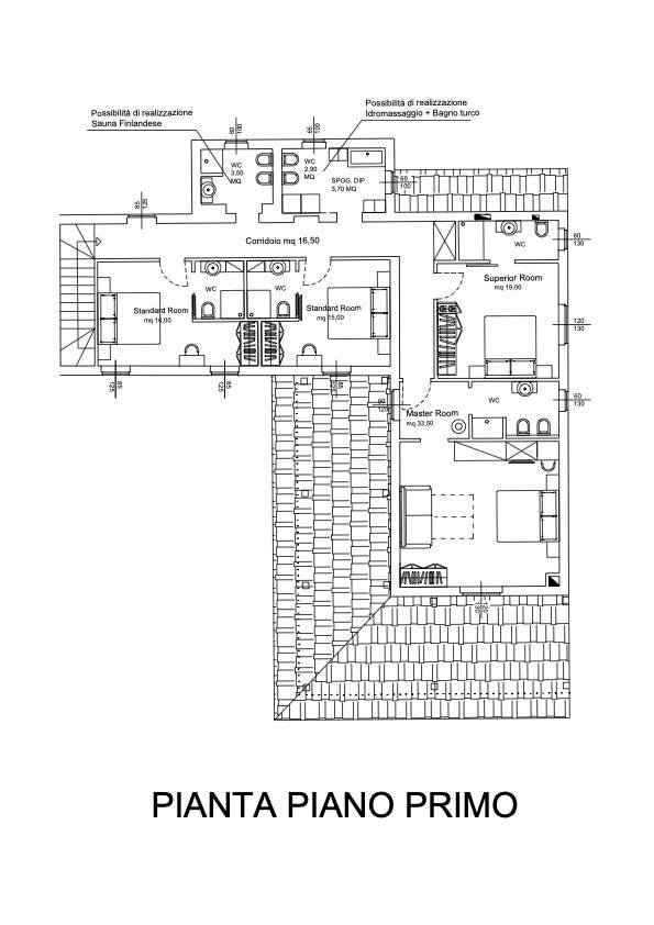
Villa di nuova generazione, finemente ristrutturata in Casentino. Ideale come Residenza o Casa Vacanze con Piscina e ristorante. Questa splendida villa in vendita a Stia, immersa in zona collinare tranquilla, panoramica e ricca di verde, con vista sui Castelli del Casentino, è la soluzione ideale per chi desidera vivere a contatto con la natura, senza rinunciare a comfort, privacy e tecnologia. La proprietà, attualmente in fase avanzata di ristrutturazione, offre ampie possibilità di personalizzazione degli spazi interni, inclusa la scelta delle tinteggiature. Si sviluppa su due livelli per un totale di oltre 330 mq, con ambienti spaziosi, curati e luminosi. Possibilità di ampliamento. Distribuzione degli spazi: Piano terra: grandissimo salone con angolo bar professionale e camino a legna, cucina abitabile progettata secondo i criteri professionali da ristorazione, sala da pranzo con secondo camino, bagno accessibili a persone diversamente abili, ripostiglio, dispensa e centrale termica. Primo piano: 3 camere da letto matrimoniali, ognuna dotata di bagno privato, cabina armadio e scrivania, ideale per accogliere famiglia e ospiti in piena autonomia oltre ad 1 Owner Suite con 4 posti letto e bagno privato. Completano il piano primo altri 2 bagni, uno adibito ad uso dipendenti e/o domestici. Il settimo bagno della villa può essere a adibito interamente a sauna o bagno turco ad uso esclusivo o per gli ospiti in caso di gestione turistica. La villa può essere consegnata completamente arredata con incluso l'allestimento della cucina professionale ad uso ristorazione. Pavimenti in parquet, porte in legno massello, infissi e persiane in pregiato legno di castagno completamente restaurati. Facciate e gronde nuove Impianto elettrico professionale fino a 50 kW con predisposizione fotovoltaico per la gestione delle attrezzature professionali della cucina. Riscaldamento senza gas con caldaia a pellet 5 stelle integrata con il camino termoidraulico, accumulo tecnico di acqua calda da 1000 lt, e scalda bagno in pompa di calore pompa di calore da 250 lt, radiatori in ghisa, e climatizzazione autonoma in ogni stanza Dotazioni aggiuntive: Sistema di controllo accessi a badge, termoregolazione stanza per stanza, impianto satellitare e DGTV Zona relax esterna piastrellata in pietra sotto un maestoso noce dotata di forno a legna e barbecue in pietra con cucina esterna. Piscina in corso di progettazione, realizzabile prima del rogito su richiesta del compratore. Illuminazione esterna con oltre 80 punti luce tra lampioni e faretti distribuiti nei 2000 mq di giardino, pozzo privato e impianto di distribuzione acqua per irrigazione. Piazzale privato da 140 mq, garage 48 mq a piano strada, e ampio parcheggio fino a 5 posti. Cancello con viale di accesso asfaltato. Ideale anche come investimento Grazie alle sue caratteristiche e dotazioni, la villa si presta perfettamente ad essere messa a reddito come casa vacanza, sia settimanalmente come villa intera fino a 10 posti letto, sia camere a notte tipo B&B, con la possibilità di affidarne la gestione a società specializzate già attive sul territorio con rendita garantita. Inoltre, le ampie sala con camino e angolo bar attrezzato, unita alla loggia esterna di 46 mq, rendono l'immobile adatto anche a eventi o attività di ristorazione (home restaurant) fino a 45 posti. Una soluzione completa, moderna e versatile, dove comfort, efficienza energetica e potenziale economico si incontrano. La Villa si trova a Stia, nel Parco Nazionale delle Foreste Casentinesi, vicino ad Arezzo e Firenze. Stia è famosa per il suo Lanificio, ormai museo, dove veniva prodotto il "Panno del Casentino" indossato anche da Audrey Hepburn nel film Colazione da Tiffany e tessuto preferito dai Savoia, ancora venduto in tutto il mondo. Stia è anche il borgo dove nasce il fiume Arno che crea, a 350 metri dalla villa, anse con acque limpide balneabili (parco...
Dati principali
| Riferimento | New Generation Villa M |
| Data annuncio | 19/06/2025 |
| Contratto | Vendita |
| Tipologia | Villa |
| Superficie | 335 m2 |
| Locali | più di 5 (4 camere da letto, 7 altro), 5 bagni, cucina abitabile |
| Piano | Su più livelli, 2 totali |
| Occupato | Libero |
| Box auto | Doppio |
| Numero posti auto | 10 |
| Arredamento | Completo |
Caratteristiche
Costi
| Prezzo | 600.000 € |
| Prezzo al m2 | 1.791 €/m2 |
Efficienza energetica
| Stato | Parzialmente ristrutturato |
| Riscaldamento | Autonomo |
| Classe energetica | A2 |
Planimetrie
Indirizzo e mappa
via di pescaia, Pratovecchio Stia
Annuncio senza mappa,
prova a chiedere la posizione all'inserzionista
prova a chiedere la posizione all'inserzionista
Calcolo mutuo
Prezzo di vendita:
Anticipo
20,00
Mutuo
80,00
Tasso: -+
Rata: 1.716 al mese
I risultati sono una stima indicativa basata sui dati inseriti e non costituiscono un’offerta finanziaria.
Inserzionista

Ritmo Maison
Via G. Marconi, 13Rosso, Firenze
Mostra Cellulare
Chiama
CONTATTA

