Appartamento Via Ubaldino Peruzzi 91, Bagno a Ripoli
€ 360.000
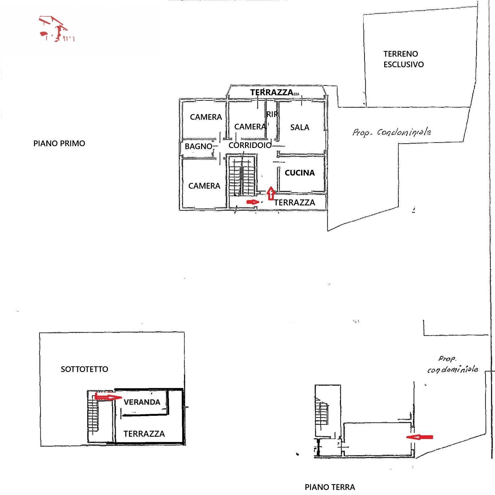
ANTELLA, nel centro del paese, vendesi luminoso appartamento con ingresso indipendente al primo e ultimo piano di palazzina bifamiliare. L'immobile è così composto: ampio ingresso, cucina abitabile, soggiorno, tre camere, bagno, ripostiglio, terrazza abitabile privata in parte con veranda condonata dotata di forno a legna, oltre a soffitta. Completano la proprietà box auto di mq.18 circa, cantina mq.9 e giardino/orto privato di mq.90 circa staccato dall'abitazione. Termo singolo. Si presenta da rimodernare. Libero subito. Euro 360.000 MOR32
Dati principali
| Riferimento | MOR32 |
| Data annuncio | 19/06/2025 |
| Contratto | Vendita |
| Tipologia | Appartamento |
| Superficie | 120 m2 |
| Locali | 5 (3 camere da letto, 2 altro), 1 bagno, cucina abitabile |
| Piano | Ultimo piano, 2 totali |
| Tipo di costruzione | Media |
| Occupato | Libero |
| Box auto | Singolo |
| Arredamento | Parziale |
Caratteristiche
Costi
| Prezzo | 360.000 € |
| Prezzo al m2 | 3.000 €/m2 |
Efficienza energetica
| Stato | Discreto |
| Riscaldamento | Autonomo |
| Classe energetica | G |
| Indice di prestazione energetica (IPE) | 250 kWh/m2 anno |
Planimetrie
Indirizzo e mappa
Via Ubaldino Peruzzi
91, Bagno a Ripoli
Annuncio senza mappa,
prova a chiedere la posizione all'inserzionista
prova a chiedere la posizione all'inserzionista
Calcolo mutuo
Prezzo di vendita:
Anticipo
20,00
Mutuo
80,00
Tasso: -+
Rata: 1.030 al mese
I risultati sono una stima indicativa basata sui dati inseriti e non costituiscono un’offerta finanziaria.
Inserzionista

Caterina Pirrone immobiliare
Viale Europa 101, Firenze
Mostra Cellulare
Chiama
CONTATTA

